Voltar
Terreno para Venda em Faro (Sé e São Pedro) Foto 1
Terreno para Venda em Faro (Sé e São Pedro) Foto 2
Terreno para Venda em Faro (Sé e São Pedro) Foto 3
Terreno para Venda em Faro (Sé e São Pedro) Foto 4
Terreno para Venda em Faro (Sé e São Pedro) Foto 5

Terreno para Venda em Faro (Sé e São Pedro)

240.000 €

Tipo
Terreno
Negócio
Venda
Área Bruta
158 m²
Área Útil
143 m²
Condição
Não aplicável
Certificado Energético
Não aplicável
Área do Terreno
58 m²

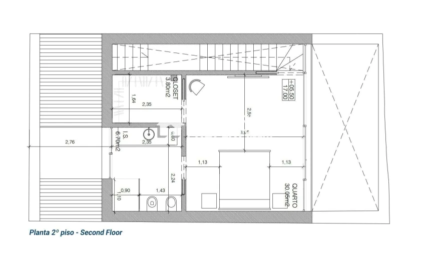
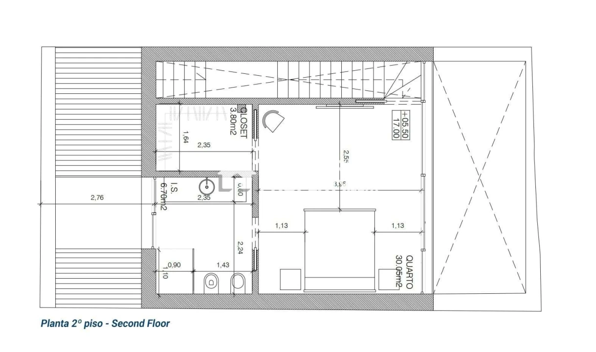
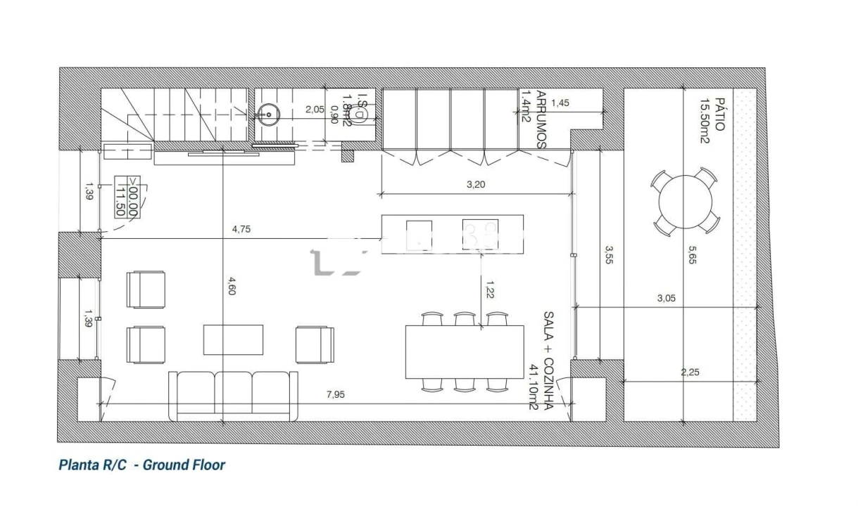
Terreno Urbano com Viabilidade de Construção no Centro de Faro

Descubra este terreno único situado no centro da dinâmica cidade de Faro!

Com uma área total de 58 m², este lote com viabilidade para construção oferece um vasto leque de possibilidades para quem procura uma casa mesmo no centro da cidade.

O projeto - agora caducado - permitia a construção de 3 quartos em suite, 4 casas de banho, distribuídos pelo R/C, 1º e 2º piso.

Tem ainda a possibilidade de fazer um pátio espaçoso na continuação da cozinha, onde poderá ter o seu jardim privado, e áreas muito espaçosas, tendo a master suite mais de 30 m².

A cidade de Faro oferece uma vasta oferta de restaurantes, escolas, supermercados e espaços verdes, tornando-a num local ideal para viver. Com fácil acesso a transportes públicos e serviços essenciais como hospitais e farmácias, esta propriedade oferece uma combinação única de comodidade, beleza natural e riqueza cultural.

Não perca a oportunidade de fazer parte desta comunidade vibrante e acolhedora. Contacte-nos ainda hoje para agendar uma visita e descobrir tudo o que este terreno tem para lhe oferecer!

AlgarveProperty.com - AMI: 2196 - T.: 00351 289310310

Localização

Faro (Sé e São Pedro), Faro, Faro

Informação do anúncio

ID do anúncio 1597050
Referência Externa TC268848J
Atualizado em 02/02/2026 01:33:53
Algarve Property Lda AMI 2196
Referência do imóvel: TC268848J
Phone
Chamada para a rede fixa nacional
Algarve Property Lda AMI 2196
Referência do imóvel: TC268848J
Phone
Chamada para a rede fixa nacional
1 / 8
Terreno para Venda em Faro (Sé e São Pedro) Foto 1
Terreno para Venda em Faro (Sé e São Pedro) Foto 2
Terreno para Venda em Faro (Sé e São Pedro) Foto 3
Terreno para Venda em Faro (Sé e São Pedro) Foto 4
Terreno para Venda em Faro (Sé e São Pedro) Foto 5
Terreno para Venda em Faro (Sé e São Pedro) Foto 6
Terreno para Venda em Faro (Sé e São Pedro) Foto 7
Terreno para Venda em Faro (Sé e São Pedro) Foto 8
Clicky