Apartamento T2 Duplex, no Centro da Gafanha da Nazaré
Fantástico T2 Duplex em construção inserido num condomínio fechado.
Apartamento inserido no 2º andar de um edifício com elevador composto por cozinha mobilada e equipada com placa, forno exaustor, máquina de lavar loiça, frigorifico em openspace com a sala e terraço ou varanda.
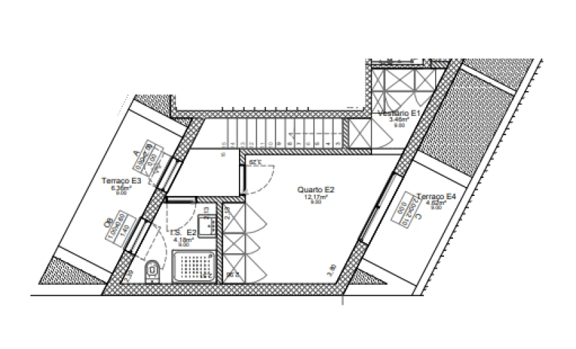
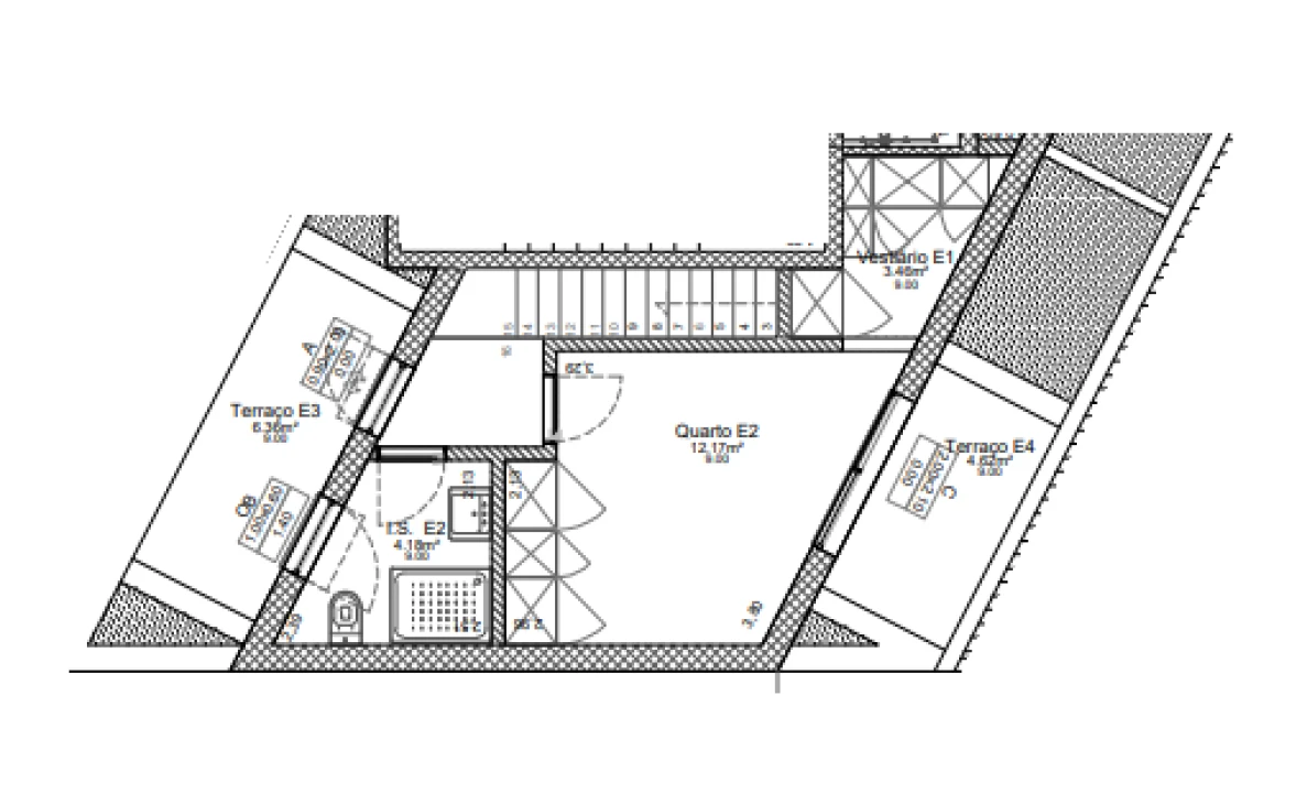
Na zona privativa deste apartamento encontramos 2 quartos, dos quais 1 suite, com roupeiros embutidos 2 casas de banho completas, terraço e varandas.
Para seu conforto este apartamento está equipado com caixilharias de alumínio com corte térmico e vidros duplos da marca 'Kömmerling' e ar condicionado.
No exterior deste maravilhoso apartamento encontra um espaço de onde poderá desfrutar de agradáveis momentos em família ou com amigos.
Para guardar as suas viaturas dispõe de garagem fechada e lugar de estacionamento coberto mais um lugar de estacionamento descoberto e um espaço para poder fazer a sua horta biológica ou um jardim.
Este site utiliza cookies. Ao navegar no site estará a consentir a sua utilização. Para mais informações sobre os cookies pode consultar a
política de privacidade.