Voltar
Apartamento T3 para Venda em Lordelo do Ouro e Massarelos Foto 1
Apartamento T3 para Venda em Lordelo do Ouro e Massarelos Foto 2
Apartamento T3 para Venda em Lordelo do Ouro e Massarelos Foto 3
Apartamento T3 para Venda em Lordelo do Ouro e Massarelos Foto 4
Apartamento T3 para Venda em Lordelo do Ouro e Massarelos Foto 5

Apartamento T3 para Venda em Lordelo do Ouro e Massarelos

395.000 €

Tipo
Apartamento
Negócio
Venda
Quartos
3
Casas de Banho
2
Área Bruta
90 m²
Área Útil
90 m²
Condição
Novo
Certificado Energético
G

Descrição

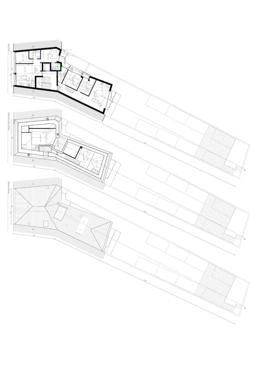
Apresentamos este apartamento T2+1, inserido no empreendimento 9 de Julho Residences, uma nova construção localizada na Boavista, Porto, numa zona urbana consolidada e muito bem servida de infraestruturas. O imóvel situa-se no 4.º andar, oferecendo uma vivência confortável, funcional e com excelente luminosidade natural.. . Com uma área bruta privativa de 80,33 m2, este apartamento foi concebido para responder às exigências da vida contemporânea, apresentando uma organização equilibrada e bem pensada. A zona social destaca-se pela fluidez e conforto.. . A área privada é composta por dois quartos, complementados por um espaço adicional (+1) de utilização versátil, ideal para escritório, quarto de apoio, zona de estudo ou espaço multifuncional, adaptando-se facilmente às necessidades do futuro proprietário. Esta flexibilidade torna o apartamento particularmente atrativo para diferentes estilos de vida.. . O imóvel inclui lugar de estacionamento, assegurando comodidade e segurança no dia a dia. A venda é realizada em regime chave na mão, permitindo ao comprador beneficiar de um apartamento novo, pronto a habitar, integrado num edifício de linguagem contemporânea e pensado para o conforto urbano.. . A localização é um dos grandes destaques, com proximidade a escolas, clínicas, transportes públicos e vários pontos de interesse da cidade, beneficiando ainda de fácil acesso às principais artérias da Boavista e ao centro do Porto.. . Pela sua tipologia, localização e inserção num empreendimento moderno, este apartamento representa uma excelente opção para habitação própria, combinando qualidade, praticidade e potencial de valorização numa das zonas mais procuradas do Porto.

Localização

Lordelo do Ouro e Massarelos, Porto, Porto

Informação do anúncio

ID do anúncio 1600244
Referência Externa N0072/12858
Atualizado em 03/02/2026 14:03:40
Vendo AMI 25679
Referência do imóvel: N0072/12858
Phone
Chamada para a rede fixa nacional
Vendo AMI 25679
Referência do imóvel: N0072/12858
Phone
Chamada para a rede fixa nacional
1 / 15
Apartamento T3 para Venda em Lordelo do Ouro e Massarelos Foto 1
Apartamento T3 para Venda em Lordelo do Ouro e Massarelos Foto 2
Apartamento T3 para Venda em Lordelo do Ouro e Massarelos Foto 3
Apartamento T3 para Venda em Lordelo do Ouro e Massarelos Foto 4
Apartamento T3 para Venda em Lordelo do Ouro e Massarelos Foto 5
Apartamento T3 para Venda em Lordelo do Ouro e Massarelos Foto 6
Apartamento T3 para Venda em Lordelo do Ouro e Massarelos Foto 7
Apartamento T3 para Venda em Lordelo do Ouro e Massarelos Foto 8
Apartamento T3 para Venda em Lordelo do Ouro e Massarelos Foto 9
Apartamento T3 para Venda em Lordelo do Ouro e Massarelos Foto 10
Apartamento T3 para Venda em Lordelo do Ouro e Massarelos Foto 11
Apartamento T3 para Venda em Lordelo do Ouro e Massarelos Foto 12
Apartamento T3 para Venda em Lordelo do Ouro e Massarelos Foto 13
Apartamento T3 para Venda em Lordelo do Ouro e Massarelos Foto 14
Apartamento T3 para Venda em Lordelo do Ouro e Massarelos Foto 15
Clicky