Prédio para Venda em Olhão
500.000 €
Tipo
Prédio
Negócio
Venda
Área Bruta
216 m²
Área Útil
210 m²
Condição
Por recuperar
Certificado Energético
Isento
Área do Terreno
262 m²
Prédio em Ruína para Reabilitação em Olhão
No coração de Olhão, onde o encanto da tradição se encontra com a modernidade, nasce uma oportunidade rara.
Duas ruínas, carregadas de história e potencial, aguardam o novo capítulo da sua vida ou do seu próximo grande investimento.
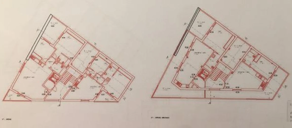
O projeto já está aprovado e pronto a avançar: um edifício habitacional de linhas contemporâneas, distribuído por três pisos com cave e cobertura.
A arquitetura foi pensada para unir funcionalidade e elegância, criando um espaço que se destaca no centro urbano.
O edifício contempla três lojas na cave, cinco apartamentos T1 e dois T2, ideais para habitação própria, arrendamento de longa duração ou alojamento turístico.
As propriedades estão situadas numa zona tranquila, mas com tudo por perto: comércio, escolas, transportes públicos e as principais vias de acesso. Um local que combina conveniência e qualidade de vida, onde cada detalhe valoriza o investimento.
Com uma excelente exposição solar, um projeto já validado pela Câmara Municipal e o crescente interesse no mercado imobiliário de Olhão, esta é uma oportunidade sólida de reabilitar e rentabilizar num dos destinos mais promissores do Algarve.
Principais destaques:
* Duas ruínas registadas com artigo urbano independente;
* Projeto aprovado pela Câmara Municipal;
* Área total do terreno: 262,15 m²;
* Área de construção aprovada: 216 m².
Aqui, o passado ganha vida e o futuro começa a construir-se hoje.
Agende a sua visita e descubra como transformar esta oportunidade em rentabilidade e valor duradouro.
Duas ruínas, carregadas de história e potencial, aguardam o novo capítulo da sua vida ou do seu próximo grande investimento.
O projeto já está aprovado e pronto a avançar: um edifício habitacional de linhas contemporâneas, distribuído por três pisos com cave e cobertura.
A arquitetura foi pensada para unir funcionalidade e elegância, criando um espaço que se destaca no centro urbano.
O edifício contempla três lojas na cave, cinco apartamentos T1 e dois T2, ideais para habitação própria, arrendamento de longa duração ou alojamento turístico.
As propriedades estão situadas numa zona tranquila, mas com tudo por perto: comércio, escolas, transportes públicos e as principais vias de acesso. Um local que combina conveniência e qualidade de vida, onde cada detalhe valoriza o investimento.
Com uma excelente exposição solar, um projeto já validado pela Câmara Municipal e o crescente interesse no mercado imobiliário de Olhão, esta é uma oportunidade sólida de reabilitar e rentabilizar num dos destinos mais promissores do Algarve.
Principais destaques:
* Duas ruínas registadas com artigo urbano independente;
* Projeto aprovado pela Câmara Municipal;
* Área total do terreno: 262,15 m²;
* Área de construção aprovada: 216 m².
Aqui, o passado ganha vida e o futuro começa a construir-se hoje.
Agende a sua visita e descubra como transformar esta oportunidade em rentabilidade e valor duradouro.
Localização
Olhão, Olhão, Faro
Informação do anúncio
ID do anúncio
1635048
Referência Externa
PREPN001
Atualizado em
25/04/2026 23:14:00
Anunciante
Chamada para a rede móvel nacional
IMOJOY REAL ESTATE
AMI 12689
Referência do imóvel:
PREPN001
Prédio para Venda em Olhão
Vídeo