Voltar

Moradia para Venda em Ferragudo

585.000 €

Tipo
Moradia
Negócio
Venda
Área Útil
277 m²
Condição
Usado
Certificado Energético
Não aplicável

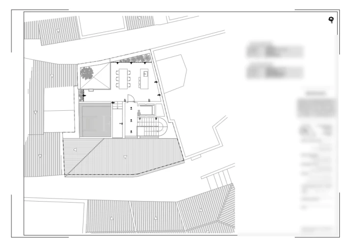
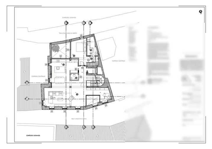
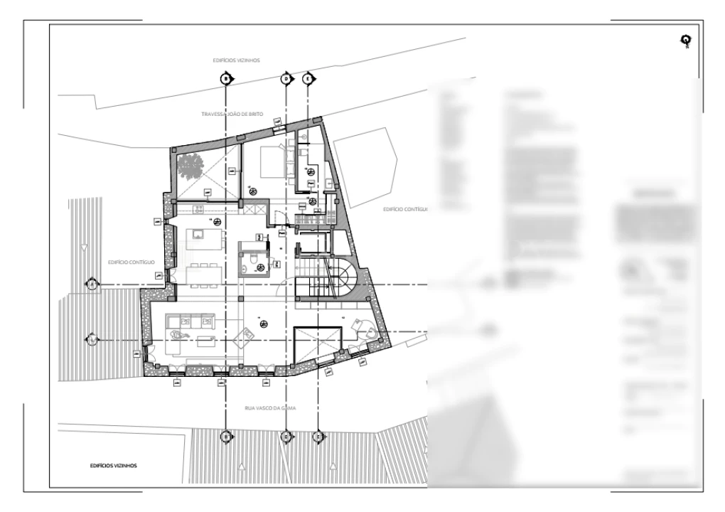
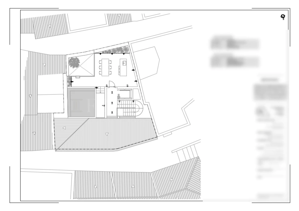
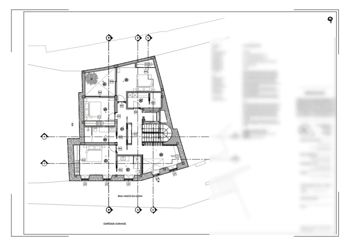
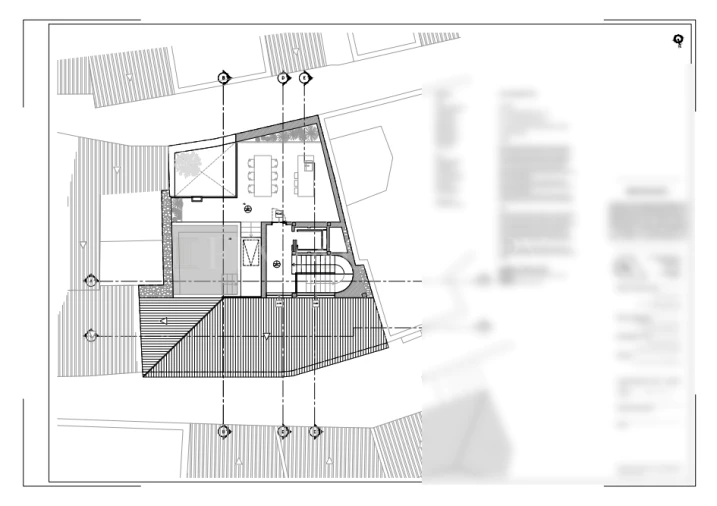
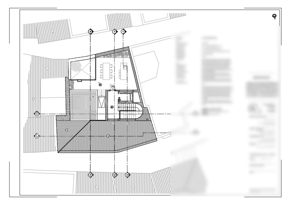
Moradia em banda no centro de Ferragudo

Localizada no coração de Ferragudo, esta ruína de moradia com 277m² oferece uma excelente oportunidade para criar uma espaçosa residência de dois pisos numa das vilas mais procuradas do Algarve.

Com uma área generosa e forte potencial estrutural, o imóvel permite um projeto de reabilitação total, incluindo a possibilidade de vários quartos, zonas de estar em open space, escritório e um espaço exterior privado ou terraço na cobertura (sujeito a aprovação).

A poucos passos da praça da vila, da zona ribeirinha, restaurantes e praias, esta é uma rara oportunidade de investimento para recuperar e transformar um imóvel com caráter numa localização central privilegiada.

A Fine & Country Algarve faz parte de uma rede internacional de escritórios F&C em mais de 300 localizações em todo o mundo, temos quatro escritórios no Algarve cobrindo toda a região de leste a oeste. Trabalhamos igualmente em estreita colaboração com os escritórios da Fine & Country noutros locais de Portugal e a nível internacional. No Algarve, a Fine & Country dispõe de um vasto portefólio de imóveis para venda e de uma equipa dedicada de profissionais com um profundo conhecimento do mercado.

* As características / equipamentos mencionados nesta descrição estão sujeitos a verificação e acordo entre os vendedores e compradores.

Localização

Ferragudo, Lagoa (Algarve), Faro

Informação do anúncio

ID do anúncio 1657328
Referência Externa FC1074VCP
Atualizado em 19/03/2026 01:38:22
Fine Country Algarve AMI 9767
Referência do imóvel: FC1074VCP
Phone
Chamada para a rede fixa nacional
Fine Country Algarve AMI 9767
Referência do imóvel: FC1074VCP
Phone
Chamada para a rede fixa nacional
1 / 25
Moradia para Venda em Ferragudo Foto 1
Moradia para Venda em Ferragudo Foto 2
Moradia para Venda em Ferragudo Foto 3
Moradia para Venda em Ferragudo Foto 4
Moradia para Venda em Ferragudo Foto 5
Moradia para Venda em Ferragudo Foto 6
Moradia para Venda em Ferragudo Foto 7
Moradia para Venda em Ferragudo Foto 8
Moradia para Venda em Ferragudo Foto 9
Moradia para Venda em Ferragudo Foto 10
Moradia para Venda em Ferragudo Foto 11
Moradia para Venda em Ferragudo Foto 12
Moradia para Venda em Ferragudo Foto 13
Moradia para Venda em Ferragudo Foto 14
Moradia para Venda em Ferragudo Foto 15
Moradia para Venda em Ferragudo Foto 16
Moradia para Venda em Ferragudo Foto 17
Moradia para Venda em Ferragudo Foto 18
Moradia para Venda em Ferragudo Foto 19
Moradia para Venda em Ferragudo Foto 20
Moradia para Venda em Ferragudo Foto 21
Moradia para Venda em Ferragudo Foto 22
Moradia para Venda em Ferragudo Foto 23
Moradia para Venda em Ferragudo Foto 24
Moradia para Venda em Ferragudo Foto 25
Clicky