Moradia T3 para Venda em Palmeira
575.000 €
Tipo
Moradia
Negócio
Venda
Quartos
3
Área Bruta
230 m²
Área Útil
225 m²
Condição
Novo
Certificado Energético
A+
Área do Terreno
450 m²
Moradia T3 Venda em Palmeira,Braga
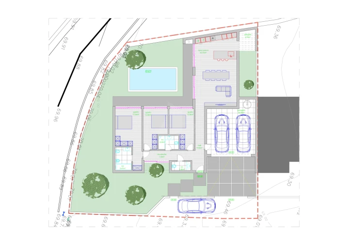
Moradia Térrea T3 com Piscina – O Lar dos Seus Sonhos!
Sonha viver numa casa feita à sua medida, refletindo todas as suas ideias, gostos e estilo de vida? Pode personalizar cada detalhe, tanto no exterior quanto no interior, para criar o espaço perfeito para si. O objetivo é oferecer a melhor experiência, projetando ambientes que transmitam conforto, segurança e elegância.
Destaques da sua nova moradia: Arquitetura moderna, com acabamentos de alta qualidade, segurança e conforto garantidos; Excelente exposição solar, para aproveitar ao máximo a luz natural; Construção sólida com superestrutura em betão armado; Sistema de ar condicionado completo com conduta Bosch; Bomba de calor para aquecimento de águas sanitárias; Gás canalizado; Sistema de alarme e câmeras de vídeo vigilância para sua tranquilidade; Pré-instalação de painéis solares térmicos e elétricos; Pré-instalação de ventilação mecânica controlada (VMC); Estores elétricos para maior praticidade; Iluminação LED interior e exterior, incluindo sancas de luz sofisticadas; Cozinha personalizada com móveis em lacado de alta qualidade, equipada com eletrodomésticos Bosch; Sala com piso em pavimento flutuante AC5, lareira com recuperador de calor a lenha, acabamento em ferro forjado e porta de vidro de abertura ampla; Churrasqueira exterior para momentos de convívio ao ar livre; Quartos com roupeiros embutidos, piso em pavimento AC5 e acesso ao exterior; Móveis suspensos nas casas de banho, com louças sanitárias suspensas e acabamento personalizado; Carpintaria em lacado (cor à sua escolha) até ao teto; Vídeo porteiro por IP de alta qualidade; Caixilharia de corte térmico com vidro duplo, garantindo isolamento; Ponto para carregador de automóvel elétrico; Portões exteriores automáticos em alumínio; Revestimentos exteriores com detalhes em pedra, conferindo elegância; Sistema de domótica opcional, integrando iluminação, climatização, estores elétricos, som ambiente e alarme de intrusão; Piscina completa com tratamento a sal, perfeita para relaxar e desfrutar do verão.Dados da propriedade: Área do lote: 450 m² Área de construção: 230 m² Localização: 📌 Freguesia de Palmeira (apenas 5 minutos do centro de Braga) Fácil acesso a transportes, escolas, comércio e serviços.Se deseja transformar este projeto no seu novo lar, estamos à disposição para ajudar! Entre em contato e venha conhecer esta oportunidade única de viver com qualidade e estilo.
Sonha viver numa casa feita à sua medida, refletindo todas as suas ideias, gostos e estilo de vida? Pode personalizar cada detalhe, tanto no exterior quanto no interior, para criar o espaço perfeito para si. O objetivo é oferecer a melhor experiência, projetando ambientes que transmitam conforto, segurança e elegância.
Destaques da sua nova moradia: Arquitetura moderna, com acabamentos de alta qualidade, segurança e conforto garantidos; Excelente exposição solar, para aproveitar ao máximo a luz natural; Construção sólida com superestrutura em betão armado; Sistema de ar condicionado completo com conduta Bosch; Bomba de calor para aquecimento de águas sanitárias; Gás canalizado; Sistema de alarme e câmeras de vídeo vigilância para sua tranquilidade; Pré-instalação de painéis solares térmicos e elétricos; Pré-instalação de ventilação mecânica controlada (VMC); Estores elétricos para maior praticidade; Iluminação LED interior e exterior, incluindo sancas de luz sofisticadas; Cozinha personalizada com móveis em lacado de alta qualidade, equipada com eletrodomésticos Bosch; Sala com piso em pavimento flutuante AC5, lareira com recuperador de calor a lenha, acabamento em ferro forjado e porta de vidro de abertura ampla; Churrasqueira exterior para momentos de convívio ao ar livre; Quartos com roupeiros embutidos, piso em pavimento AC5 e acesso ao exterior; Móveis suspensos nas casas de banho, com louças sanitárias suspensas e acabamento personalizado; Carpintaria em lacado (cor à sua escolha) até ao teto; Vídeo porteiro por IP de alta qualidade; Caixilharia de corte térmico com vidro duplo, garantindo isolamento; Ponto para carregador de automóvel elétrico; Portões exteriores automáticos em alumínio; Revestimentos exteriores com detalhes em pedra, conferindo elegância; Sistema de domótica opcional, integrando iluminação, climatização, estores elétricos, som ambiente e alarme de intrusão; Piscina completa com tratamento a sal, perfeita para relaxar e desfrutar do verão.Dados da propriedade: Área do lote: 450 m² Área de construção: 230 m² Localização: 📌 Freguesia de Palmeira (apenas 5 minutos do centro de Braga) Fácil acesso a transportes, escolas, comércio e serviços.Se deseja transformar este projeto no seu novo lar, estamos à disposição para ajudar! Entre em contato e venha conhecer esta oportunidade única de viver com qualidade e estilo.
Localização
Palmeira, Braga, Braga
Informação do anúncio
ID do anúncio
1663717
Referência Externa
PD109
Atualizado em
08/04/2026 02:16:24
Moradia T3 para Venda em Palmeira