Moradia T4 para Venda em Darque Foto 1
Moradia T4 para Venda em Darque Foto 2
Moradia T4 para Venda em Darque Foto 3
Moradia T4 para Venda em Darque Foto 4
Moradia T4 para Venda em Darque Foto 5

Moradia T4 para Venda em Darque

279.000 €

Tipo
Moradia
Negócio
Venda
Quartos
4
Casas de Banho
2
Área Bruta
255 m²
Área Útil
136 m²
Condição
Usado
Certificado Energético
F
Área do Terreno
75 m²

Moradia T4 situada em Darque (Viana do Castelo)

Moradia T4, situada no Cais Novo de Darque (Viana do Castelo).

Esta moradia tem áreas excepcionais, boa exposição solar e bons acessos.

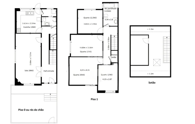
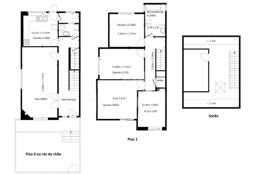
3 pisos e sótão distribuídos da seguinte forma:
- Na cave ou piso -1 temos uma garagem para várias viaturas e arrumos,
- No piso 0 ou rés do chão temos sala bastante ampla com lareira, cozinha e pequena lavandaria com acesso ao logradouro traseiro com jardim, existe a possibilidade de transformar a sala e cozinha em open space, Wc serviço e hall entrada,
- No piso 1 temos 4 quartos, 1 Wc partilhado e acesso ao sótão.

A poucos minutos da praia do Cabedelo, do acesso a vias rápidas, centro de saúde, escolas, farmácia, hipermercados e cidade de Viana do Castelo, enfim, uma zona privilegiada.

Venha visitar!

MITOS E REALIDADES - Sociedade de Mediação Imobiliária, Lda.

Licença AMI - 11024

Empresa do setor imobiliário que atua no mercado de Arrendamento e Venda de Imóveis.

Com um padrão de seriedade na prestação de serviços imobiliários, procura realizar bons negócios com eficiência, proporcionando assim, tranquilidade aos seus clientes.

A nossa equipa de colaboradores é formada por profissionais experientes, com vasto conhecimento para sugerir as melhores alternativas. Além disso, dispomos de um sistema totalmente informatizado, o que permite uma maior agilidade na pesquisa e adequação do perfil do imóvel às solicitações do cliente.

Apoiada pelo profissionalismo e seriedade, a MITOS está colocada entre as maiores imobiliárias de Viana do Castelo.

#mitos
#mitosimobiliaria
#imobiliária
#vianadocastelo
#realestate

Localização

Darque, Viana do Castelo, Viana do Castelo

Informação do anúncio

ID do anúncio 1699685
Referência Externa R1056
Atualizado em 04/05/2026 06:53:10
Mitos - Mediação Imobiliária AMI 11024
Referência do imóvel: R1056
Phone
Chamada para a rede fixa nacional
MITOS - Mediação Imobiliária, Lda.
Phone
Chamada para a rede móvel nacional
Mitos - Mediação Imobiliária AMI 11024
Referência do imóvel: R1056
Phone
Chamada para a rede fixa nacional
MITOS - Mediação Imobiliária, Lda.
Phone
Chamada para a rede móvel nacional
1 / 30
Moradia T4 para Venda em Darque Foto 1
Moradia T4 para Venda em Darque Foto 2
Moradia T4 para Venda em Darque Foto 3
Moradia T4 para Venda em Darque Foto 4
Moradia T4 para Venda em Darque Foto 5
Moradia T4 para Venda em Darque Foto 6
Moradia T4 para Venda em Darque Foto 7
Moradia T4 para Venda em Darque Foto 8
Moradia T4 para Venda em Darque Foto 9
Moradia T4 para Venda em Darque Foto 10
Moradia T4 para Venda em Darque Foto 11
Moradia T4 para Venda em Darque Foto 12
Moradia T4 para Venda em Darque Foto 13
Moradia T4 para Venda em Darque Foto 14
Moradia T4 para Venda em Darque Foto 15
Moradia T4 para Venda em Darque Foto 16
Moradia T4 para Venda em Darque Foto 17
Moradia T4 para Venda em Darque Foto 18
Moradia T4 para Venda em Darque Foto 19
Moradia T4 para Venda em Darque Foto 20
Moradia T4 para Venda em Darque Foto 21
Moradia T4 para Venda em Darque Foto 22
Moradia T4 para Venda em Darque Foto 23
Moradia T4 para Venda em Darque Foto 24
Moradia T4 para Venda em Darque Foto 25
Moradia T4 para Venda em Darque Foto 26
Moradia T4 para Venda em Darque Foto 27
Moradia T4 para Venda em Darque Foto 28
Moradia T4 para Venda em Darque Foto 29
Moradia T4 para Venda em Darque Foto 30
Planta 1 / 2
Moradia T4 para Venda em Darque Planta 1
Moradia T4 para Venda em Darque Planta 2
Clicky