Terreno para Venda em Milharado
950.000 €
Tipo
Terreno
Negócio
Venda
Condição
Não Aplicável
Certificado Energético
Isento
Área do Terreno
11934 m²
Terreno C/ PIP Aprovado, Póvoa da Galega, Milharado, 11.934 m2
Terreno, COM PIP APROVADO, para construção de moradias, na Póvoa da Galega, Venda do Pinheiro com 11.934 m2
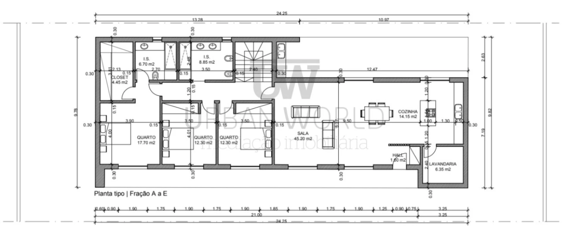
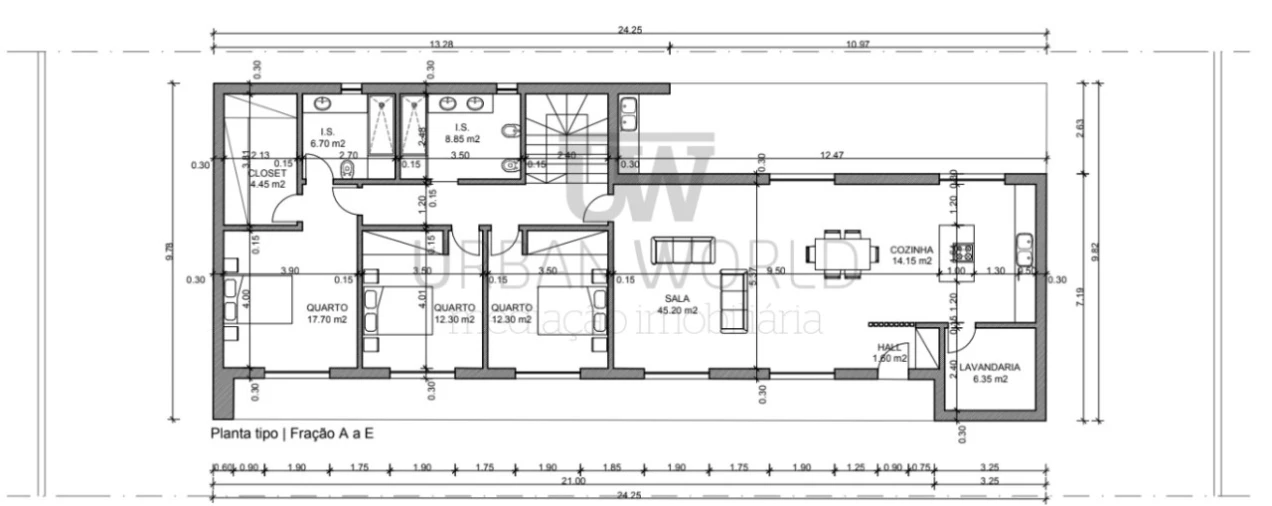
Composto por 10 lotes - para 10 moradias isoladas, sendo:
- Lote A:
Área do Terreno: 1.061 m2
Área de Implantação: 292 m2
Área Bruta de Construção: 465 m
N.º Máximo de Pisos: 1+ Cave
Nº de Fogos: 1
- Lote B:
Área do Terreno: 908 m2
Área de Implantação: 232 m2
Área Bruta de Construção: 397 m2
N.º Máximo de Pisos: 1 + Cave
Nº de Fogos: 1
- Lote C:
Área do Terreno: 916 m2
Área de Implantação: 270 m2
Área Bruta de Construção: 401 m2
N.º Máximo de Pisos: 1 +Cave
Nº de Fogos: 1
- Lote D: 946 m2
Área do Terreno: 291 m2
Área de Implantação: 414 m2
Área Bruta de Construção: 414 m2
N.º Máximo de Pisos: 1+ Cave
Nº de Fogos: 1
- Lote E:
Área do Terreno: 769 m2
Área de Implantação: 178 m2
Área Bruta de Construção: 336 m2
N.º Máximo de Pisos: 1 +Cave
Nº de Fogos: 1
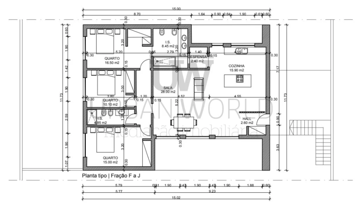
- Lote F:
Área do Terreno: 727 m2
Área de Implantação: 215 m2
Área Bruta de Construção: 318 m2
N.º Máximo de Pisos: 2
Nº de Fogos: 1
- Lote G:
Área do Terreno: 628 m2
Área de Implantação: 173 m2
Área Bruta de Construção: 275 m2
N.º Máximo de Pisos: 2
Nº de Fogos: 1
- Lote H:
Área do Terreno: 810 m2
Área de Implantação: 207m2
Área Bruta de Construção: 354 m2
N.º Máximo de Pisos: 2
Nº de Fogos: 1
- Lote I:
Área do Terreno: 697 m2
Área de Implantação: 176 m2
Área Bruta de Construção: 305 m2
N.º Máximo de Pisos: 2
Nº de Fogos: 1
- Lote J:
Área do Terreno: 708 m2
Área de Implantação: 228 m2
Área Bruta de Construção: 310 m2
N.º Máximo de Pisos: 2
Nº de Fogos: 1
A informação disponibilizada, ainda que precisa, não dispensa a sua confirmação nem pode ser considerada vinculativa.
Mais informações não hesite em entrar em contacto connosco.
Faça uma visita sem compromisso.
Somos intermediários de crédito. Consulte-nos também para obter a melhor solução de financiamento. Licença Nº 1963.
Composto por 10 lotes - para 10 moradias isoladas, sendo:
- Lote A:
Área do Terreno: 1.061 m2
Área de Implantação: 292 m2
Área Bruta de Construção: 465 m
N.º Máximo de Pisos: 1+ Cave
Nº de Fogos: 1
- Lote B:
Área do Terreno: 908 m2
Área de Implantação: 232 m2
Área Bruta de Construção: 397 m2
N.º Máximo de Pisos: 1 + Cave
Nº de Fogos: 1
- Lote C:
Área do Terreno: 916 m2
Área de Implantação: 270 m2
Área Bruta de Construção: 401 m2
N.º Máximo de Pisos: 1 +Cave
Nº de Fogos: 1
- Lote D: 946 m2
Área do Terreno: 291 m2
Área de Implantação: 414 m2
Área Bruta de Construção: 414 m2
N.º Máximo de Pisos: 1+ Cave
Nº de Fogos: 1
- Lote E:
Área do Terreno: 769 m2
Área de Implantação: 178 m2
Área Bruta de Construção: 336 m2
N.º Máximo de Pisos: 1 +Cave
Nº de Fogos: 1
- Lote F:
Área do Terreno: 727 m2
Área de Implantação: 215 m2
Área Bruta de Construção: 318 m2
N.º Máximo de Pisos: 2
Nº de Fogos: 1
- Lote G:
Área do Terreno: 628 m2
Área de Implantação: 173 m2
Área Bruta de Construção: 275 m2
N.º Máximo de Pisos: 2
Nº de Fogos: 1
- Lote H:
Área do Terreno: 810 m2
Área de Implantação: 207m2
Área Bruta de Construção: 354 m2
N.º Máximo de Pisos: 2
Nº de Fogos: 1
- Lote I:
Área do Terreno: 697 m2
Área de Implantação: 176 m2
Área Bruta de Construção: 305 m2
N.º Máximo de Pisos: 2
Nº de Fogos: 1
- Lote J:
Área do Terreno: 708 m2
Área de Implantação: 228 m2
Área Bruta de Construção: 310 m2
N.º Máximo de Pisos: 2
Nº de Fogos: 1
A informação disponibilizada, ainda que precisa, não dispensa a sua confirmação nem pode ser considerada vinculativa.
Mais informações não hesite em entrar em contacto connosco.
Faça uma visita sem compromisso.
Somos intermediários de crédito. Consulte-nos também para obter a melhor solução de financiamento. Licença Nº 1963.
Localização
Milharado, Mafra, Lisboa
Informação do anúncio
ID do anúncio
1702413
Referência Externa
TER_4715
Atualizado em
16/04/2026 23:22:29
Anunciante
Chamada para a rede fixa nacional
Urban World, Lda
AMI 11371
Referência do imóvel:
TER_4715
Consultor
Urban World
Terreno para Venda em Milharado
Vídeo