Terreno para Venda em Mira
55.000 €
Tipo
Terreno
Negócio
Venda
Condição
Em projecto
Certificado Energético
Isento
Área do Terreno
570 m²
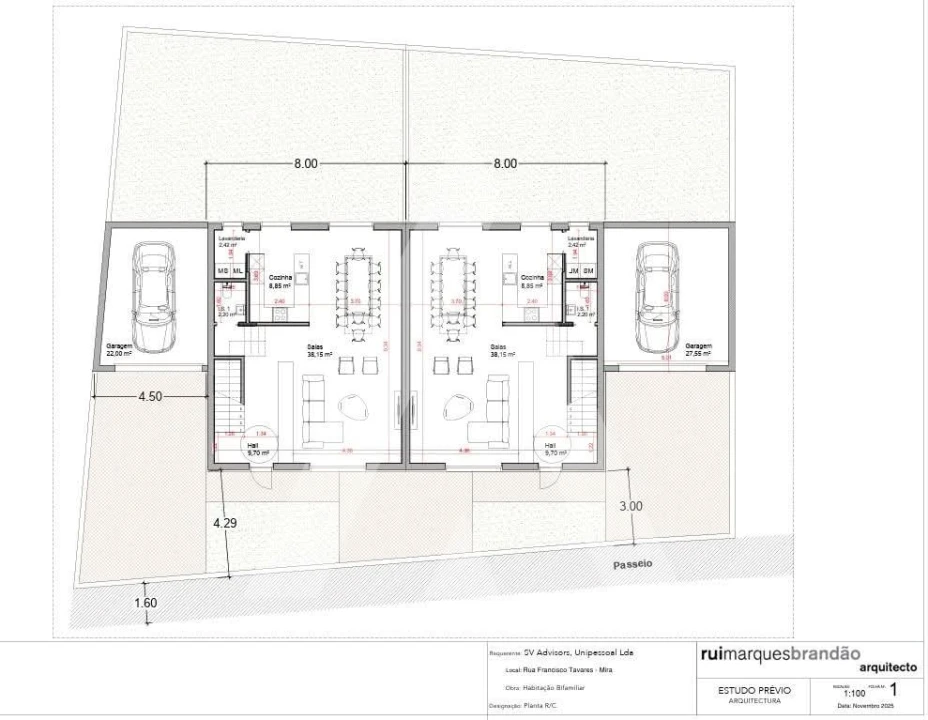
Terreno com projeto para Moradia Bi-Familiar
Terreno urbano, já com projeto de arquitetura e especialidades desenvolvido, ideal para quem procura um terreno para construção de duas habitações T3 modernas, funcionais e inseridas num contexto urbano tranquilo.
O projeto contempla duas moradias T3, cada uma composta por:
Sala ampla com acesso direto ao exterior
Cozinha integrada em open space
3 quartos, incluindo uma suíte
3 instalações sanitárias
Lavandaria
Garagem fechada
Zona exterior privativa
O conjunto apresenta uma implantação moderna, com linhas simples, excelente orientação solar e uma organização dos espaços pensada para o conforto e funcionalidade do dia a dia.
O projeto foi desenvolvido pelo arquiteto Rui Marques Brandão, garantindo rigor técnico, elevada funcionalidade e uma estética contemporânea.
Características do Terreno
Inserido em zona urbana consolidada
Excelente orientação solar e elevado nível de privacidade
Acessos rápidos ao centro de Mira, escolas e comércio
Ambiente calmo, ideal para habitação permanente ou investimento
Potencial de rendimento, com duas frações independentes
Ideal para:
Construção para habitação própria com rendimento adicional
Investidores que pretendam vender as moradias individualmente
Famílias que desejem viver lado a lado, mantendo privacidade
O projeto contempla duas moradias T3, cada uma composta por:
Sala ampla com acesso direto ao exterior
Cozinha integrada em open space
3 quartos, incluindo uma suíte
3 instalações sanitárias
Lavandaria
Garagem fechada
Zona exterior privativa
O conjunto apresenta uma implantação moderna, com linhas simples, excelente orientação solar e uma organização dos espaços pensada para o conforto e funcionalidade do dia a dia.
O projeto foi desenvolvido pelo arquiteto Rui Marques Brandão, garantindo rigor técnico, elevada funcionalidade e uma estética contemporânea.
Características do Terreno
Inserido em zona urbana consolidada
Excelente orientação solar e elevado nível de privacidade
Acessos rápidos ao centro de Mira, escolas e comércio
Ambiente calmo, ideal para habitação permanente ou investimento
Potencial de rendimento, com duas frações independentes
Ideal para:
Construção para habitação própria com rendimento adicional
Investidores que pretendam vender as moradias individualmente
Famílias que desejem viver lado a lado, mantendo privacidade
Localização
Mira, Mira, Coimbra
Informação do anúncio
ID do anúncio
1706555
Referência Externa
1031003/26BL
Atualizado em
04/05/2026 06:42:21
Anunciante
Chamada para a rede fixa nacional
Arcada Bairro do Liceu
AMI 9054
Referência do imóvel:
1031003/26BL
Terreno para Venda em Mira