Apartamento T3 para Venda em Santa Clara e Castelo Viegas
450.000 €
Tipo
Apartamento
Negócio
Venda
Ano de Construção
2027
Quartos
3
Casas de Banho
2
Área Bruta
260 m²
Área Útil
180 m²
Condição
Novo
Certificado Energético
A+
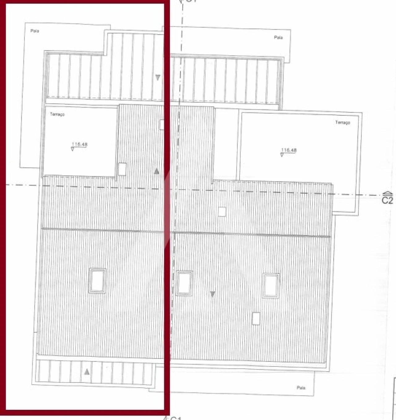
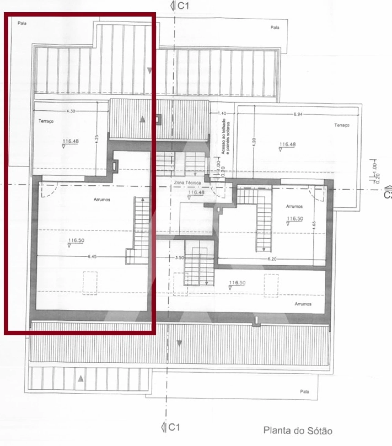
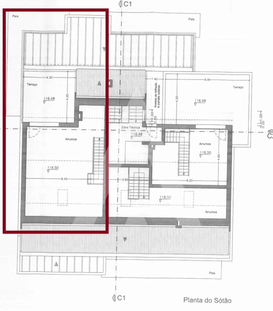
Apartamento T3 Com sótão em Coimbra
Apresenta-se este apartamento T3 com sótão e garagem para três viaturas, atualmente em construção, com conclusão para Março de 2027
Trata-se de uma solução habitacional pensada para quem procura espaço, funcionalidade e elevada luminosidade natural, combinando áreas generosas com uma organização interior eficiente.
O apartamento dispõe de três quartos, duas casas de banho e uma sala ampla.
A cozinha beneficia de varanda comum com a sala, criando uma zona social mais aberta e agradável, ideal para momentos de convívio ou refeições com luz natural.
A fração conta ainda com excelente exposição solar, fator que contribui para um ambiente interior mais confortável e energeticamente eficiente ao longo de todo o dia.
- Com Ar condicionado
-Bomba de calor
Um dos elementos diferenciadores deste imóvel é o sótão com acesso interno, que amplia significativamente a área útil da habitação. Este espaço pode ser utilizado como zona de lazer, escritório, arrumação adicional ou área multifuncional, beneficiando ainda de acesso a um terraço exterior, perfeito para usufruir de momentos ao ar livre e das vistas envolventes.
Ao nível da comodidade, o imóvel inclui garagem privativa com capacidade para três viaturas, proporcionando segurança e facilidade de estacionamento uma característica cada vez mais valorizada no mercado residencial.
Pelas suas características, áreas amplas, exposição solar e versatilidade dos espaços, esta fração apresenta-se como uma excelente oportunidade tanto para habitação própria como para investimento.
Nota importante:
Algumas das imagens apresentadas neste anúncio foram geradas com recurso a ferramentas de inteligência artificial, tendo como objetivo ilustrar uma representação visual aproximada do edifício e do apartamento após conclusão da obra. Estas imagens são meramente ilustrativas e servem para ajudar a percepcionar o potencial do projeto, uma vez que o empreendimento se encontra atualmente em fase de construção.
Este site utiliza cookies. Ao navegar no site estará a consentir a sua utilização. Para mais informações sobre os cookies pode consultar a
política de privacidade.