Voltar
Terreno para Venda em Póvoa de Santa Iria e Forte da Casa Foto 1
Terreno para Venda em Póvoa de Santa Iria e Forte da Casa Foto 2
Terreno para Venda em Póvoa de Santa Iria e Forte da Casa Foto 3
Terreno para Venda em Póvoa de Santa Iria e Forte da Casa Foto 4

Terreno para Venda em Póvoa de Santa Iria e Forte da Casa

342.500 €

Tipo
Terreno
Negócio
Venda
Condição
Não Aplicável
Certificado Energético
Avaliação em curso
Área do Terreno
327 m²

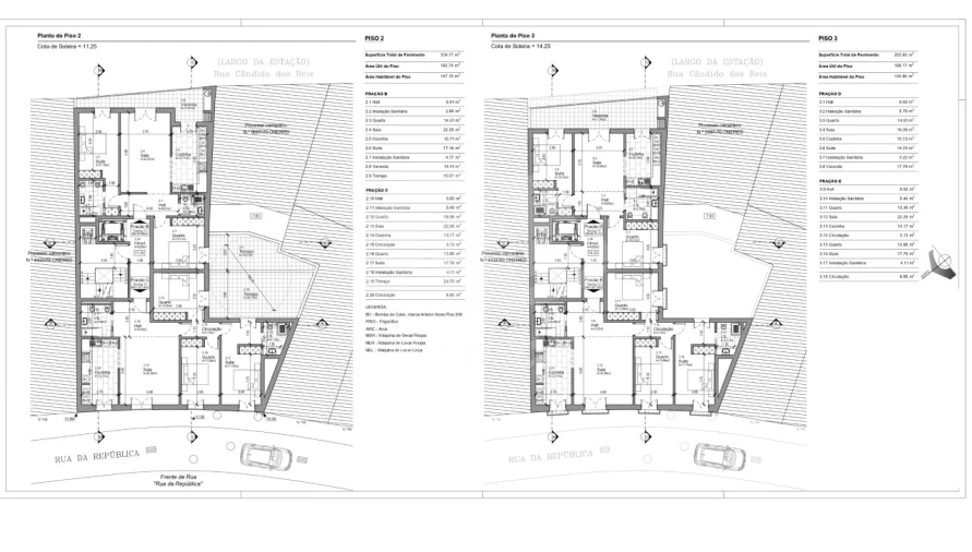
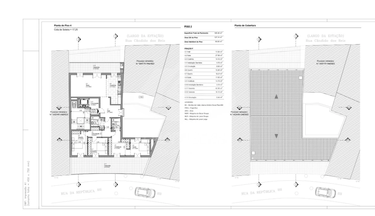
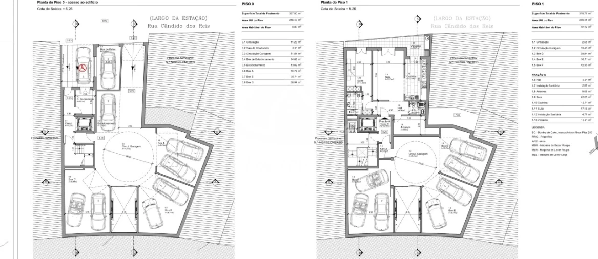
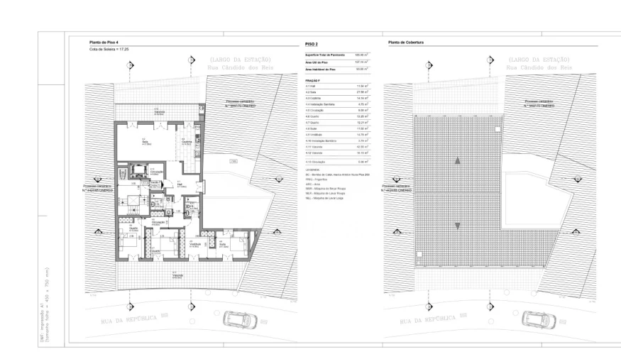
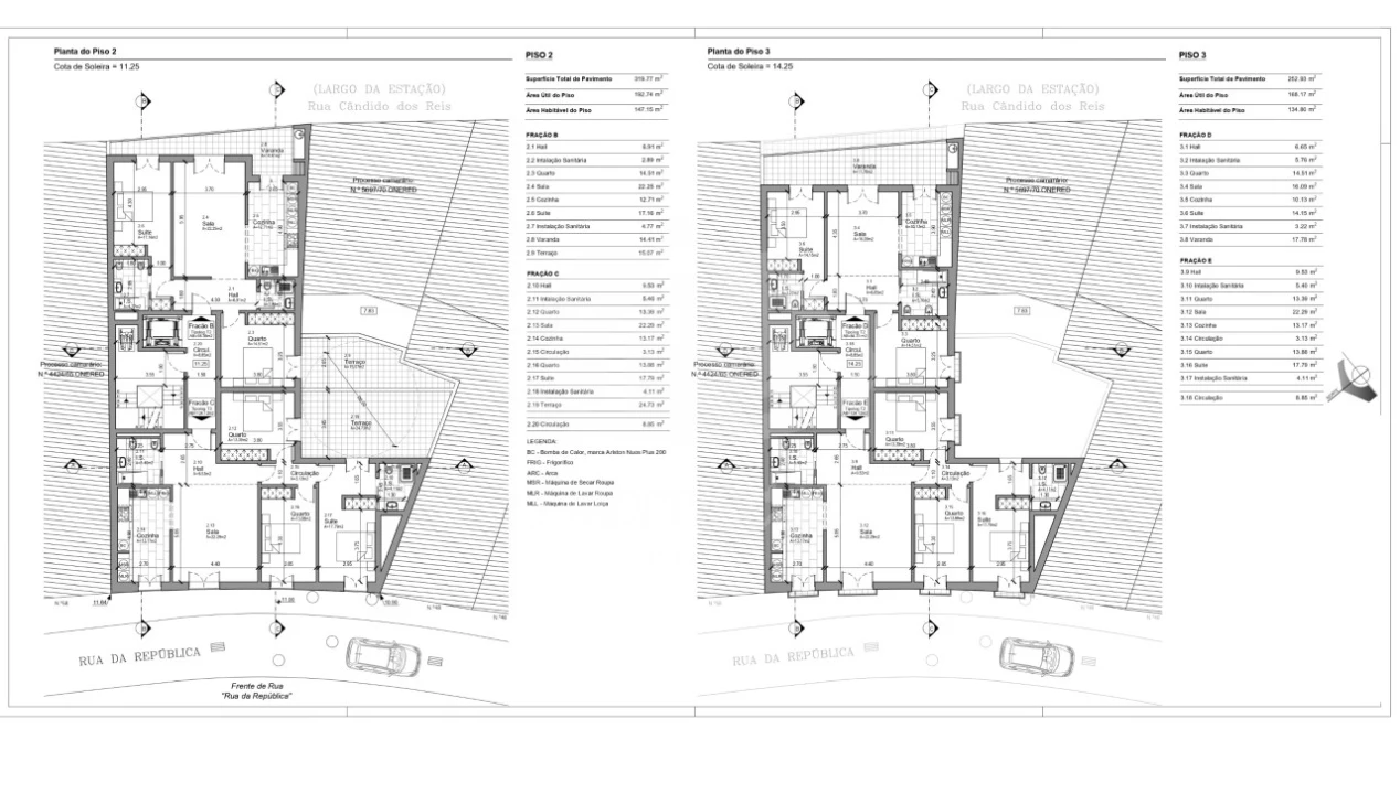
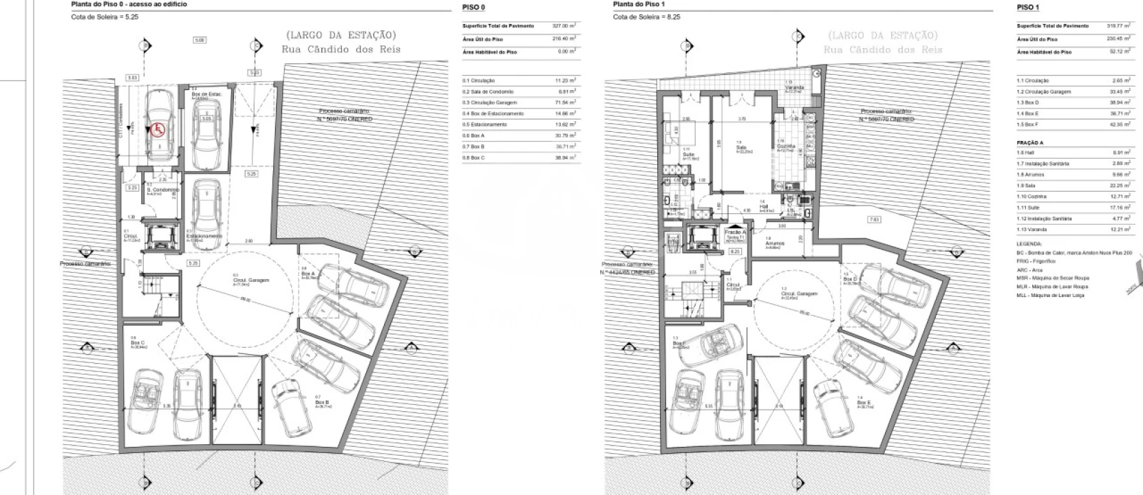
Terreno de 327 m² com projeto para prédio na Póvoa de Santa Iria

Terreno com 327 m² com projeto para construção de um prédio na Póvoa de Santa Iria, com uma magnifica vista desafogada sobre o rio e a lezíria.

Possibilidade de construção de um prédio com 4 pisos e garagem.

Situado na Póvoa de Santa Iria, uma zona de elevada procura na área Metropolitana de Lisboa, sendo um investimento seguro, uma vez que não só se encontra amplamente servido por transportes públicos (como a estação de comboios da Póvoa), como se encontra nas imediações dos principais acessos a Lisboa e toda a região, em particular da A1, IC2 (A30) e Estradas Nacionais 10 e 115.

Na área envolvente, é possível encontrar superfícies comerciais de distribuição (Pingo Doce, Intermarché, Aldi e Minipreço), comércio tradicional e diversos estabelecimentos de lazer e restauração, bem como serviços públicos, bancos, farmácias, ginásios, escolas e espaços verdes e culturais, sem esquecer a proximidade às cobiçadas margens do Rio Tejo, onde pode desfrutar de passeios em família.

Estamos inteiramente ao dispor para tudo o que necessitar!


Se necessitar de ajuda na construção, também trabalhamos com variadas empresas de Construção Civil com a possibilidade de contratação de chave na mão.

Estamos inteiramente ao dispor para tudo o que necessitar!

Não hesite, marque já a sua visita!



A Imorriscas trabalha em parceria com agências de intermediação de crédito que o ajudarão a encontrar a solução mais vantajosa para concretizar os seus projetos.


Este anúncio foi publicado por rotina informática, pelo que todos os dados carecem de confirmação.

Localização

Póvoa de Santa Iria e Forte da Casa, Vila Franca de Xira, Lisboa

Informação do anúncio

ID do anúncio 1707264
Referência Externa PTF2022-903
Atualizado em 19/03/2026 10:31:34
Riscas da Ribalta, Lda AMI 15959
Referência do imóvel: PTF2022-903
Phone
Chamada para a rede fixa nacional
Riscas da Ribalta, Lda AMI 15959
Referência do imóvel: PTF2022-903
Phone
Chamada para a rede fixa nacional
1 / 4
Terreno para Venda em Póvoa de Santa Iria e Forte da Casa Foto 1
Terreno para Venda em Póvoa de Santa Iria e Forte da Casa Foto 2
Terreno para Venda em Póvoa de Santa Iria e Forte da Casa Foto 3
Terreno para Venda em Póvoa de Santa Iria e Forte da Casa Foto 4
Terreno para Venda em Póvoa de Santa Iria e Forte da Casa
Clicky