Terreno para Venda em Alpendorada, Várzea e Torrão
1.100.000 €
Tipo
Terreno
Negócio
Venda
Área Bruta
3607 m²
Condição
Em projecto
Certificado Energético
Isento
Área do Terreno
13720 m²
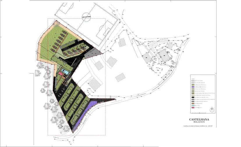
Terreno na margem do Rio Douro com projeto aprovado para Aldeamento Turístico RIVERS 2020
Terreno com Projeto aprovado de Aldeamento Turístico RIVERS 2020 5*****
O Projeto localiza-se na margem do rio Douro, interior, no concelho de Marco de Canaveses, distrito do Porto.
Acesso a um porto privado no rio Douro a apenas 200 metros e a um porto público a apenas 4 km na foz do rio Tâmega.
O projeto foi desenvolvido em uma área de terreno de 13.720m2. Área total de construção 3.607m2.
Composto por 24 unidades de alojamento de luxo, distribuídas por tipologias T0, T1 e T2 com apenas 1 piso. Possibilidade de receber 70 a 80 hospedes.
Pode ser alargado até 40 unidades de alojamento/quartos.
Piscina interior e exterior, Spa, garrafeira e vinha.
A construção é projetada para módulos de diferentes tamanhos.
Todo o projeto de construção foi pensado para aceder a fundos de investimento europeus, com uma contribuição de 70% a fundo perdido.
Tem parecer positivo de grande relevância para o local por parte do Turismo Porto e Norte e da agência de ambiente.
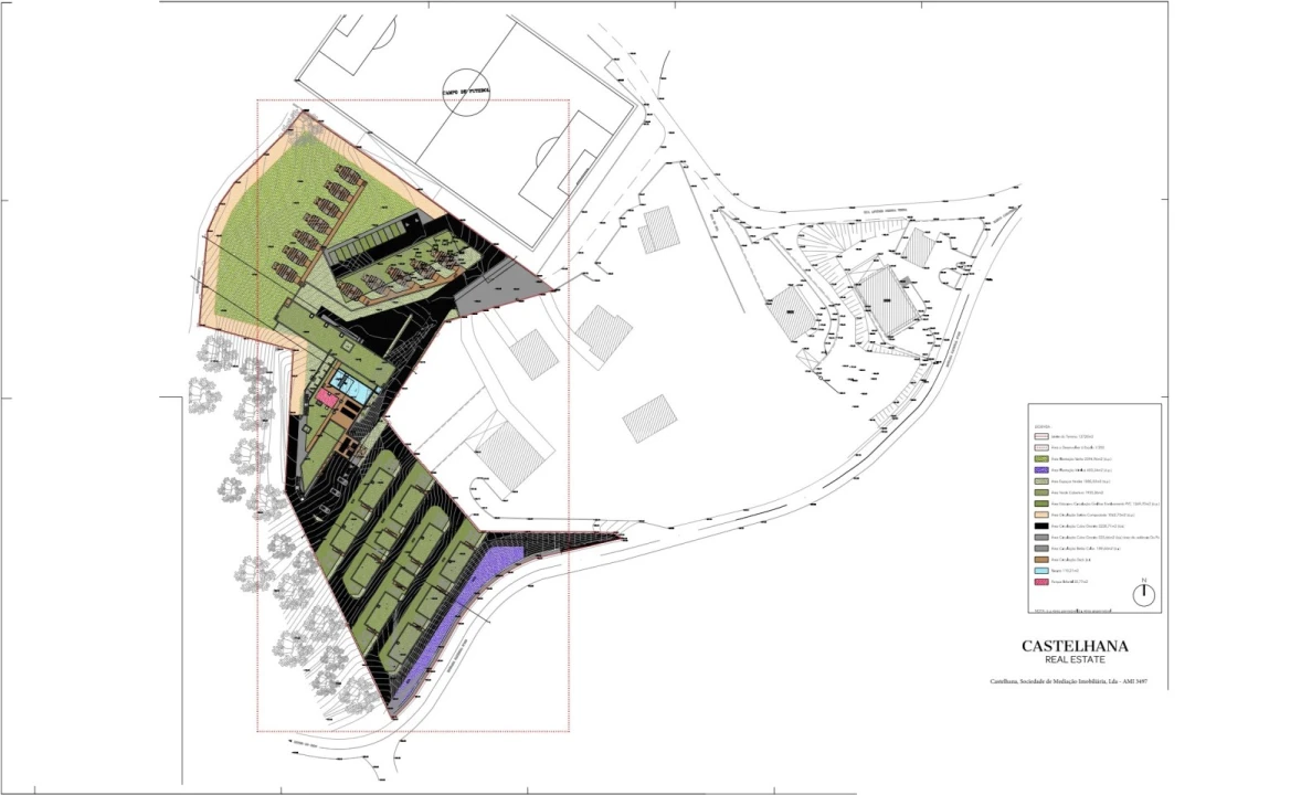
O Projeto localiza-se na margem do rio Douro, interior, no concelho de Marco de Canaveses, distrito do Porto.
Acesso a um porto privado no rio Douro a apenas 200 metros e a um porto público a apenas 4 km na foz do rio Tâmega.
O projeto foi desenvolvido em uma área de terreno de 13.720m2. Área total de construção 3.607m2.
Composto por 24 unidades de alojamento de luxo, distribuídas por tipologias T0, T1 e T2 com apenas 1 piso. Possibilidade de receber 70 a 80 hospedes.
Pode ser alargado até 40 unidades de alojamento/quartos.
Piscina interior e exterior, Spa, garrafeira e vinha.
A construção é projetada para módulos de diferentes tamanhos.
Todo o projeto de construção foi pensado para aceder a fundos de investimento europeus, com uma contribuição de 70% a fundo perdido.
Tem parecer positivo de grande relevância para o local por parte do Turismo Porto e Norte e da agência de ambiente.
Localização
Alpendorada, Várzea e Torrão, Marco de Canaveses, Porto
Informação do anúncio
ID do anúncio
1707392
Referência Externa
21128
Atualizado em
04/05/2026 10:48:12
Anunciante
Chamada para a rede móvel nacional
Castelhana Real Estate
AMI 3497
Referência do imóvel:
21128
Terreno para Venda em Alpendorada, Várzea e Torrão
Vídeo