Terreno com 850 m2, para construção , situado na Ramada.
Procura um investimento seguro e rentável?
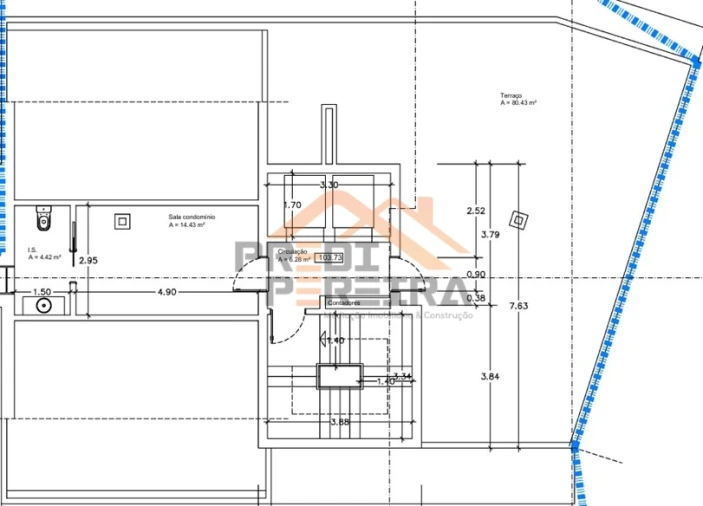
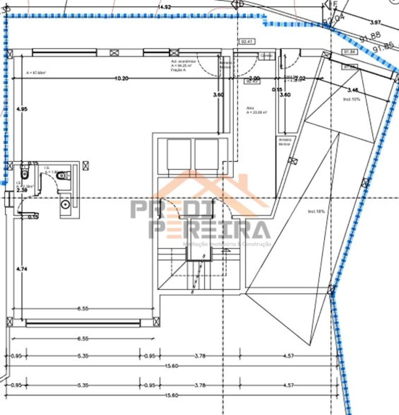
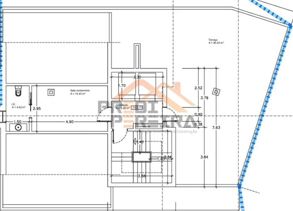
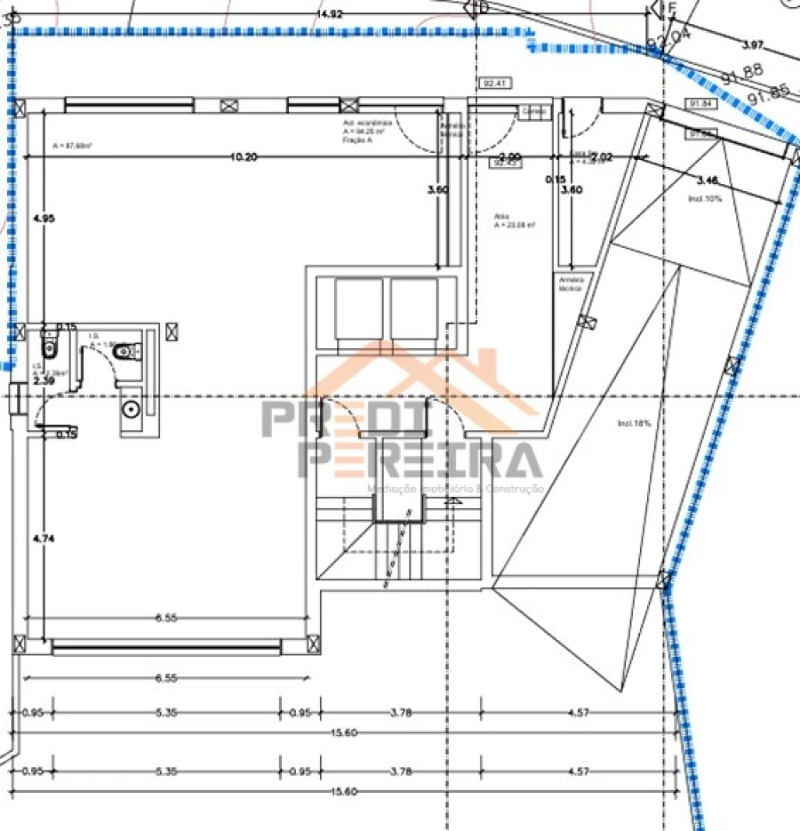
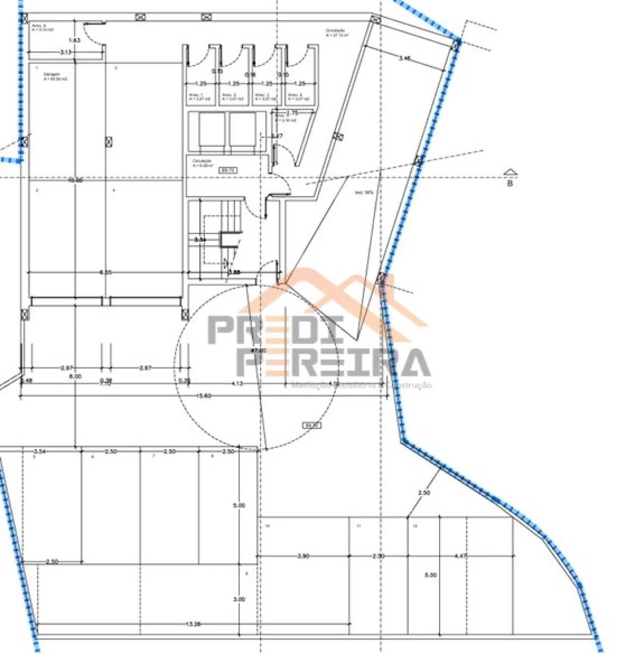
Apresentamos-lhe um terreno com 850 m², com projeto aprovado para a construção de um prédio habitacional moderno composto por 6 fogos , 1 loja comercial, arrecadações e lugares de estacionamento.
O projeto inclui:
1 piso de garagem;
1 piso com loja de 120 m² equipada com W/C;
3 pisos de habitação (3 T1 e 3 T2), com varanda.
Localizado numa zona residencial em franca expansão, com excelentes acessibilidades a escolas, comércio e vias rápidas, este investimento oferece forte potencial de valorização e rentabilidade garantida.
Uma oportunidade ideal para quem procura investir com segurança e visão de futuro!
Descubra o seu parceiro de confiança desde 2009! Na Predipereira, estamos aqui para si!
Explore as oportunidades em Predipereira.net OU visite-nos em facebook.com/predipereira.lda.
Como Intermediários de Crédito Certificados pelo Banco de Portugal (n.º0002387), estamos prontos para orientá-lo GRATUITAMENTE em todo o processo de crédito à habitação.
A jornada para a casa dos seus sonhos começa aqui, connosco!
Este site utiliza cookies. Ao navegar no site estará a consentir a sua utilização. Para mais informações sobre os cookies pode consultar a
política de privacidade.