Terreno para Venda em Porto Santo Foto 1
Terreno para Venda em Porto Santo Foto 2
Terreno para Venda em Porto Santo Foto 3
Terreno para Venda em Porto Santo Foto 4
Terreno para Venda em Porto Santo Foto 5

Terreno para Venda em Porto Santo

890.000 €

Tipo
Terreno
Negócio
Venda
Condição
Não Aplicável
Certificado Energético
Isento
Área do Terreno
10040 m²

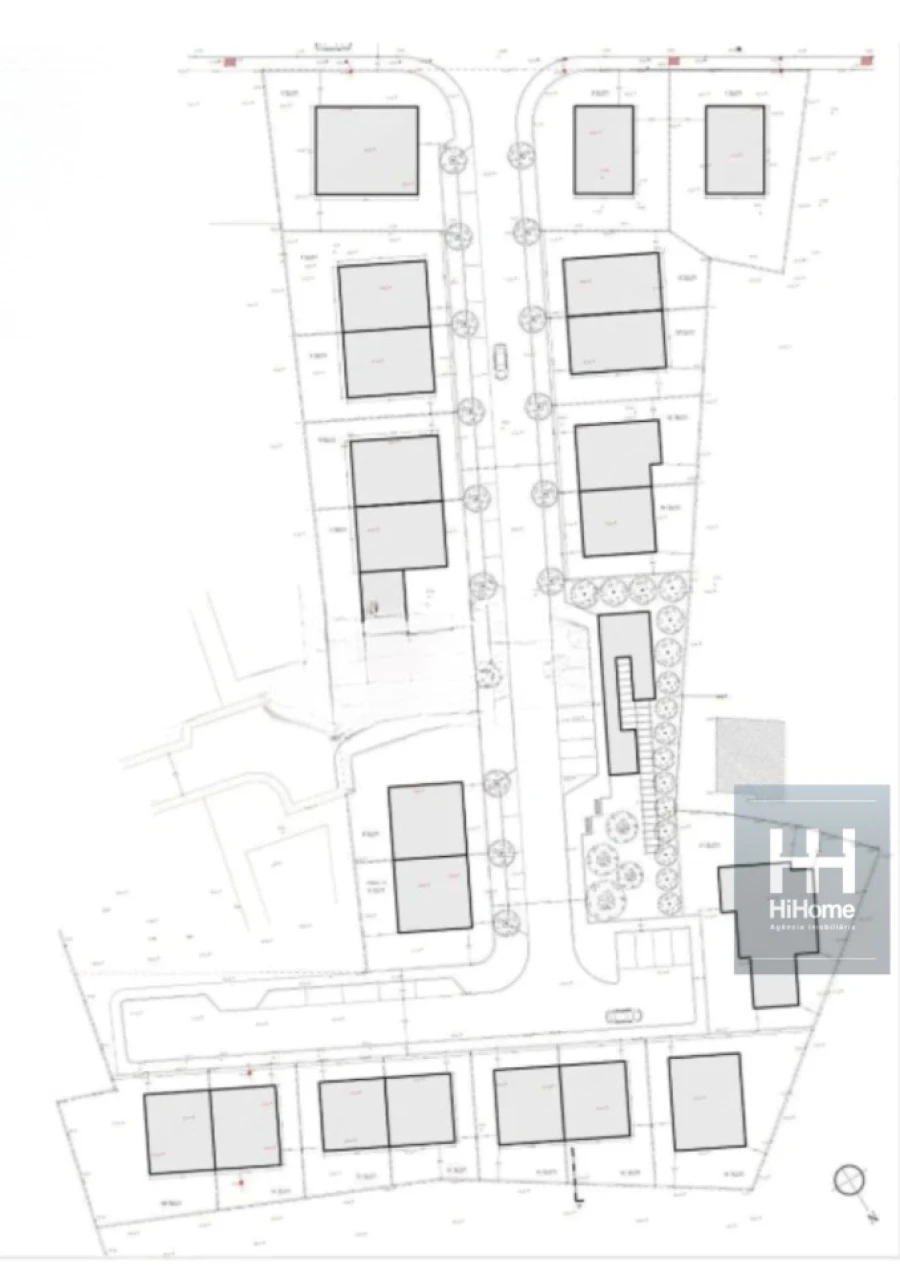
Terreno com 10.040 m2 | Sítio das Lombas, Ilha do Porto Santo

Apresentamos um terreno urbano exclusivo, localizado numa das zonas mais tranquilas e privilegiadas da ilha, com projeto de loteamento já aprovado pela Câmara Municipal.

Uma oportunidade única para iniciar de imediato um empreendimento habitacional de 15 moradias unifamiliares, num verdadeiro paraíso natural.

Localização:

Lomba, Secção A-I, Ilha do Porto Santo - Madeira

Área total: 10.420 m²

Projeto aprovado - pronto a construir:

15 lotes destinados a moradias unifamiliares

2 pisos máximos por habitação

Área edificável total: 5.988 m²

Área global de intervenção: 9.687 m²

Reserva natural: 733 m²

Cedência ao domínio público: 3.699 m²

Ruas e circulação: 1.820 m²

Passeios: 1.200 m²

Espaços verdes comuns: 679 m²

Estacionamento privado em cada lote

Sistema de aproveitamento de águas pluviais por moradia

Recuos mínimos: 3 m laterais e 5 m a tardoz

O projeto encontra-se pronto para avançar: basta entregar as especialidades técnicas (água, saneamento, eletricidade, acústica, etc.), já orçamentadas e preparadas por engenheiro civil.


Potencial extra para grandes visões

Apesar de aprovado para 15 moradias, o terreno permite outras soluções de elevado retorno (mediante aprovação camarária):

Condomínio fechado de luxo

Resort turístico ou alojamento local

Supermercado, hipermercado ou centro logístico insular

Clínica ou unidade de saúde privada

Colégio, creche ou centro educativo

Uma oportunidade rara de investir numa ilha paradisíaca, com o projeto já autorizado e toda a documentação em ordem.

_______________________________________________________________________________________________________________________

A informação disponibilizada, embora precisa é meramente informativa, pelo que não pode ser considerada vinculativa, e poderá ser sujeita a alterações.

Localização

Porto Santo, Porto Santo, Ilha de Porto Santo

Informação do anúncio

ID do anúncio 1709171
Referência Externa HH_227PXO25
Atualizado em 19/03/2026 14:44:53
HiHome AMI 12570
Referência do imóvel: HH_227PXO25
Phone
Chamada para a rede móvel nacional
HiHome AMI 12570
Referência do imóvel: HH_227PXO25
Phone
Chamada para a rede móvel nacional
1 / 20
Terreno para Venda em Porto Santo Foto 1
Terreno para Venda em Porto Santo Foto 2
Terreno para Venda em Porto Santo Foto 3
Terreno para Venda em Porto Santo Foto 4
Terreno para Venda em Porto Santo Foto 5
Terreno para Venda em Porto Santo Foto 6
Terreno para Venda em Porto Santo Foto 7
Terreno para Venda em Porto Santo Foto 8
Terreno para Venda em Porto Santo Foto 9
Terreno para Venda em Porto Santo Foto 10
Terreno para Venda em Porto Santo Foto 11
Terreno para Venda em Porto Santo Foto 12
Terreno para Venda em Porto Santo Foto 13
Terreno para Venda em Porto Santo Foto 14
Terreno para Venda em Porto Santo Foto 15
Terreno para Venda em Porto Santo Foto 16
Terreno para Venda em Porto Santo Foto 17
Terreno para Venda em Porto Santo Foto 18
Terreno para Venda em Porto Santo Foto 19
Terreno para Venda em Porto Santo Foto 20
Clicky