Voltar
Terreno para Venda em Paranhos Foto 1
Terreno para Venda em Paranhos Foto 2
Terreno para Venda em Paranhos Foto 3
Terreno para Venda em Paranhos Foto 4
Terreno para Venda em Paranhos Foto 5

Terreno para Venda em Paranhos

480.000 €

Tipo
Terreno
Negócio
Venda
Área Bruta
83 m²
Condição
Não Aplicável
Certificado Energético
Isento
Área do Terreno
230 m²

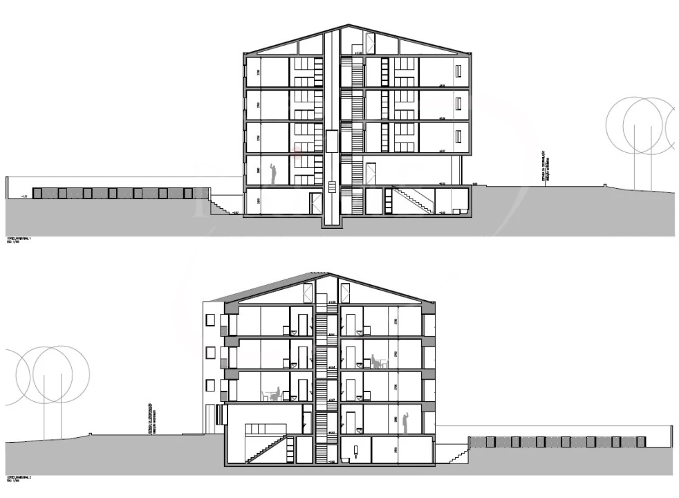
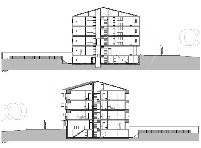
Terreno com 230 m2 na Circunvalação, a 800 mts. do Hospital de S. João

Excelente oportunidade de investimento em terreno para construção localizado na Circunvalação, a apenas 800 metros do Hospital de S. João, do Polo Universitário e da estação de metro. Seguindo a sugestão do arquiteto, o terreno comporta a construção de um edifício com rés-do-chão e três pisos. A decisão final sobre o projeto fica a critério dos potenciais compradores interessados, podendo ser adaptada conforme seus estudos e necessidades. Não perca a chance de adquirir um terreno estrategicamente posicionado em uma das áreas mais valorizadas da cidade.

Área bruta 83,2 m²
Área terreno 230 m²
Implantação do Edificio 70,0 m2
Área bruta de Construção 83,2 m2

Localização

Paranhos, Porto, Porto

Informação do anúncio

ID do anúncio 1709398
Referência Externa 35208
Atualizado em 19/03/2026 15:07:27
HED Soc de Mediação Imobiliaria Lda AMI 5356
Referência do imóvel: 35208
Phone
Chamada para a rede fixa nacional
HED Soc de Mediação Imobiliaria Lda AMI 5356
Referência do imóvel: 35208
Phone
Chamada para a rede fixa nacional
1 / 7
Terreno para Venda em Paranhos Foto 1
Terreno para Venda em Paranhos Foto 2
Terreno para Venda em Paranhos Foto 3
Terreno para Venda em Paranhos Foto 4
Terreno para Venda em Paranhos Foto 5
Terreno para Venda em Paranhos Foto 6
Terreno para Venda em Paranhos Foto 7
Clicky