Terreno para Venda em Campanhã
1.700.000 €
Tipo
Terreno
Negócio
Venda
Condição
Não Aplicável
Certificado Energético
Isento
Área do Terreno
810 m²
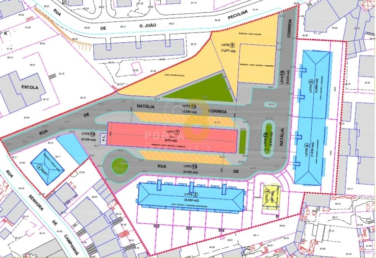
Terreno em Campanhã, com 4 frentes, ABC 3240m2 (comercial ou habitacional).
Terreno para construção com uma área total de 800 m², ideal para um projeto imobiliário de grande envergadura. O lote tem potencial para a construção de um edifício de cave, subcave e 4 andares, resultando num total de 24 apartamentos T3. Esta é uma excelente oportunidade para investidores, dada a sua localização privilegiada.
Situado nas imediações da estação de metro de Contumil, o terreno beneficia de uma ótima acessibilidade e proximidade ao nó da VCI, o que facilita a mobilidade e aumenta o seu atrativo. A zona é já servida por diversas infraestruturas, proporcionando todas as condições para o desenvolvimento imediato da obra.
O terreno foi avaliado com base no seu elevado potencial construtivo, na volumetria permitida, nas infraestruturas já existentes, bem como na área residual disponível, garantindo assim um investimento sólido e de elevado retorno.
Informações relevantes sobre a zona envolvente:
- Nos próximos 5 anos esta zona de Campanhã irá receber mais de 90.000.000€ em investimentos
- Nas proximidades podemos encontrar:
---- hotel Praça das Flores
---- diversos AL
---- Mercadona a 500m
---- Centro Cultural (antigo matadouro) ainda em obras
---- e muitos outros.
Ligue! Venha conhecer todos os pormenores.
A PORTA 88
O nosso compromisso no negócio imobiliários nasce como uma estrela num filme de sucesso!
A união de pessoas ligadas por uma causa comum, e uma vontade enorme de fazer diferente e, se possível, melhor, criou uma equipa experiente e com a coragem de, num momento difícil como nunca enfrentamos, criar um projeto de dimensão humana, em primeiro lugar, ajudando os clientes que nos conhecem e nos continuam a procurar, encontrando outros no nosso percurso, que fiquem a conhecer-nos.
Alimentamos a nossa vontade férrea com a grandeza da procura da vitória, no sentido mais grato de satisfazermos as necessidades de cada um, suprindo etapas e mantendo um esclarecimento adequado por forma a ajudarmos os nossos clientes a decidirem com sentimento de que efetivamente o objetivo que procura, está na PORTA 88.
'COMPROMISSOS COM OBJECTIVOS DE VIDA'.
Situado nas imediações da estação de metro de Contumil, o terreno beneficia de uma ótima acessibilidade e proximidade ao nó da VCI, o que facilita a mobilidade e aumenta o seu atrativo. A zona é já servida por diversas infraestruturas, proporcionando todas as condições para o desenvolvimento imediato da obra.
O terreno foi avaliado com base no seu elevado potencial construtivo, na volumetria permitida, nas infraestruturas já existentes, bem como na área residual disponível, garantindo assim um investimento sólido e de elevado retorno.
Informações relevantes sobre a zona envolvente:
- Nos próximos 5 anos esta zona de Campanhã irá receber mais de 90.000.000€ em investimentos
- Nas proximidades podemos encontrar:
---- hotel Praça das Flores
---- diversos AL
---- Mercadona a 500m
---- Centro Cultural (antigo matadouro) ainda em obras
---- e muitos outros.
Ligue! Venha conhecer todos os pormenores.
A PORTA 88
O nosso compromisso no negócio imobiliários nasce como uma estrela num filme de sucesso!
A união de pessoas ligadas por uma causa comum, e uma vontade enorme de fazer diferente e, se possível, melhor, criou uma equipa experiente e com a coragem de, num momento difícil como nunca enfrentamos, criar um projeto de dimensão humana, em primeiro lugar, ajudando os clientes que nos conhecem e nos continuam a procurar, encontrando outros no nosso percurso, que fiquem a conhecer-nos.
Alimentamos a nossa vontade férrea com a grandeza da procura da vitória, no sentido mais grato de satisfazermos as necessidades de cada um, suprindo etapas e mantendo um esclarecimento adequado por forma a ajudarmos os nossos clientes a decidirem com sentimento de que efetivamente o objetivo que procura, está na PORTA 88.
'COMPROMISSOS COM OBJECTIVOS DE VIDA'.
Localização
Campanhã, Porto, Porto
Informação do anúncio
ID do anúncio
1710057
Referência Externa
0855
Atualizado em
19/03/2026 16:30:52
Anunciante
Chamada para a rede fixa nacional
Porta 88 Imobiliária, Lda.
AMI 17902
Referência do imóvel:
0855
Terreno para Venda em Campanhã
Vídeo