Negócio para Venda em Santa Barbara de Nexe
3.500.000 €
Tipo
Negócio
Negócio
Venda
Área Bruta
146915 m²
Área Útil
7800 m²
Condição
Novo
Certificado Energético
Isento
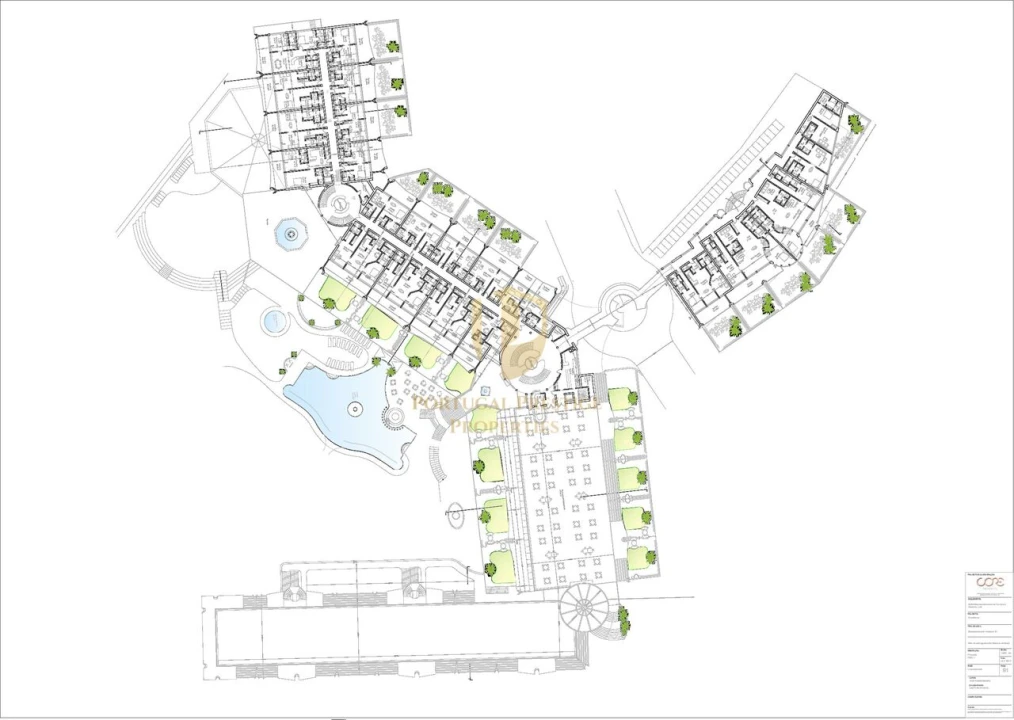
Projeto aprovado para construção de Hotel de 146 quartos, em Faro, inserido em terreno com
Projeto aprovado, pelo município de Faro, para construção de hotel com 146 quartos, aparthotel com 83 apartamentos e campo de golfe de 9 buracos, a apenas 10 minutos do centro histórico de Faro, da praia e do Aeroporto internacional, na capital de distrito.
O tamanho do lote gira em torno de 146 915m², incluindo implantação de Hotel com 8327m².
O Apart-Hotel terá 83 Apartamentos e 146 Quartos de Hotel.
O valor da taxa de emissão do alvará de licença de construção ronda os 170.000 €. Quanto às cedências a prestar à Câmara Municipal de Faro, o montante é de 830.000
Descrição do empreendimento
O projecto apresentado propõe a alteração ao nível de interiores dos quartos, reconfigurando o seu
espaço por forma a podermos ter mais unidades de alojamento, no entanto, esta alteração, em nada altera
o valor máximo previsto no PDM - 160 camas distribuídas pelas 83 unidades de alojamento. Estas 83 UA,
compõem-se por 77 T1 duplos, e 6 T1 singles, sendo 2 deles adaptados a utentes com mobilidade
condicionada.
O piso -3, mantém-se, e irá ser caracterizado por áreas comuns com lugares de estacionamento, 5
reservados a utentes de mobilidade condicionada (UMC), recepção das salas de conferência, salas de
conferência, instalações sanitárias divididas por sexos de apoio às salas de conferência e áreas de serviço
que contém áreas técnicas, arrumo de bicicletas depósito de lixo, rouparia, arrumos e cozinha de apoio às
salas de conferencia.
No piso -2, as áreas comuns mantém-se sem qualquer alteração, e iremos ter o átrio de entrada, recepção,
bar, restaurante gourmet, restaurante principal com cozinha aberta, restaurante asiático com cozinha
aberta e bar, instalações sanitárias divididas por sexos, havendo uma delas adaptada a utentes de
mobilidade condicionada, sala de estar, biblioteca, internet, café, loja, recinto de espectáculos, bilheteira,
bar, outro bloco de instalações sanitárias havendo uma delas adaptada a utentes de mobilidade
condicionada, pista de dança com bar. As unidades de alojamento, sofreram alteração de 7UA (5 T1 duplo
e 2 T2 Duplos), para 9UA (9 T1 Duplos). Como áreas de serviços temos cozinha de apoio aos restaurantes
(copas, dispensas, economatos, zonas de preparação), copa de piso, segurança, depósito de lixos,
cantina do pessoal, instalações sanitárias/ balneários/ vestiários de pessoal feminino e masculino, áreas
Anabela Polido Macieira / KEY Zen Arquitetura, Lda / + / + / (email)
técnicas, arquivo, arrecadações, dispensas, áreas técnicas, apoio ao recinto de espectáculos e discoteca
(instalações sanitárias, sala de pessoal, cozinha, sala de ensaio, bastidores, garrafeira).
No piso -1 como áreas comuns está projectado 2 lojas, cabeleireiro, SPA com recepção, instalações
sanitárias para ambos os sexos, caldarium, sala de relaxamento, sala de terapia, salas de vapores,
hamam, piscina semi-coberta, jacuzzi, mar morto, bar de apoio, hidromassagens, saunas, I. S. UMC, salas
de massagens asiáticas, piscina infantil interior, sala de indoor golfe, sala de jogos, ginásios com salas de
massagem e instalações sanitárias/balnearios (M/F/UMC), espaço infantil, piso superior do recinto de
espectáculo, instalações sanitárias de apoio à piscina exterior, zona de armazenamento de bugies, I. S.
Vestiários/balneários M/F/UMC. Nas áreas de serviço temos instalações sanitárias de apoio ao serviço (M
F), dispensas, serviço de toalhas, cozinha de apoio ao bar da piscina semi-coberta, dispensa de bilheteira,
arquivo, zona de lavandaria, zona de 1º socorros, arrumos, áreas técnicas, arrecadação da loja do golfe,
arrecadação de ferramentas e copas de piso. As unidades de alojamento, sofreram alteração de 15 UA
(13 T1 duplos e 2 T2 duplos), para 18 UA (1 T1 single e 17 T1 duplos).
No piso 0 como áreas comuns teremos o hall de entrada, recepção, instalação sanitária (M/F/UMC), e as
unidades de alojamento que passaram de 27 UA (20 T1 duplos, dos quais 3 são adaptados a UMC, 6 T2
duplo + single e 1 T32 duplos + single) para 33 UA (4 T1 singles, dos quais 2 são adaptados a UMC, e 29
T1 duplos).
O piso 1 está destinado, como áreas comuns, a restaurante-esplanada, bar, a nível de áreas de serviço
contém a cozinha, dispensas, arrumos, copa de piso e arrecadação de mobiliário. As unidades de
alojamento passaram de 18 UA (13 T1 duplo dos quais 3 são adaptados a UMC, 2 T2 duplo, 2 T2 duplo +
single e 1 T32 duplo + single), para 23 UA (1 T1 single e 22 T1 duplos).
Todas as alterações de arquitectura apresentadas cumprem o decreto de lei 163/2006, de 8 de Agosto.
Classificação e capacidade do Hotel
No que diz respeito à capacidade do hotel, pretendeu-se não exceder o regulamentado no Artigo 22º - E,
disposto no Regulamento do Plano Director Municipal de Faro, com a redacção actual, bem como a
proposta anterior, sendo a capacidade máxima de 160 camas (respeitada e mantida, tal como no projecto
anterior), e 152 convertíveis, distribuídas por 83 unidades de alojamento (77 apartamentos T1 duplos e 6
apartamentos T1 singles, 2 dos quais adaptados a utentes de mobilidade condicionada).
Com a alteração de 67 UA para 83 UA, as alterações executadas foram, maioritariamente, a nível interior e
sua reorganização, bem como a nível das fachadas. Houve apenas a alteração do Edifício V no Piso 1,
convertendo-se a área de terraço coberto, em área de construção fechada, por forma a ampliarmos os
quartos, eliminando desta forma o terraço. Esta alteração contabilizou-se em 42,02m². Não houve, no
entanto, qualquer alteração de implantação do edifício, bem como impermeabilização, manteve-se toda a
sua configuração e área ocupada inalterada.
Este ajuste a nível de tipologias mantém-se enquadrado com o Decreto de lei acima referido
A propriedade tem uma incrível mata de pinheiros, ideal um campo de golfe de 9 buracos e um lago artificial ou piscina ecológica.
O Aeroporto de Faro e um heliporto, ficam a poucos mais de 10 minutos de distância.
O tamanho do lote gira em torno de 146 915m², incluindo implantação de Hotel com 8327m².
O Apart-Hotel terá 83 Apartamentos e 146 Quartos de Hotel.
O valor da taxa de emissão do alvará de licença de construção ronda os 170.000 €. Quanto às cedências a prestar à Câmara Municipal de Faro, o montante é de 830.000
Descrição do empreendimento
O projecto apresentado propõe a alteração ao nível de interiores dos quartos, reconfigurando o seu
espaço por forma a podermos ter mais unidades de alojamento, no entanto, esta alteração, em nada altera
o valor máximo previsto no PDM - 160 camas distribuídas pelas 83 unidades de alojamento. Estas 83 UA,
compõem-se por 77 T1 duplos, e 6 T1 singles, sendo 2 deles adaptados a utentes com mobilidade
condicionada.
O piso -3, mantém-se, e irá ser caracterizado por áreas comuns com lugares de estacionamento, 5
reservados a utentes de mobilidade condicionada (UMC), recepção das salas de conferência, salas de
conferência, instalações sanitárias divididas por sexos de apoio às salas de conferência e áreas de serviço
que contém áreas técnicas, arrumo de bicicletas depósito de lixo, rouparia, arrumos e cozinha de apoio às
salas de conferencia.
No piso -2, as áreas comuns mantém-se sem qualquer alteração, e iremos ter o átrio de entrada, recepção,
bar, restaurante gourmet, restaurante principal com cozinha aberta, restaurante asiático com cozinha
aberta e bar, instalações sanitárias divididas por sexos, havendo uma delas adaptada a utentes de
mobilidade condicionada, sala de estar, biblioteca, internet, café, loja, recinto de espectáculos, bilheteira,
bar, outro bloco de instalações sanitárias havendo uma delas adaptada a utentes de mobilidade
condicionada, pista de dança com bar. As unidades de alojamento, sofreram alteração de 7UA (5 T1 duplo
e 2 T2 Duplos), para 9UA (9 T1 Duplos). Como áreas de serviços temos cozinha de apoio aos restaurantes
(copas, dispensas, economatos, zonas de preparação), copa de piso, segurança, depósito de lixos,
cantina do pessoal, instalações sanitárias/ balneários/ vestiários de pessoal feminino e masculino, áreas
Anabela Polido Macieira / KEY Zen Arquitetura, Lda / + / + / (email)
técnicas, arquivo, arrecadações, dispensas, áreas técnicas, apoio ao recinto de espectáculos e discoteca
(instalações sanitárias, sala de pessoal, cozinha, sala de ensaio, bastidores, garrafeira).
No piso -1 como áreas comuns está projectado 2 lojas, cabeleireiro, SPA com recepção, instalações
sanitárias para ambos os sexos, caldarium, sala de relaxamento, sala de terapia, salas de vapores,
hamam, piscina semi-coberta, jacuzzi, mar morto, bar de apoio, hidromassagens, saunas, I. S. UMC, salas
de massagens asiáticas, piscina infantil interior, sala de indoor golfe, sala de jogos, ginásios com salas de
massagem e instalações sanitárias/balnearios (M/F/UMC), espaço infantil, piso superior do recinto de
espectáculo, instalações sanitárias de apoio à piscina exterior, zona de armazenamento de bugies, I. S.
Vestiários/balneários M/F/UMC. Nas áreas de serviço temos instalações sanitárias de apoio ao serviço (M
F), dispensas, serviço de toalhas, cozinha de apoio ao bar da piscina semi-coberta, dispensa de bilheteira,
arquivo, zona de lavandaria, zona de 1º socorros, arrumos, áreas técnicas, arrecadação da loja do golfe,
arrecadação de ferramentas e copas de piso. As unidades de alojamento, sofreram alteração de 15 UA
(13 T1 duplos e 2 T2 duplos), para 18 UA (1 T1 single e 17 T1 duplos).
No piso 0 como áreas comuns teremos o hall de entrada, recepção, instalação sanitária (M/F/UMC), e as
unidades de alojamento que passaram de 27 UA (20 T1 duplos, dos quais 3 são adaptados a UMC, 6 T2
duplo + single e 1 T32 duplos + single) para 33 UA (4 T1 singles, dos quais 2 são adaptados a UMC, e 29
T1 duplos).
O piso 1 está destinado, como áreas comuns, a restaurante-esplanada, bar, a nível de áreas de serviço
contém a cozinha, dispensas, arrumos, copa de piso e arrecadação de mobiliário. As unidades de
alojamento passaram de 18 UA (13 T1 duplo dos quais 3 são adaptados a UMC, 2 T2 duplo, 2 T2 duplo +
single e 1 T32 duplo + single), para 23 UA (1 T1 single e 22 T1 duplos).
Todas as alterações de arquitectura apresentadas cumprem o decreto de lei 163/2006, de 8 de Agosto.
Classificação e capacidade do Hotel
No que diz respeito à capacidade do hotel, pretendeu-se não exceder o regulamentado no Artigo 22º - E,
disposto no Regulamento do Plano Director Municipal de Faro, com a redacção actual, bem como a
proposta anterior, sendo a capacidade máxima de 160 camas (respeitada e mantida, tal como no projecto
anterior), e 152 convertíveis, distribuídas por 83 unidades de alojamento (77 apartamentos T1 duplos e 6
apartamentos T1 singles, 2 dos quais adaptados a utentes de mobilidade condicionada).
Com a alteração de 67 UA para 83 UA, as alterações executadas foram, maioritariamente, a nível interior e
sua reorganização, bem como a nível das fachadas. Houve apenas a alteração do Edifício V no Piso 1,
convertendo-se a área de terraço coberto, em área de construção fechada, por forma a ampliarmos os
quartos, eliminando desta forma o terraço. Esta alteração contabilizou-se em 42,02m². Não houve, no
entanto, qualquer alteração de implantação do edifício, bem como impermeabilização, manteve-se toda a
sua configuração e área ocupada inalterada.
Este ajuste a nível de tipologias mantém-se enquadrado com o Decreto de lei acima referido
A propriedade tem uma incrível mata de pinheiros, ideal um campo de golfe de 9 buracos e um lago artificial ou piscina ecológica.
O Aeroporto de Faro e um heliporto, ficam a poucos mais de 10 minutos de distância.
Localização
Santa Barbara de Nexe, Faro, Faro
Informação do anúncio
ID do anúncio
1732718
Referência Externa
PR-CS-HOT-85155
Atualizado em
19/04/2026 07:27:15
Anunciante
Chamada para a rede fixa nacional
Portugal Prestige Properties
AMI 17215
Referência do imóvel:
PR-CS-HOT-85155
Negócio para Venda em Santa Barbara de Nexe