Apartamento T1 para Venda em Fernao Ferro
326.600 €
Tipo
Apartamento
Negócio
Venda
Quartos
1
Casas de Banho
2
Área Bruta
105 m²
Área Útil
89 m²
Condição
Não Aplicável
Certificado Energético
A+
Área do Terreno
300 m²
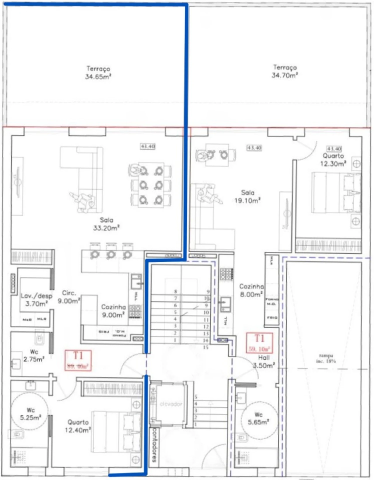
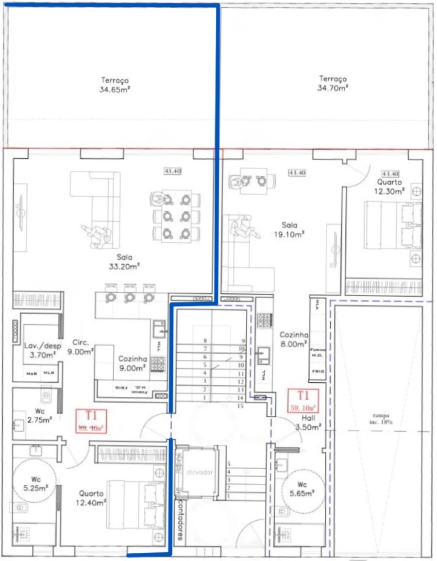
Apartamento T1 com Terraço e Estacionamento no Pinhal do General - Fernão Ferro
Apartamento com 1 quarto, em construção, com uma área bruta de 105m2 e útil de 89,40m2, correspondente ao Rés do Chão Esqº., de um prédio situado em Pinhal do General, em zona calma, com excelente exposição solar, sendo composto por:
- Hall de entrada de 4m2;
- Sala de estar e refeições de 33,20m2 com acesso a terraço;
- Terraço de 34,65m2;
- Cozinha de 9m2 totalmente equipada com eletrodomésticos Bosch (placa, forno, exaustor, micro-ondas, combinado, máquina de lavar a loiça e roupa), móveis termolaminados e bancada em Silestone;
- Lavandaria/Despensa de 3,70m2;
- Corredor de circulação de 9m2;
- WC social com 2,75m2;
- Suite de 28,25m2 com: Quarto de 12,40m2 com roupeiro embutido e Wc de 5,25m2;
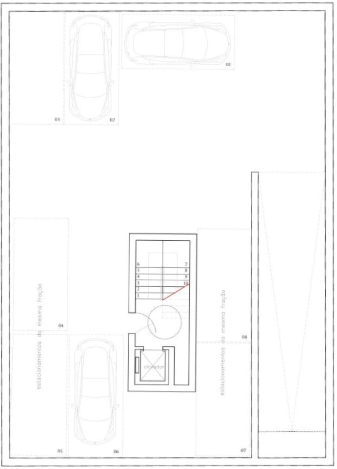
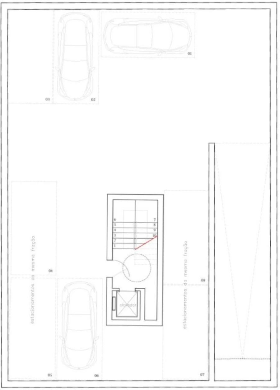
- Estacionamento ao nível da cave para 1 viatura.
Final de construção prevista para 2º trimestre 2027.
O apartamento tem áreas e acabamentos de excelência de arquitetura contemporânea e dispõe de pré-instalação de ar condicionado, vidros duplos, caixilharias em PVC oscilobatentes com corte térmico, estores elétricos com corte térmico, iluminação em Led, tetos falsos, casa de banho com louças suspensas marca 'Roca', porta blindada e vídeo porteiro.
O imóvel tem elevador até ao estacionamento e encontra-se numa zona calma, com amplos espaços verdes, oferecendo uma experiência de exclusividade e conforto.
Encontra-se perto de transportes, farmácia e escolas, a 15 minutos do Colégio Atlântico ou da estação Fertagus / Foros da Amora, a 5 minutos da zona comercial da Quinta do Conde, usufruindo de boas acessibilidades à A33, A2, e N10, permitindo fácil acesso às praias de Sesimbra, Lagoa de Albufeira e Costa da Caparica.
Venha conhecer a sua nova casa !
- Hall de entrada de 4m2;
- Sala de estar e refeições de 33,20m2 com acesso a terraço;
- Terraço de 34,65m2;
- Cozinha de 9m2 totalmente equipada com eletrodomésticos Bosch (placa, forno, exaustor, micro-ondas, combinado, máquina de lavar a loiça e roupa), móveis termolaminados e bancada em Silestone;
- Lavandaria/Despensa de 3,70m2;
- Corredor de circulação de 9m2;
- WC social com 2,75m2;
- Suite de 28,25m2 com: Quarto de 12,40m2 com roupeiro embutido e Wc de 5,25m2;
- Estacionamento ao nível da cave para 1 viatura.
Final de construção prevista para 2º trimestre 2027.
O apartamento tem áreas e acabamentos de excelência de arquitetura contemporânea e dispõe de pré-instalação de ar condicionado, vidros duplos, caixilharias em PVC oscilobatentes com corte térmico, estores elétricos com corte térmico, iluminação em Led, tetos falsos, casa de banho com louças suspensas marca 'Roca', porta blindada e vídeo porteiro.
O imóvel tem elevador até ao estacionamento e encontra-se numa zona calma, com amplos espaços verdes, oferecendo uma experiência de exclusividade e conforto.
Encontra-se perto de transportes, farmácia e escolas, a 15 minutos do Colégio Atlântico ou da estação Fertagus / Foros da Amora, a 5 minutos da zona comercial da Quinta do Conde, usufruindo de boas acessibilidades à A33, A2, e N10, permitindo fácil acesso às praias de Sesimbra, Lagoa de Albufeira e Costa da Caparica.
Venha conhecer a sua nova casa !
Localização
Fernao Ferro, Seixal, Setúbal
Informação do anúncio
ID do anúncio
1741369
Referência Externa
APA_724 (2)
Atualizado em
29/03/2026 15:46:49
Anunciante
Chamada para a rede fixa nacional
Marques Real Estate
AMI 13715
Referência do imóvel:
APA_724 (2)
Apartamento T1 para Venda em Fernao Ferro