Apartamento T1 para Venda em Fernao Ferro
295.500 €
Tipo
Apartamento
Negócio
Venda
Quartos
1
Casas de Banho
1
Área Bruta
59 m²
Área Útil
59 m²
Condição
Não Aplicável
Certificado Energético
A+
Área do Terreno
300 m²
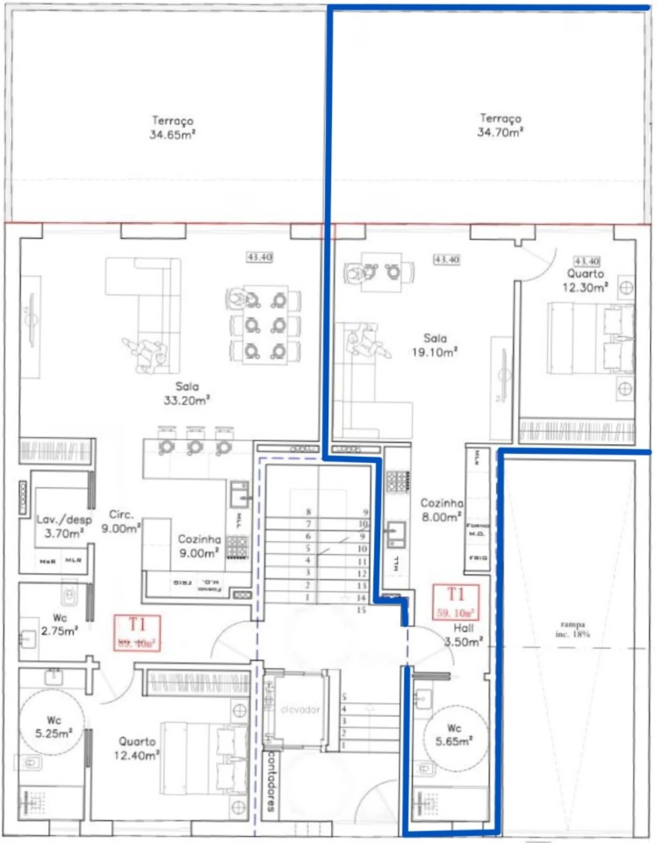
Apartamento T1 com Terraço e Estacionamento no Pinhal do General - Fernão Ferro
Apartamento com 1 quarto, em construção, com uma área bruta de 94m2 e útil de 59,10m2, correspondente ao Rés do Chão Drtº., de um prédio situado em Pinhal do General, em zona calma, com excelente exposição solar, sendo composto por:
- Hall de entrada de 3,50m2;
- WC social com 5,65m2;
- Cozinha de 8m2 totalmente equipada com eletrodomésticos Bosch (placa, forno, exaustor, micro-ondas, combinado, máquina de lavar a loiça e roupa), móveis termolaminados e bancada em Silestone;
- Sala de estar e refeições de 19,10m2 com acesso a terraço;
- Terraço de 34,70m2;
- Quarto de 12,30m2 com roupeiro embutido e com acesso ao terraço;
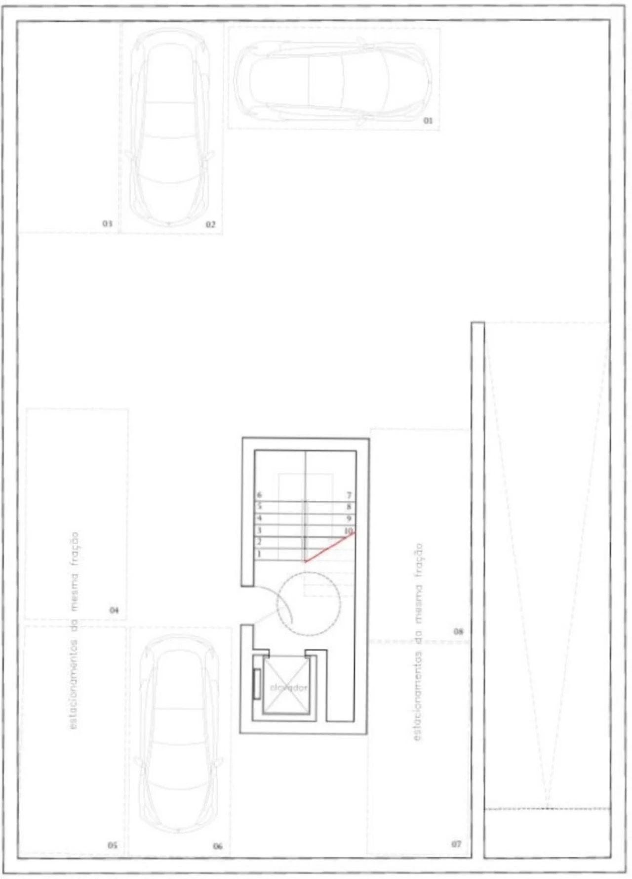
- Estacionamento ao nível da Cave para 1 viatura.
Final de construção prevista para 2º trimestre 2027.
O apartamento tem áreas e acabamentos de excelência de arquitetura contemporânea e dispõe de pré-instalação de ar condicionado, vidros duplos, caixilharias em PVC oscilobatentes com corte térmico, estores elétricos com corte térmico, iluminação em Led, tetos falsos, a casa de banho com louças suspensas marca 'Roca', porta blindada e vídeo porteiro.
O imóvel tem elevador até ao estacionamento e encontra-se numa zona calma, com amplos espaços verdes, oferecendo uma experiência de exclusividade e conforto.
Encontra-se perto de transportes, farmácia e escolas, a 15 minutos do Colégio Atlântico ou da estação Fertagus / Foros da Amora, a 5 minutos da zona comercial da Quinta do Conde, usufruindo de boas acessibilidades à A33, A2, e N10, permitindo fácil acesso às praias de Sesimbra, Lagoa de Albufeira e Costa da Caparica.
Venha conhecer a sua nova casa !
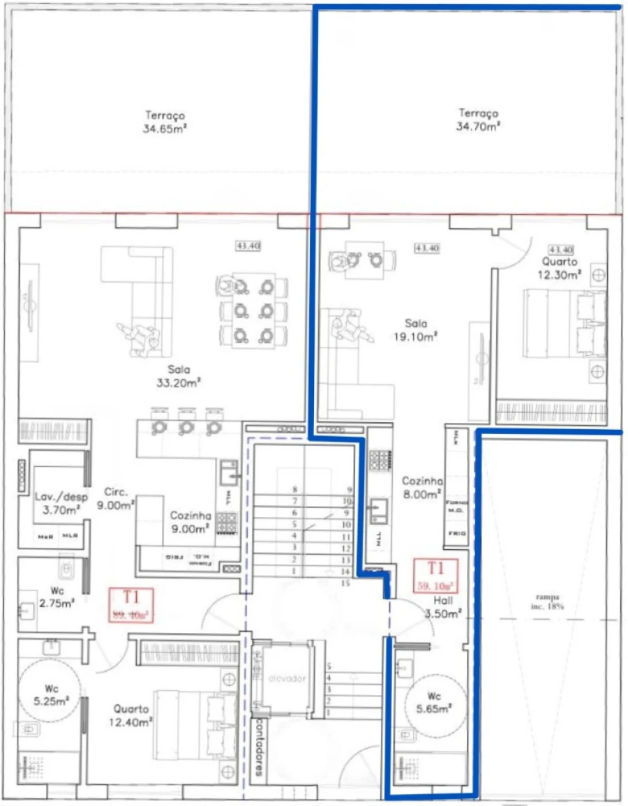
- Hall de entrada de 3,50m2;
- WC social com 5,65m2;
- Cozinha de 8m2 totalmente equipada com eletrodomésticos Bosch (placa, forno, exaustor, micro-ondas, combinado, máquina de lavar a loiça e roupa), móveis termolaminados e bancada em Silestone;
- Sala de estar e refeições de 19,10m2 com acesso a terraço;
- Terraço de 34,70m2;
- Quarto de 12,30m2 com roupeiro embutido e com acesso ao terraço;
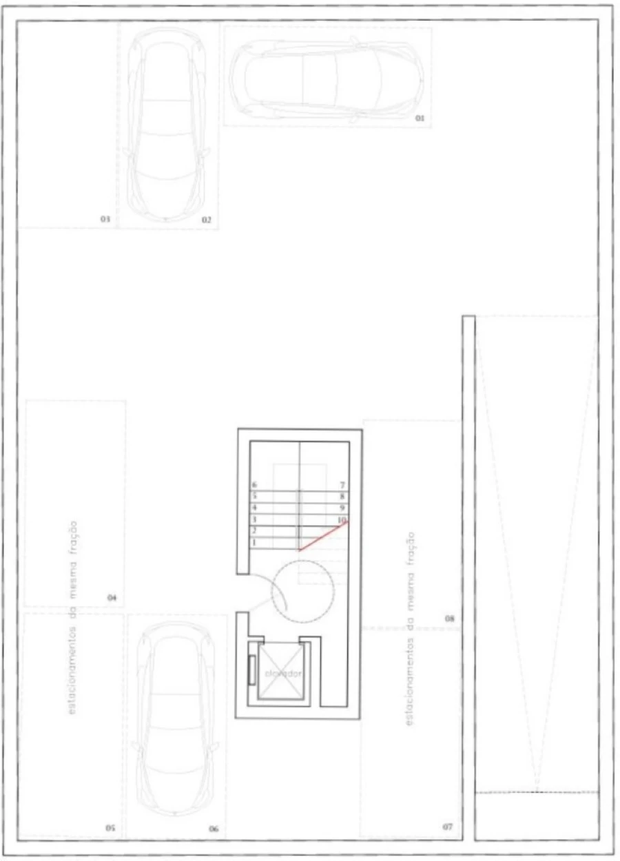
- Estacionamento ao nível da Cave para 1 viatura.
Final de construção prevista para 2º trimestre 2027.
O apartamento tem áreas e acabamentos de excelência de arquitetura contemporânea e dispõe de pré-instalação de ar condicionado, vidros duplos, caixilharias em PVC oscilobatentes com corte térmico, estores elétricos com corte térmico, iluminação em Led, tetos falsos, a casa de banho com louças suspensas marca 'Roca', porta blindada e vídeo porteiro.
O imóvel tem elevador até ao estacionamento e encontra-se numa zona calma, com amplos espaços verdes, oferecendo uma experiência de exclusividade e conforto.
Encontra-se perto de transportes, farmácia e escolas, a 15 minutos do Colégio Atlântico ou da estação Fertagus / Foros da Amora, a 5 minutos da zona comercial da Quinta do Conde, usufruindo de boas acessibilidades à A33, A2, e N10, permitindo fácil acesso às praias de Sesimbra, Lagoa de Albufeira e Costa da Caparica.
Venha conhecer a sua nova casa !
Localização
Fernao Ferro, Seixal, Setúbal
Informação do anúncio
ID do anúncio
1744448
Referência Externa
APA_727
Atualizado em
30/03/2026 14:45:45
Anunciante
Chamada para a rede fixa nacional
Marques Real Estate
AMI 13715
Referência do imóvel:
APA_727
Apartamento T1 para Venda em Fernao Ferro