Moradia T1 para Venda em Alfeizerão
79.900 €
Tipo
Moradia
Negócio
Venda
Quartos
1
Casas de Banho
1
Área Bruta
23 m²
Condição
Por recuperar
Certificado Energético
Isento
Área do Terreno
47 m²
Moradia T1 em Ruína com Quintal - Centro de Alfeizerão - Oportunidade Única!
Se procura um imóvel com charme, sol todo o dia e potencial ilimitado, encontrou a sua oportunidade!
Esta moradia T1 com logradouro está situada no centro de Alfeizerão, rodeada de comércio, serviços e praias deslumbrantes a poucos minutos.Sol todo o dia, no centro da vila e com tudo à mão.
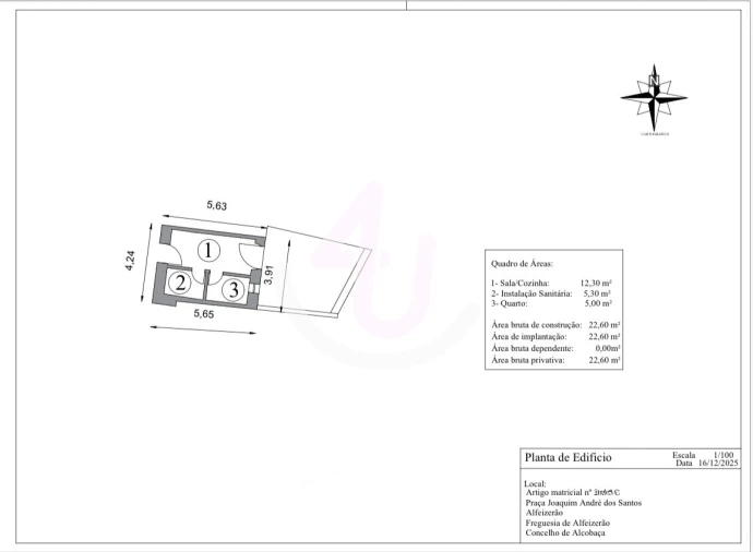
Áreas do imóvel:
* Área bruta: 22,40 m²
* Sala/cozinha: 12,30 m²
* Quarto: 5,00 m²
* WC: 5,30 m²
* Logradouro: 24,40 m²
Potencial de valorização:
* Possui pedido de certificação do RJEU
* Confirmação da Câmara Municipal de Alcobaça da possibilidade de construir rés-do-chão, 1º andar e sótão, com ocupação 100% da área de implantação
* Excelente oportunidade para ampliar ou investir
Localização privilegiada:
* Comércio, cafés, pastelarias e restaurantes a poucos passos
* Farmácia, mini-mercado e serviços essenciais à porta
* Campo de futebol e espaços para crianças
* Mercado mensal e praça semanal
Praias e lazer a minutos:
* São Martinho do Porto - baía em concha
* Salir do Porto - dunas impressionantes
* Nazaré - ondas gigantes mundialmente famosas
* Foz do Arelho - onde a Lagoa de Óbidos encontra o Oceano Atlântico
Bons acessos:
* 50 minutos de Lisboa
* 25 minutos de Leiria
* 10 minutos de Caldas da Rainha
* 15 minutos de Alcobaça
Destaques:
* Sol todo o dia
* Centro da vila com tudo à mão
* Potencial construtivo excecional
* Vila acolhedora e em constante valorização
Não perca esta oportunidade!Moradia pronta para expandir ou transformar, uma oportunidade única no mercado.
SMILES 4U - O SEU SORRISO MORA AQUI!
::::::::::::::::::::::::::::::::::::::::::::::::::::::::::::::::::::::::::::::::::::::::::::::::::::::::
1-Bedroom house in ruins with a backyard - Center of Alfeizerão - Unique opportunity!
If you're looking for a property with charm, all-day sunlight, and unlimited potential, you've found your opportunity.
This 1-bedroom house with a private courtyard is located in the center of Alfeizerão, surrounded by shops, services, and stunning beaches just minutes away.
All-day sun, right in the heart of the village with everything within reach.
Property areas:
Gross area: 22.40 m²
Living room/kitchen: 12.30 m²
Bedroom: 5.00 m²
Bathroom: 5.30 m²
Courtyard: 24.40 m²
Value potential:
Application submitted for RJEU certification
Confirmation from the Alcobaça City Council of the possibility to build a ground floor, first floor, and attic, with 100% lot coverage
Excellent opportunity to expand or invest
Prime location:
Shops, cafés, bakeries, and restaurants just steps away
Pharmacy, mini-market, and essential services at your doorstep
Soccer field and children's play areas nearby
Monthly market and weekly town square market
Beaches and leisure just minutes away:
São Martinho do Porto - shell-shaped bay
Salir do Porto - impressive dunes
Nazaré - world-famous giant waves
Foz do Arelho - where the Óbidos Lagoon meets the Atlantic Ocean
Easy access:
50 minutes from Lisbon
25 minutes from Leiria
10 minutes from Caldas da Rainha
15 minutes from Alcobaça
Highlights:
All-day sunlight
Central village location with everything nearby
Exceptional construction potential
Welcoming and steadily appreciating area
Don't miss this opportunity.
A property ready to expand or transform, a truly unique opportunity on the market.
SMILES 4U - YOUR SMILE LIVES HERE!
Esta moradia T1 com logradouro está situada no centro de Alfeizerão, rodeada de comércio, serviços e praias deslumbrantes a poucos minutos.Sol todo o dia, no centro da vila e com tudo à mão.
Áreas do imóvel:
* Área bruta: 22,40 m²
* Sala/cozinha: 12,30 m²
* Quarto: 5,00 m²
* WC: 5,30 m²
* Logradouro: 24,40 m²
Potencial de valorização:
* Possui pedido de certificação do RJEU
* Confirmação da Câmara Municipal de Alcobaça da possibilidade de construir rés-do-chão, 1º andar e sótão, com ocupação 100% da área de implantação
* Excelente oportunidade para ampliar ou investir
Localização privilegiada:
* Comércio, cafés, pastelarias e restaurantes a poucos passos
* Farmácia, mini-mercado e serviços essenciais à porta
* Campo de futebol e espaços para crianças
* Mercado mensal e praça semanal
Praias e lazer a minutos:
* São Martinho do Porto - baía em concha
* Salir do Porto - dunas impressionantes
* Nazaré - ondas gigantes mundialmente famosas
* Foz do Arelho - onde a Lagoa de Óbidos encontra o Oceano Atlântico
Bons acessos:
* 50 minutos de Lisboa
* 25 minutos de Leiria
* 10 minutos de Caldas da Rainha
* 15 minutos de Alcobaça
Destaques:
* Sol todo o dia
* Centro da vila com tudo à mão
* Potencial construtivo excecional
* Vila acolhedora e em constante valorização
Não perca esta oportunidade!Moradia pronta para expandir ou transformar, uma oportunidade única no mercado.
SMILES 4U - O SEU SORRISO MORA AQUI!
::::::::::::::::::::::::::::::::::::::::::::::::::::::::::::::::::::::::::::::::::::::::::::::::::::::::
1-Bedroom house in ruins with a backyard - Center of Alfeizerão - Unique opportunity!
If you're looking for a property with charm, all-day sunlight, and unlimited potential, you've found your opportunity.
This 1-bedroom house with a private courtyard is located in the center of Alfeizerão, surrounded by shops, services, and stunning beaches just minutes away.
All-day sun, right in the heart of the village with everything within reach.
Property areas:
Gross area: 22.40 m²
Living room/kitchen: 12.30 m²
Bedroom: 5.00 m²
Bathroom: 5.30 m²
Courtyard: 24.40 m²
Value potential:
Application submitted for RJEU certification
Confirmation from the Alcobaça City Council of the possibility to build a ground floor, first floor, and attic, with 100% lot coverage
Excellent opportunity to expand or invest
Prime location:
Shops, cafés, bakeries, and restaurants just steps away
Pharmacy, mini-market, and essential services at your doorstep
Soccer field and children's play areas nearby
Monthly market and weekly town square market
Beaches and leisure just minutes away:
São Martinho do Porto - shell-shaped bay
Salir do Porto - impressive dunes
Nazaré - world-famous giant waves
Foz do Arelho - where the Óbidos Lagoon meets the Atlantic Ocean
Easy access:
50 minutes from Lisbon
25 minutes from Leiria
10 minutes from Caldas da Rainha
15 minutes from Alcobaça
Highlights:
All-day sunlight
Central village location with everything nearby
Exceptional construction potential
Welcoming and steadily appreciating area
Don't miss this opportunity.
A property ready to expand or transform, a truly unique opportunity on the market.
SMILES 4U - YOUR SMILE LIVES HERE!
Localização
Alfeizerão, Alcobaça, Leiria
Informação do anúncio
ID do anúncio
1764305
Referência Externa
S4U100-V206
Atualizado em
28/05/2026 21:36:09
Anunciante
Chamada para a rede fixa nacional
SMILES4U - Partilhar Sorrisos Mediação Imobiliaria
AMI 8148
Referência do imóvel:
S4U100-V206
Moradia T1 para Venda em Alfeizerão