Apartamento T3 para Venda em Nazare
299.000 €
Tipo
Apartamento
Negócio
Venda
Ano de Construção
2008
Quartos
3
Casas de Banho
2
Área Bruta
158 m²
Área Útil
106 m²
Condição
Usado
Certificado Energético
D
Apart T3 com garagem em condomínio com 2 piscinas e jardim na Nazaré (Costa de Prata)
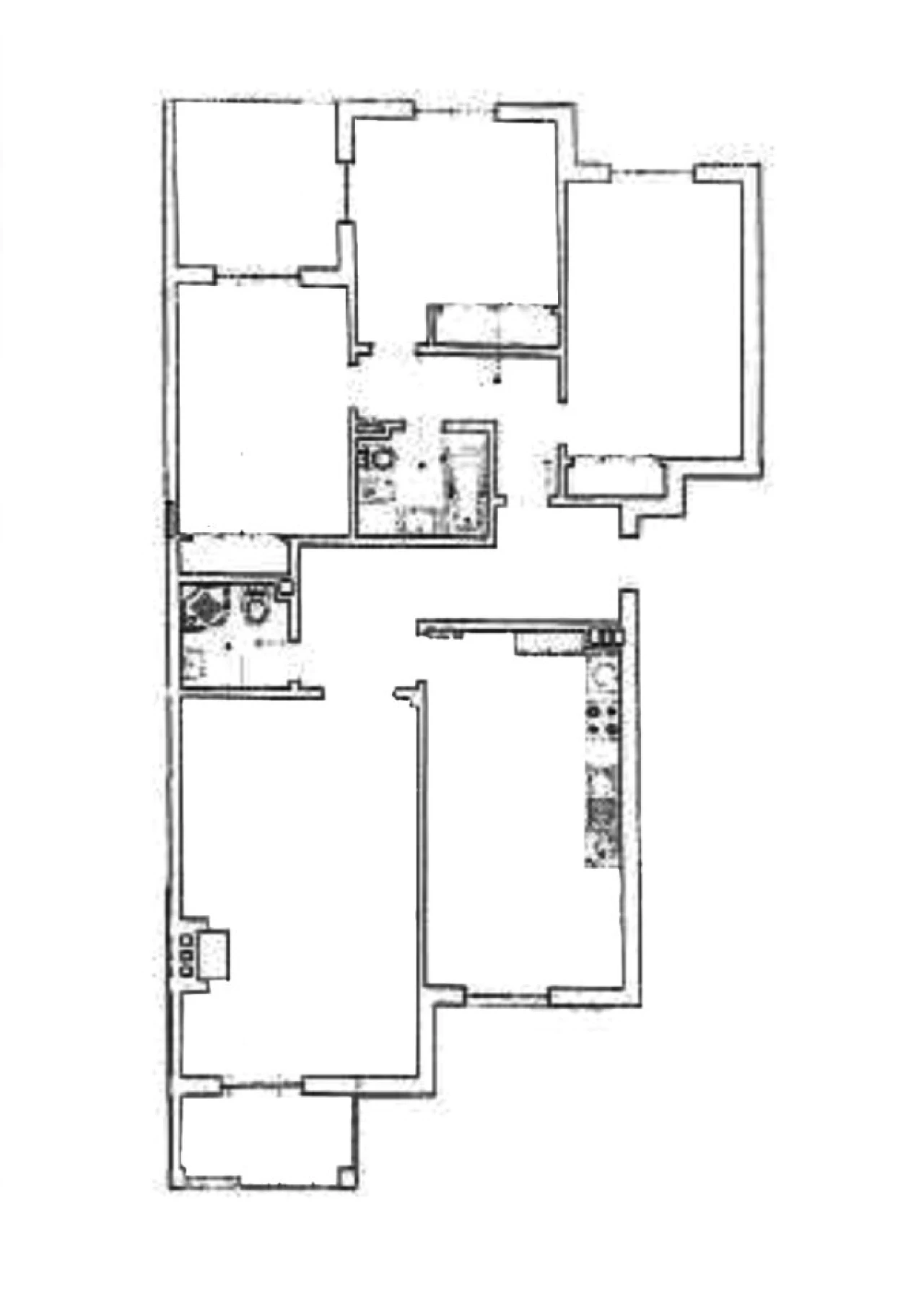
Apartamento composto por hall de entrada, 3 quartos, sala, cozinha (equipada), 2 casas de banho, garagem fechada, 2 varandas e terraço privado virado a Sul onde é possível aproveitar em pleno o sol único da Costa de Prata.
O condomínio é fechado e está dotado de churrasqueiras comuns, sala para ginásio, piscina de adultos e crianças e um amplo jardim relvado, permitindo, mesmo no Verão, desfrutar de agradáveis momentos de descanso e é ideal para quem tem crianças dadas as características dos espaços comuns.
Este apartamento possui generosas áreas, está mobilado e equipado e possui aquecimento central.
Na Vila da Nazaré encontra todos os serviços necessários a uma vida de elevado padrão de qualidade e que lhe permite usufruir de dias e momentos, realmente, inesquecíveis. Além da mais típica praia da Costa de Prata e porto de pesca, encontra restaurantes, bares, esplanadas, comércio tradicional, mercado diário de frescos, farmácia, centro de saúde, posto de policia e, ainda, tomando o elevador chega à parte alta no Sitio da Nazaré. Aqui, situa-se o Santuário de Nª Sra da Nazaré, cuja lenda está intimamente ligada à história da Vila, bem como, nos últimos anos, se tornou local de visita obrigatória para os amantes do Surf de Ondas Gigantes, designadamente pontos como o Forte de S. Miguel Arcanjo e a Praia do Norte, onde entre Outubro e Março de cada ano, os mais destemidos surfistas de ondas gigantes estão aqui para desafiar o Canhão da Nazaré.
A Nazaré é uma das mais típicas praias de Portugal e, também, importante localidade piscatória com uma história e tradição únicas, desde logo a forma de vestir das suas gentes e a tradição das Sete Saias. Desde há anos que a Nazaré é escolhida por turistas de todo o mundo para passar as suas férias, sendo visitada ao longo do ano por milhares de pessoas.
Nos anos mais recentes a Nazaré deixou de ser apenas uma Vila piscatória e praia de referência na Costa de Prata, para passar a ser reconhecida internacionalmente pelos eventos que realiza ao longo do ano e que permitem manter a permanente dinâmica da Vila e motivo de interesse, sejam a prova da World Surf League - Ondas Gigantes - que se tem lugar anualmente durante o Inverno e as competições internacionais de futebol e andebol de praia, designadamente Taças das Nações, que ocorrem no Verão.
Também no âmbito da cultura, a Nazaré aposta em eventos de qualidade, sejam eles de cariz popular como o carnaval e a passagem de ano, de cariz religioso como a celebração da Páscoa e das festas de Nª Sra. da Nazaré em Setembro, como, ainda, de cariz erudito como sejam o evento anual de música clássica e o Festival de Jazz do Valado dos Frades.
Destaques :
* Cozinha equipada
* Aquecimento central
* Mobilado
* Varanda com vista para as piscinas e jardim do condomínio
* Terraço privado com excelente exposição solar - sul
* Terraço comum na cobertura
* Condomínio fechado
* Garagem fechada
* Ginásio Comum
* Amplo jardim relvado com 2 piscinas (adultos e crianças)
Distâncias e pontos de interesse na zona :
* Nazaré - centro - (praia, surf ondas gigantes, desportos náuticos, cultura, eventos, desportos na areia, restaurantes) : 2 kms
* Praia do Salgado (praia, trilhos de passeio, asa delta) : 9 kms
* Praia de São Martinho do Porto (baía azul, praia segura para crianças, desportos náuticos) : 15 kms
* Praia das Paredes (praias, restaurantes e surf) : 13 kms
* Alcobaça (mosteiro, cultura, história e doçaria conventual) : 16 kms
* Óbidos (vila medieval, castelo e eventos temáticos ao longo de todo o ano) : 40 mks
* Caldas da Rainha (cidade termal, museus, jardins e ensino superior) : 30 kms
* Lisboa (aeroporto internacional) : 110 Kms (autoestrada A8)
Contacte-nos e venha visitar este apartamento T3 com garagem fechada em condomínio com 2 piscinas e amplo jardim.
Já pensou adquirir um apartamento na praia mais icónica da Costa de Prata e usufruir da proximidade a castelos, mosteiros, santuários, gastronomia de qualidade e de referência, tradição, eventos culturais e de lazer, facilidade de acesso, clima ameno, gentes afáveis e hospitaleiras ?
Tudo isto e muito mais, a Costa de Prata oferece a todos os que a elegem para viver em permanência ou passar agradáveis férias.
Casas & Properties ajudamos a concretizar sonhos.
O condomínio é fechado e está dotado de churrasqueiras comuns, sala para ginásio, piscina de adultos e crianças e um amplo jardim relvado, permitindo, mesmo no Verão, desfrutar de agradáveis momentos de descanso e é ideal para quem tem crianças dadas as características dos espaços comuns.
Este apartamento possui generosas áreas, está mobilado e equipado e possui aquecimento central.
Na Vila da Nazaré encontra todos os serviços necessários a uma vida de elevado padrão de qualidade e que lhe permite usufruir de dias e momentos, realmente, inesquecíveis. Além da mais típica praia da Costa de Prata e porto de pesca, encontra restaurantes, bares, esplanadas, comércio tradicional, mercado diário de frescos, farmácia, centro de saúde, posto de policia e, ainda, tomando o elevador chega à parte alta no Sitio da Nazaré. Aqui, situa-se o Santuário de Nª Sra da Nazaré, cuja lenda está intimamente ligada à história da Vila, bem como, nos últimos anos, se tornou local de visita obrigatória para os amantes do Surf de Ondas Gigantes, designadamente pontos como o Forte de S. Miguel Arcanjo e a Praia do Norte, onde entre Outubro e Março de cada ano, os mais destemidos surfistas de ondas gigantes estão aqui para desafiar o Canhão da Nazaré.
A Nazaré é uma das mais típicas praias de Portugal e, também, importante localidade piscatória com uma história e tradição únicas, desde logo a forma de vestir das suas gentes e a tradição das Sete Saias. Desde há anos que a Nazaré é escolhida por turistas de todo o mundo para passar as suas férias, sendo visitada ao longo do ano por milhares de pessoas.
Nos anos mais recentes a Nazaré deixou de ser apenas uma Vila piscatória e praia de referência na Costa de Prata, para passar a ser reconhecida internacionalmente pelos eventos que realiza ao longo do ano e que permitem manter a permanente dinâmica da Vila e motivo de interesse, sejam a prova da World Surf League - Ondas Gigantes - que se tem lugar anualmente durante o Inverno e as competições internacionais de futebol e andebol de praia, designadamente Taças das Nações, que ocorrem no Verão.
Também no âmbito da cultura, a Nazaré aposta em eventos de qualidade, sejam eles de cariz popular como o carnaval e a passagem de ano, de cariz religioso como a celebração da Páscoa e das festas de Nª Sra. da Nazaré em Setembro, como, ainda, de cariz erudito como sejam o evento anual de música clássica e o Festival de Jazz do Valado dos Frades.
Destaques :
* Cozinha equipada
* Aquecimento central
* Mobilado
* Varanda com vista para as piscinas e jardim do condomínio
* Terraço privado com excelente exposição solar - sul
* Terraço comum na cobertura
* Condomínio fechado
* Garagem fechada
* Ginásio Comum
* Amplo jardim relvado com 2 piscinas (adultos e crianças)
Distâncias e pontos de interesse na zona :
* Nazaré - centro - (praia, surf ondas gigantes, desportos náuticos, cultura, eventos, desportos na areia, restaurantes) : 2 kms
* Praia do Salgado (praia, trilhos de passeio, asa delta) : 9 kms
* Praia de São Martinho do Porto (baía azul, praia segura para crianças, desportos náuticos) : 15 kms
* Praia das Paredes (praias, restaurantes e surf) : 13 kms
* Alcobaça (mosteiro, cultura, história e doçaria conventual) : 16 kms
* Óbidos (vila medieval, castelo e eventos temáticos ao longo de todo o ano) : 40 mks
* Caldas da Rainha (cidade termal, museus, jardins e ensino superior) : 30 kms
* Lisboa (aeroporto internacional) : 110 Kms (autoestrada A8)
Contacte-nos e venha visitar este apartamento T3 com garagem fechada em condomínio com 2 piscinas e amplo jardim.
Já pensou adquirir um apartamento na praia mais icónica da Costa de Prata e usufruir da proximidade a castelos, mosteiros, santuários, gastronomia de qualidade e de referência, tradição, eventos culturais e de lazer, facilidade de acesso, clima ameno, gentes afáveis e hospitaleiras ?
Tudo isto e muito mais, a Costa de Prata oferece a todos os que a elegem para viver em permanência ou passar agradáveis férias.
Casas & Properties ajudamos a concretizar sonhos.
Localização
Nazare, Nazaré, Leiria
Informação do anúncio
ID do anúncio
1765821
Referência Externa
026/2026.AD
Atualizado em
22/04/2026 06:58:06
Anunciante
Chamada para a rede fixa nacional
Casas&Properties
AMI 1415
Referência do imóvel:
026/2026.AD
Apartamento T3 para Venda em Nazare
Vídeo