Terreno Agricola ou Rústico para Venda em A dos Cunhados e Maceira
1.500.000 €
Tipo
Terreno Agricola ou Rústico
Negócio
Venda
Certificado Energético
Isento
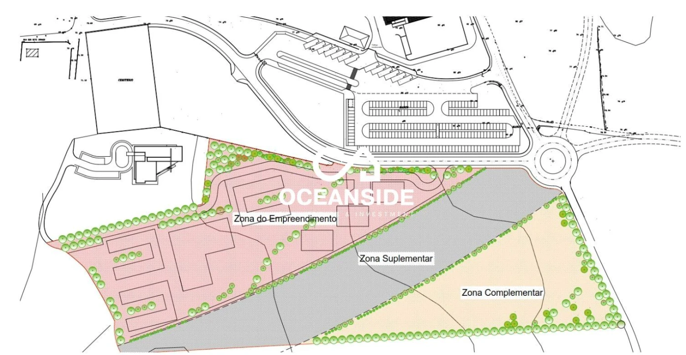
Terreno com projeto aprovado para construção de ERPI
Terreno com área total de 5,246 hectares, com projeto aprovado pela Câmara Municipal de Torres Vedras, para a construção de uma Estrutura Residencial para Pessoas Idosas (ERPI), com 80 camas.
Existe atualmente, junto da mesma autarquia, um pedido para aumentar a capacidade para 120 camas.
Existe um Estudo de viabilidade económica e financeira.
Existe atualmente, junto da mesma autarquia, um pedido para aumentar a capacidade para 120 camas.
Existe um Estudo de viabilidade económica e financeira.
Localização
A dos Cunhados e Maceira, Torres Vedras, Lisboa
Informação do anúncio
ID do anúncio
1785106
Referência Externa
CL036019
Atualizado em
16/04/2026 08:05:40
Anunciante
Chamada para a rede fixa nacional
Citylux - Mediação Imobiliária, Lda
AMI 9100
Referência do imóvel:
CL036019
Consultor
Citylux
Terreno Agricola ou Rústico para Venda em A dos Cunhados e Maceira