Apartamento T3 para Arrendamento em Cascais e Estoril
5.700 €
Tipo
Apartamento
Negócio
Arrendamento
Quartos
3
Área Bruta
185 m²
Área Útil
135 m²
Condição
Novo
Certificado Energético
A+
Área do Terreno
1542 m²
Características
Arrecadação
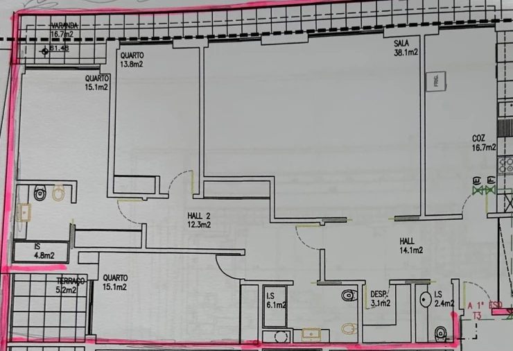
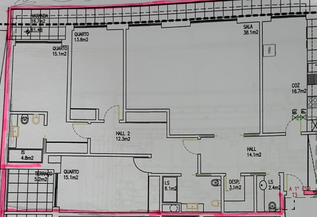
Apartamento T3 novo e mobilado no Monte Estoril
Requintado apartamento T3 no Edifício Belo Horizonte, totalmente novo, equipado e mobilado. Pronto para o primeiro uso.
Este imóvel oferece três quartos, sendo um deles uma suite, além de uma casa de banho partilhada que apoia os outros dois quartos.
Ao entrar, é possível encontrar um hall com arrumação prática e funcional. A sala ampla é ideal para criar dois ambientes distintos e conta com uma casa de banho social, além de acesso a um terraço que proporciona uma encantadora vista para uma área verde. Há ainda um pequeno escritório que adiciona versatilidade ao espaço.
A cozinha, completamente equipada, destaca-se pelo design moderno e pela funcionalidade, incluindo generosos espaços para arrumação e uma bancada perfeita para refeições rápidas ou momentos descontraídos.
O apartamento dispõe de quatro lugares de estacionamento no subsolo e uma arrecadação, garantindo espaço adicional para armazenamento.
Inteiramente mobiliado e decorado com muito bom gosto, o imóvel é 100% climatizado e as casas de banho estão equipadas com toalheiros aquecidos, oferecendo ainda mais conforto. O piso em madeira adiciona um toque de elegância e aconchego aos ambientes.
Localizado entre Monte Estoril e Vale da Palmela, o apartamento está rodeado por uma infraestrutura completa de serviços, escolas, transportes e parques, proporcionando comodidade e qualidade de vida em uma região privilegiada.
Este é um espaço onde sofisticação, conforto e praticidade se encontram, perfeito para quem busca um lar moderno em um local estratégico.
Este imóvel oferece três quartos, sendo um deles uma suite, além de uma casa de banho partilhada que apoia os outros dois quartos.
Ao entrar, é possível encontrar um hall com arrumação prática e funcional. A sala ampla é ideal para criar dois ambientes distintos e conta com uma casa de banho social, além de acesso a um terraço que proporciona uma encantadora vista para uma área verde. Há ainda um pequeno escritório que adiciona versatilidade ao espaço.
A cozinha, completamente equipada, destaca-se pelo design moderno e pela funcionalidade, incluindo generosos espaços para arrumação e uma bancada perfeita para refeições rápidas ou momentos descontraídos.
O apartamento dispõe de quatro lugares de estacionamento no subsolo e uma arrecadação, garantindo espaço adicional para armazenamento.
Inteiramente mobiliado e decorado com muito bom gosto, o imóvel é 100% climatizado e as casas de banho estão equipadas com toalheiros aquecidos, oferecendo ainda mais conforto. O piso em madeira adiciona um toque de elegância e aconchego aos ambientes.
Localizado entre Monte Estoril e Vale da Palmela, o apartamento está rodeado por uma infraestrutura completa de serviços, escolas, transportes e parques, proporcionando comodidade e qualidade de vida em uma região privilegiada.
Este é um espaço onde sofisticação, conforto e praticidade se encontram, perfeito para quem busca um lar moderno em um local estratégico.
Localização
Cascais e Estoril, Cascais, Lisboa
Informação do anúncio
ID do anúncio
1789106
Referência Externa
A0411.BG.ES
Atualizado em
17/04/2026 12:55:43
Anunciante
Chamada para a rede móvel nacional
Brightman Group
AMI 17077
Referência do imóvel:
A0411.BG.ES
Apartamento T3 para Arrendamento em Cascais e Estoril
Vídeo
Apartamento T3 para Arrendamento em Cascais e Estoril