Terreno P/ Prédio para Venda em Campanhã
1.100.000 €
Tipo
Terreno P/ Prédio
Negócio
Venda
Área Útil
435 m²
Condição
Para recuperar
Certificado Energético
Isento
Área do Terreno
898 m²
Terreno, para venda, próximo do Estádio de Dragão, em Campanhã.
Lote de terreno, para venda, próximo do Estádio de Dragão, em Campanhã.
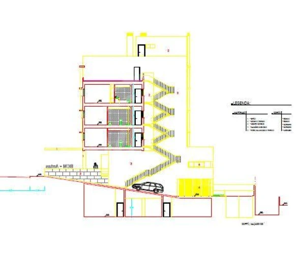
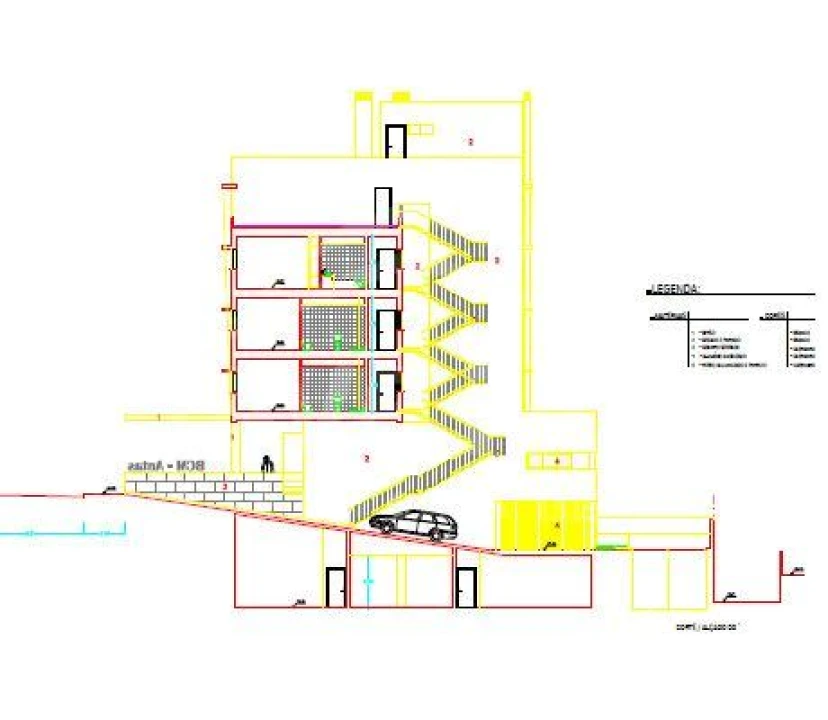
O terreno teve um projeto aprovado para a construção de um edifício com 5 pisos acima da cota de soleira e 2 pisos abaixo da cota de soleira, destinado a um Hotel com a capacidade de 60 quartos, restaurante e estacionamento na cave e sub-cave.
O projeto pode ser alterado para habitação.
- Área de construção acima do solo 3040,6m2
- Área do terreno 898m2
- Área de implantação 435,6m2
Para além deste imóvel, dispomos de mais imóveis que de certeza encaixam naquilo que pretende.
Tratamos de todo o processo de crédito habitação e acompanhamento até ao ato da escritura de forma gratuita.
Mais informações sobre este ou outro imóvel e marcações de visita, contacte-nos:
935 755 813 (chamada para a rede móvel nacional)
Chave Nova - Rua Mestre Guilherme Camarinha, 7742 4200-537 Porto.
O terreno teve um projeto aprovado para a construção de um edifício com 5 pisos acima da cota de soleira e 2 pisos abaixo da cota de soleira, destinado a um Hotel com a capacidade de 60 quartos, restaurante e estacionamento na cave e sub-cave.
O projeto pode ser alterado para habitação.
- Área de construção acima do solo 3040,6m2
- Área do terreno 898m2
- Área de implantação 435,6m2
Para além deste imóvel, dispomos de mais imóveis que de certeza encaixam naquilo que pretende.
Tratamos de todo o processo de crédito habitação e acompanhamento até ao ato da escritura de forma gratuita.
Mais informações sobre este ou outro imóvel e marcações de visita, contacte-nos:
935 755 813 (chamada para a rede móvel nacional)
Chave Nova - Rua Mestre Guilherme Camarinha, 7742 4200-537 Porto.
Localização
Campanhã, Porto, Porto
Informação do anúncio
ID do anúncio
1791694
Referência Externa
PSJ/00015
Atualizado em
19/04/2026 08:17:51
Terreno P/ Prédio para Venda em Campanhã