Apartamento T2 para Venda em Paranhos
323.000 €
Tipo
Apartamento
Negócio
Venda
Ano de Construção
2020
Quartos
2
Casas de Banho
2
Área Útil
106 m²
Garagem
2 lugares
Condição
Em construção
Área do Terreno
106 m²
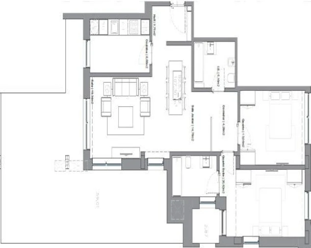
T2, com terraço, Novo junto ao Hospital de S. João
Com uma excepcional localização e centralidade única, o empreendimento encontra-se integrado numa zona de elevada qualidade, próxima de zonas comerciais, estabelecimentos de ensino e Hospitais. Um edifício de referência com a localização certa, capaz de potenciar o seu investimento.
Apartamento em construção, novo junto ao Hospital de S. João.
Imóvel caracterizado por cozinha totalmente equipada, tetos falsos com luzes led, portas de segurança, roupeiros embutidos, varanda e acabamentos de luxo.
Este imóvel distribui-se da seguinte forma:
SALA
Tem uma boa área , com 2 ambientes distintos que permite ter zona de sala de estar e zona destinada a sala de jantar.
Pavimento em madeira
COZINHA
Cozinha com moveis e equipada
Cozinha equipada com:
Placa
Forno
Máquina de lavar louça
Microondas
Frigorifico
QUARTOS
Pavimento em madeira, muita luz natural, com roupeiro
FORMAL - PRIVATE REAL ESTATE Integrada no grupo FORMAL que integra há vários anos o sector da mediação imobiliária, foi criada a FORMAL PRIVATE, com o objetivo de trabalhar um segmento de mercado diferenciado, apostando no rigor, excelência e qualidade indiscutíveis dos nossos produtos e serviços. Na FORMAL PRIVATE, desenvolvemos um serviço de destaque, garantido pela nossa equipa especializada que se distingue pela sua formação e conhecimento intrínseco do mercado imobiliário, trabalhando em sinergia com os melhores parceiros nacionais e internacionais. Acompanhamos de perto a evolução do mercado imobiliário e procuramos uma atualização permanente sobre as tendências dos diversos segmentos, por forma a assegurar um serviço de qualidade, seguro e transparente.
Para mais informações consulte-nos através do telef. 967 336 230 ou em www.formal.pt
Apartamento em construção, novo junto ao Hospital de S. João.
Imóvel caracterizado por cozinha totalmente equipada, tetos falsos com luzes led, portas de segurança, roupeiros embutidos, varanda e acabamentos de luxo.
Este imóvel distribui-se da seguinte forma:
SALA
Tem uma boa área , com 2 ambientes distintos que permite ter zona de sala de estar e zona destinada a sala de jantar.
Pavimento em madeira
COZINHA
Cozinha com moveis e equipada
Cozinha equipada com:
Placa
Forno
Máquina de lavar louça
Microondas
Frigorifico
QUARTOS
Pavimento em madeira, muita luz natural, com roupeiro
FORMAL - PRIVATE REAL ESTATE Integrada no grupo FORMAL que integra há vários anos o sector da mediação imobiliária, foi criada a FORMAL PRIVATE, com o objetivo de trabalhar um segmento de mercado diferenciado, apostando no rigor, excelência e qualidade indiscutíveis dos nossos produtos e serviços. Na FORMAL PRIVATE, desenvolvemos um serviço de destaque, garantido pela nossa equipa especializada que se distingue pela sua formação e conhecimento intrínseco do mercado imobiliário, trabalhando em sinergia com os melhores parceiros nacionais e internacionais. Acompanhamos de perto a evolução do mercado imobiliário e procuramos uma atualização permanente sobre as tendências dos diversos segmentos, por forma a assegurar um serviço de qualidade, seguro e transparente.
Para mais informações consulte-nos através do telef. 967 336 230 ou em www.formal.pt
Localização
Paranhos, Porto, Porto
Informação do anúncio
ID do anúncio
1795020
Referência Externa
32398
Atualizado em
19/04/2026 08:19:28
Apartamento T2 para Venda em Paranhos