Terreno para Venda em Quelfes
375.000 €
Tipo
Terreno
Negócio
Venda
Quartos
4
Área Bruta
430 m²
Área Útil
342 m²
Condição
Novo
Certificado Energético
Área do Terreno
1700 m²
Lote de Terreno Venda em Quelfes,Olhão
Apresentamos-lhe uma oportunidade rara de investimento imobiliário no Algarve, pensada para quem valoriza espaço, exclusividade e qualidade de vida.
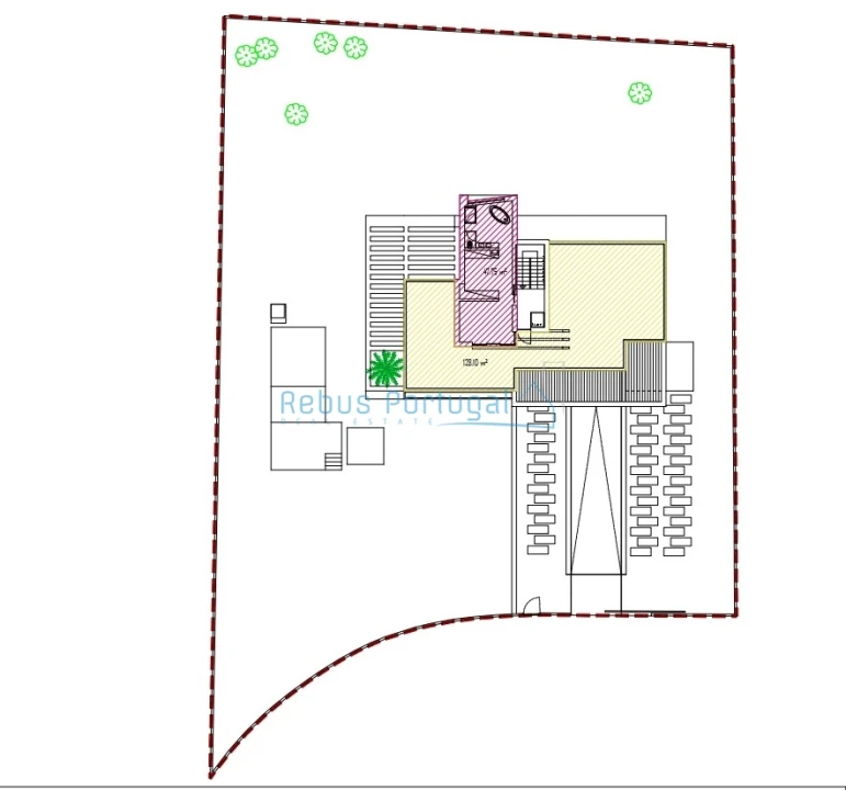
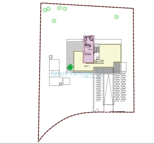
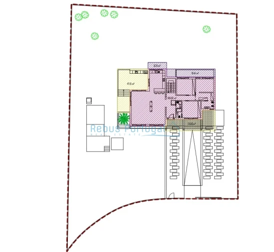
Inserida numa prestigiada urbanização, reconhecida pela sua tranquilidade e elevada procura, esta propriedade oferece um lote com projeto aprovado e construção já iniciada para uma moradia independente de luxo, disponível para venda no estado atual, com possibilidade de negociação no modelo “chave na mão”, permitindo-lhe personalizar cada detalhe ao seu gosto.
Com uma área bruta de 260 m² (+ 160m2 de cave), a moradia distribui-se harmoniosamente por três pisos, concebidos para proporcionar conforto, funcionalidade e privacidade.
No rés-do-chão, destaca-se uma cozinha ampla com 25,8 m², ideal para quem aprecia gastronomia e convívio, e uma sala de estar luminosa com 36 m², perfeita para receber família e amigos. Este piso inclui ainda um hall de entrada elegante, lavandaria, casa de banho social e três quartos, um dos quais em suite, apoiados por uma casa de banho adicional.
A cave, com 187,85 m², oferece uma garagem para dois veículos, bem como amplas áreas de arrumação, ideais para responder às necessidades de uma residência de alto padrão.
O primeiro andar é inteiramente dedicado à suite principal, um verdadeiro refúgio privado, que beneficia de uma vista panorâmica deslumbrante. No exterior, a propriedade contempla uma piscina com cerca de 50 m², perfeita para desfrutar do clima algarvio em total privacidade.
Implantada num lote generoso de 1.716 m², esta moradia oferece espaço abundante para criar jardins, zonas de lazer e um verdadeiro oásis pessoal, combinando natureza, conforto e sofisticação.
A localização é outro dos seus grandes trunfos: a apenas 20 minutos do Aeroporto Internacional de Faro e 25 minutos das melhores praias do Algarve, garantindo fácil acesso sem abdicar da serenidade. Licença a pagamento.
Inserida numa prestigiada urbanização, reconhecida pela sua tranquilidade e elevada procura, esta propriedade oferece um lote com projeto aprovado e construção já iniciada para uma moradia independente de luxo, disponível para venda no estado atual, com possibilidade de negociação no modelo “chave na mão”, permitindo-lhe personalizar cada detalhe ao seu gosto.
Com uma área bruta de 260 m² (+ 160m2 de cave), a moradia distribui-se harmoniosamente por três pisos, concebidos para proporcionar conforto, funcionalidade e privacidade.
No rés-do-chão, destaca-se uma cozinha ampla com 25,8 m², ideal para quem aprecia gastronomia e convívio, e uma sala de estar luminosa com 36 m², perfeita para receber família e amigos. Este piso inclui ainda um hall de entrada elegante, lavandaria, casa de banho social e três quartos, um dos quais em suite, apoiados por uma casa de banho adicional.
A cave, com 187,85 m², oferece uma garagem para dois veículos, bem como amplas áreas de arrumação, ideais para responder às necessidades de uma residência de alto padrão.
O primeiro andar é inteiramente dedicado à suite principal, um verdadeiro refúgio privado, que beneficia de uma vista panorâmica deslumbrante. No exterior, a propriedade contempla uma piscina com cerca de 50 m², perfeita para desfrutar do clima algarvio em total privacidade.
Implantada num lote generoso de 1.716 m², esta moradia oferece espaço abundante para criar jardins, zonas de lazer e um verdadeiro oásis pessoal, combinando natureza, conforto e sofisticação.
A localização é outro dos seus grandes trunfos: a apenas 20 minutos do Aeroporto Internacional de Faro e 25 minutos das melhores praias do Algarve, garantindo fácil acesso sem abdicar da serenidade. Licença a pagamento.
Localização
Quelfes, Olhão, Faro
Informação do anúncio
ID do anúncio
1804700
Referência Externa
3003
Atualizado em
23/04/2026 02:23:25
Terreno para Venda em Quelfes