Terreno para Venda em Venteira
1.400.000 €
Tipo
Terreno
Negócio
Venda
Condição
Em projecto
Certificado Energético
Isento
Área do Terreno
1680 m²
Terreno com Projeto Aprovado - Oportunidade de Investimento na Venteira, Amadora
Terreno com Projeto Aprovado - Oportunidade de Investimento na Venteira, Amadora
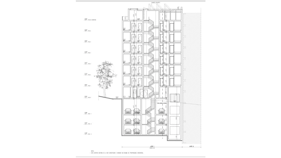
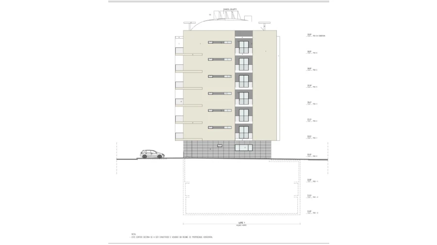
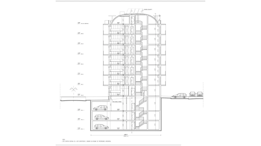
Terreno com 320 m², com projeto aprovado e licenças a pagamento para construção de um edifício com 1.679 m² acima do solo, incluindo garagem e elevador. Localizado em zona de elevada procura e forte potencial de valorização futura.
Detalhes do Projeto:
Prédio com 6 pisos acima do solo, composto por:
14 apartamentos (2 T1 e 12 T2)
3 pisos abaixo do solo destinados a estacionamento
Este lote encontra-se junto a outros dois terrenos (Ref. 13592 e Ref. 13593), todos com projeto aprovado e licenças a pagamento, podendo ser vendidos em conjunto - uma excelente oportunidade para investidores que pretendem desenvolver um projeto de maior dimensão.
Localização Estratégica:
Inserido na freguesia da Venteira, concelho da Amadora, numa zona em rápida expansão urbana, com diversos empreendimentos de construção nova.
Proximidades:
A 10 minutos a pé da Estação de Metro da Reboleira, Estádio José Gomes e Bingo da Amadora
A 5 minutos de carro da Escola Secundária da Amadora, Estações CP da Amadora e Queluz/Belas
A apenas 15 minutos do Aeroporto de Lisboa
Ideal para promotores imobiliários que procuram um investimento sólido numa localização estratégica, com projeto pronto a iniciar.
Terreno com 320 m², com projeto aprovado e licenças a pagamento para construção de um edifício com 1.679 m² acima do solo, incluindo garagem e elevador. Localizado em zona de elevada procura e forte potencial de valorização futura.
Detalhes do Projeto:
Prédio com 6 pisos acima do solo, composto por:
14 apartamentos (2 T1 e 12 T2)
3 pisos abaixo do solo destinados a estacionamento
Este lote encontra-se junto a outros dois terrenos (Ref. 13592 e Ref. 13593), todos com projeto aprovado e licenças a pagamento, podendo ser vendidos em conjunto - uma excelente oportunidade para investidores que pretendem desenvolver um projeto de maior dimensão.
Localização Estratégica:
Inserido na freguesia da Venteira, concelho da Amadora, numa zona em rápida expansão urbana, com diversos empreendimentos de construção nova.
Proximidades:
A 10 minutos a pé da Estação de Metro da Reboleira, Estádio José Gomes e Bingo da Amadora
A 5 minutos de carro da Escola Secundária da Amadora, Estações CP da Amadora e Queluz/Belas
A apenas 15 minutos do Aeroporto de Lisboa
Ideal para promotores imobiliários que procuram um investimento sólido numa localização estratégica, com projeto pronto a iniciar.
Localização
Venteira, Amadora, Lisboa
Informação do anúncio
ID do anúncio
713453
Referência Externa
13591
Atualizado em
28/03/2026 14:03:46
Terreno para Venda em Venteira