Terreno para Venda em Venteira
1.500.000 €
Tipo
Terreno
Negócio
Venda
Condição
Em projecto
Certificado Energético
Isento
Área do Terreno
1960 m²
Terreno à venda em Venteira - Amadora
Terreno com Projeto Aprovado - Grande Potencial de Investimento na Venteira, Amadora
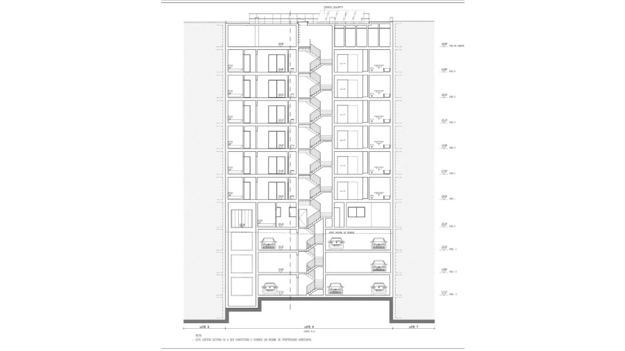
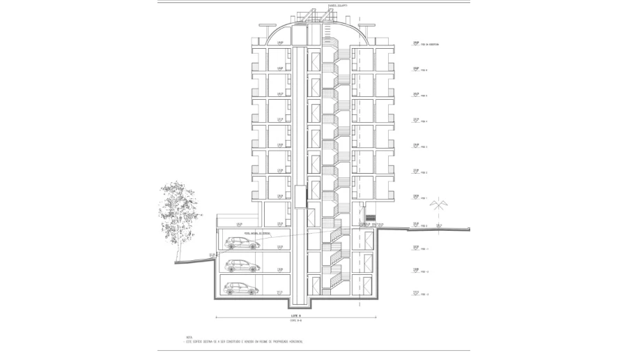
Terreno com 380 m², com projeto aprovado e licenças a pagamento para a construção de um edifício com 1.960 m² acima do solo, incluindo garagem e elevador. Localização privilegiada, numa zona com forte potencial de valorização futura.
Detalhes do Projeto:
Edifício com 6 pisos acima do solo, composto por:
21 apartamentos:
1 - T0
13 - T1
7 - T2
3 pisos abaixo do solo destinados a estacionamento
Este lote encontra-se junto a mais dois terrenos (Ref. 13591 e Ref. 13593), todos com projetos aprovados e licenças a pagamento. Podem ser vendidos em conjunto, ideal para investidores que pretendem desenvolver um empreendimento de maior escala.
Localização Estratégica:
Situado na freguesia da Venteira, no concelho da Amadora, em plena zona de expansão urbana com vários projetos de construção nova em curso.
Proximidades:
A 10 minutos a pé da Estação de Metro da Reboleira, Estádio José Gomes e Bingo da Amadora
A 5 minutos de carro da Escola Secundária da Amadora, e das Estações da CP da Amadora e Queluz/Belas
A apenas 15 minutos do Aeroporto de Lisboa
Produto ideal para promotores e investidores que procuram um projeto sólido e rentável, pronto a avançar numa localização em valorização contínua.
Terreno com 380 m², com projeto aprovado e licenças a pagamento para a construção de um edifício com 1.960 m² acima do solo, incluindo garagem e elevador. Localização privilegiada, numa zona com forte potencial de valorização futura.
Detalhes do Projeto:
Edifício com 6 pisos acima do solo, composto por:
21 apartamentos:
1 - T0
13 - T1
7 - T2
3 pisos abaixo do solo destinados a estacionamento
Este lote encontra-se junto a mais dois terrenos (Ref. 13591 e Ref. 13593), todos com projetos aprovados e licenças a pagamento. Podem ser vendidos em conjunto, ideal para investidores que pretendem desenvolver um empreendimento de maior escala.
Localização Estratégica:
Situado na freguesia da Venteira, no concelho da Amadora, em plena zona de expansão urbana com vários projetos de construção nova em curso.
Proximidades:
A 10 minutos a pé da Estação de Metro da Reboleira, Estádio José Gomes e Bingo da Amadora
A 5 minutos de carro da Escola Secundária da Amadora, e das Estações da CP da Amadora e Queluz/Belas
A apenas 15 minutos do Aeroporto de Lisboa
Produto ideal para promotores e investidores que procuram um projeto sólido e rentável, pronto a avançar numa localização em valorização contínua.
Localização
Venteira, Amadora, Lisboa
Informação do anúncio
ID do anúncio
713462
Referência Externa
13592
Atualizado em
01/06/2025 07:16:43
Terreno para Venda em Venteira