Voltar
Armazém para Venda em Além da Ribeira e Pedreira Foto 1
Armazém para Venda em Além da Ribeira e Pedreira Foto 2
Armazém para Venda em Além da Ribeira e Pedreira Foto 3
Armazém para Venda em Além da Ribeira e Pedreira Foto 4
Armazém para Venda em Além da Ribeira e Pedreira Foto 5

Armazém para Venda em Além da Ribeira e Pedreira

7.000.000 €

Tipo
Armazém
Negócio
Venda
Área Bruta
39792 m²
Área Útil
39791 m²
Condição
Usado

Centro de Negócios e logística e Turismo | Tomar | Prado | Portugal

Centro de Negócios e logística da Prado e Turismo Prado Nature no centro do país a poucos minutos da cidade de Tomar.

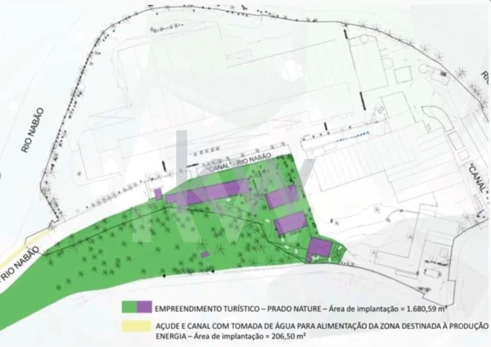
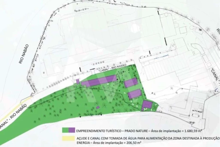
Uma propriedade com aproximadamente 12 HECTARES, um sítio com características únicas, com viabilidade para desenvolver várias áreas de negócio, indústria, comércio, serviços e armazéns. A propriedade é composta por um conjunto de edifícios industriais e de habitação, com uma área coberta aproximadamente 50.000m2, portaria sistema de vídeo vigilância instalados com condições para funcionar em condomínio privado excelentes condições para a produção de ENERGIAS VERDES através de central hidroelétrica, alimentada por canal de açude do RIO NABÃO e também por painéis fotovoltaicos. Ainda com excelentes condições para a produção de hidrogénio verde. O empreendimento é dotado de uma conduta de GÁS NATURAL ligada à rede pública, sendo uma mais valia para qualquer tipo de indústria e produção de energia.
Está projetado a criação de um edifício multi-serviços, com auditório, cafetaria, salas polivalentes para escritórios, formação e outros serviços. O RIO NABÃO ladeia toda a propriedade, rodeada de uma densa floresta com árvores centenárias, antiga capela, um ambiente único.

Este conjunto de imóveis está inserido num terreno com uma área aproximada de 12 hectares situado nas margens Rio Nabão, sendo servido por açude com tomada de água junto à propriedade. Esta tomada de água alimenta a unidade industrial através de um canal que atravessa a mesma, incluindo uma hídrica que se encontra dentro do imóvel. Está também dotado de infraestrutura de gás ligada à rede nacional. É neste espaço que se projeta a criação do futuro Centro de Negócios, Logística e Serviços do Prado. Este empreendimento dispõe de uma localização privilegiada no centro do país, a 1h30 de distância de Lisboa e do Porto, sendo servido pela autoestrada A13 e pelo IC9.
Neste espaço funcionou até 2017 a Prado Karton, mais antiga fábrica de produção de papel no país, com alvará atribuído pelo Marquês de Pombal no século XVIII. É aqui que irá nascer um empreendimento com características únicas, para desenvolver projetos em várias áreas de negócios, indústria, comércio, serviços e armazém, produção de energias verdes e turismo natura.
O Centro de Negócios, Logística e Serviços do Prado será composto por um conjunto de edifícios com uma área coberta de aproximadamente 50.000 m2, com apoio de portaria, sistema de segurança e vídeo-vigilância instalado e com condições para funcionamento em condomínio privado. Os edifícios podem ser destinados à indústria, comércio, serviços e armazém, com áreas entre 600 e 5 mil metros quadrados, rés-do-chão, 1º e 2º pisos. Outra caraterística única do empreendimento é a possibilidade de produção de energias verdes dentro do complexo, com central hidro-eléctrica própria, alimentada por canal a partir de açude no Rio Nabão e a instalação de painéis fotovoltaicos na cobertura dos edifícios. Esta unidade situa-se numa zona que também reúne todas as condições para a produção de hidrogénio verde.
Todas estas potencialidades possibilitam a criação de uma CER - Comunidade de Energia Renovável, com a disponibilização de energia a preços mais competitivos para consumo no complexo. Está prevista ainda a criação de um edifício multi-serviços com auditório, cafetaria, salas polivalentes para escritórios, formação e outros serviços. Para além das áreas destinadas ao Centro de Negócios, Logística e Serviços do Prado, está também contemplado um conjunto de edifícios destinado a turismo natura: o Rio Nabão ladeia toda a propriedade. Destaque também para a floresta com árvores centenárias, que se desenvolve por mais de um quilometro nas margens do Rio Nabão e para a antiga capela.

Uma área destinada a turismo Natura4km da cidade de Tomar 30km do eixo Leiria/Fátima 140km da cidade de Lisboa 195km da cidade do Porto 500km de Madrid 420km de Sevilha

Localização

Além da Ribeira e Pedreira, Tomar, Santarém

Informação do anúncio

ID do anúncio 906075
Referência Externa 2276-898
Atualizado em 06/12/2025 03:36:10
KW Flash Algarve AMI 23350
Referência do imóvel: 2276-898
Phone
Chamada para a rede fixa nacional
KW Flash Algarve AMI 23350
Referência do imóvel: 2276-898
Phone
Chamada para a rede fixa nacional
1 / 78
Armazém para Venda em Além da Ribeira e Pedreira Foto 1
Armazém para Venda em Além da Ribeira e Pedreira Foto 2
Armazém para Venda em Além da Ribeira e Pedreira Foto 3
Armazém para Venda em Além da Ribeira e Pedreira Foto 4
Armazém para Venda em Além da Ribeira e Pedreira Foto 5
Armazém para Venda em Além da Ribeira e Pedreira Foto 6
Armazém para Venda em Além da Ribeira e Pedreira Foto 7
Armazém para Venda em Além da Ribeira e Pedreira Foto 8
Armazém para Venda em Além da Ribeira e Pedreira Foto 9
Armazém para Venda em Além da Ribeira e Pedreira Foto 10
Armazém para Venda em Além da Ribeira e Pedreira Foto 11
Armazém para Venda em Além da Ribeira e Pedreira Foto 12
Armazém para Venda em Além da Ribeira e Pedreira Foto 13
Armazém para Venda em Além da Ribeira e Pedreira Foto 14
Armazém para Venda em Além da Ribeira e Pedreira Foto 15
Armazém para Venda em Além da Ribeira e Pedreira Foto 16
Armazém para Venda em Além da Ribeira e Pedreira Foto 17
Armazém para Venda em Além da Ribeira e Pedreira Foto 18
Armazém para Venda em Além da Ribeira e Pedreira Foto 19
Armazém para Venda em Além da Ribeira e Pedreira Foto 20
Armazém para Venda em Além da Ribeira e Pedreira Foto 21
Armazém para Venda em Além da Ribeira e Pedreira Foto 22
Armazém para Venda em Além da Ribeira e Pedreira Foto 23
Armazém para Venda em Além da Ribeira e Pedreira Foto 24
Armazém para Venda em Além da Ribeira e Pedreira Foto 25
Armazém para Venda em Além da Ribeira e Pedreira Foto 26
Armazém para Venda em Além da Ribeira e Pedreira Foto 27
Armazém para Venda em Além da Ribeira e Pedreira Foto 28
Armazém para Venda em Além da Ribeira e Pedreira Foto 29
Armazém para Venda em Além da Ribeira e Pedreira Foto 30
Armazém para Venda em Além da Ribeira e Pedreira Foto 31
Armazém para Venda em Além da Ribeira e Pedreira Foto 32
Armazém para Venda em Além da Ribeira e Pedreira Foto 33
Armazém para Venda em Além da Ribeira e Pedreira Foto 34
Armazém para Venda em Além da Ribeira e Pedreira Foto 35
Armazém para Venda em Além da Ribeira e Pedreira Foto 36
Armazém para Venda em Além da Ribeira e Pedreira Foto 37
Armazém para Venda em Além da Ribeira e Pedreira Foto 38
Armazém para Venda em Além da Ribeira e Pedreira Foto 39
Armazém para Venda em Além da Ribeira e Pedreira Foto 40
Armazém para Venda em Além da Ribeira e Pedreira Foto 41
Armazém para Venda em Além da Ribeira e Pedreira Foto 42
Armazém para Venda em Além da Ribeira e Pedreira Foto 43
Armazém para Venda em Além da Ribeira e Pedreira Foto 44
Armazém para Venda em Além da Ribeira e Pedreira Foto 45
Armazém para Venda em Além da Ribeira e Pedreira Foto 46
Armazém para Venda em Além da Ribeira e Pedreira Foto 47
Armazém para Venda em Além da Ribeira e Pedreira Foto 48
Armazém para Venda em Além da Ribeira e Pedreira Foto 49
Armazém para Venda em Além da Ribeira e Pedreira Foto 50
Armazém para Venda em Além da Ribeira e Pedreira Foto 51
Armazém para Venda em Além da Ribeira e Pedreira Foto 52
Armazém para Venda em Além da Ribeira e Pedreira Foto 53
Armazém para Venda em Além da Ribeira e Pedreira Foto 54
Armazém para Venda em Além da Ribeira e Pedreira Foto 55
Armazém para Venda em Além da Ribeira e Pedreira Foto 56
Armazém para Venda em Além da Ribeira e Pedreira Foto 57
Armazém para Venda em Além da Ribeira e Pedreira Foto 58
Armazém para Venda em Além da Ribeira e Pedreira Foto 59
Armazém para Venda em Além da Ribeira e Pedreira Foto 60
Armazém para Venda em Além da Ribeira e Pedreira Foto 61
Armazém para Venda em Além da Ribeira e Pedreira Foto 62
Armazém para Venda em Além da Ribeira e Pedreira Foto 63
Armazém para Venda em Além da Ribeira e Pedreira Foto 64
Armazém para Venda em Além da Ribeira e Pedreira Foto 65
Armazém para Venda em Além da Ribeira e Pedreira Foto 66
Armazém para Venda em Além da Ribeira e Pedreira Foto 67
Armazém para Venda em Além da Ribeira e Pedreira Foto 68
Armazém para Venda em Além da Ribeira e Pedreira Foto 69
Armazém para Venda em Além da Ribeira e Pedreira Foto 70
Armazém para Venda em Além da Ribeira e Pedreira Foto 71
Armazém para Venda em Além da Ribeira e Pedreira Foto 72
Armazém para Venda em Além da Ribeira e Pedreira Foto 73
Armazém para Venda em Além da Ribeira e Pedreira Foto 74
Armazém para Venda em Além da Ribeira e Pedreira Foto 75
Armazém para Venda em Além da Ribeira e Pedreira Foto 76
Armazém para Venda em Além da Ribeira e Pedreira Foto 77
Armazém para Venda em Além da Ribeira e Pedreira Foto 78
Clicky