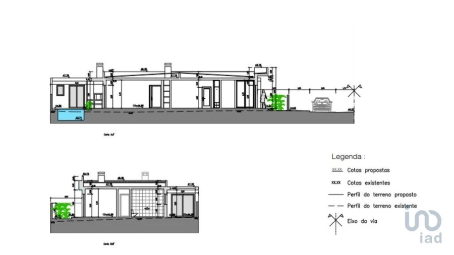
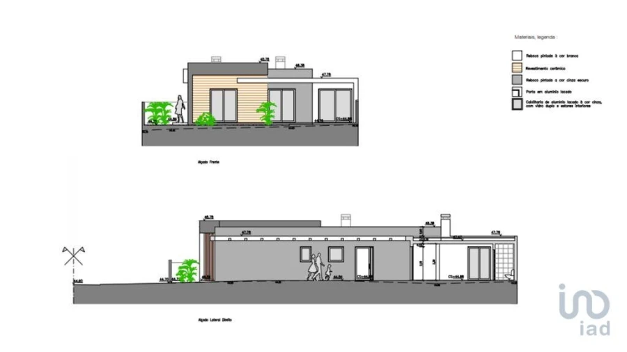
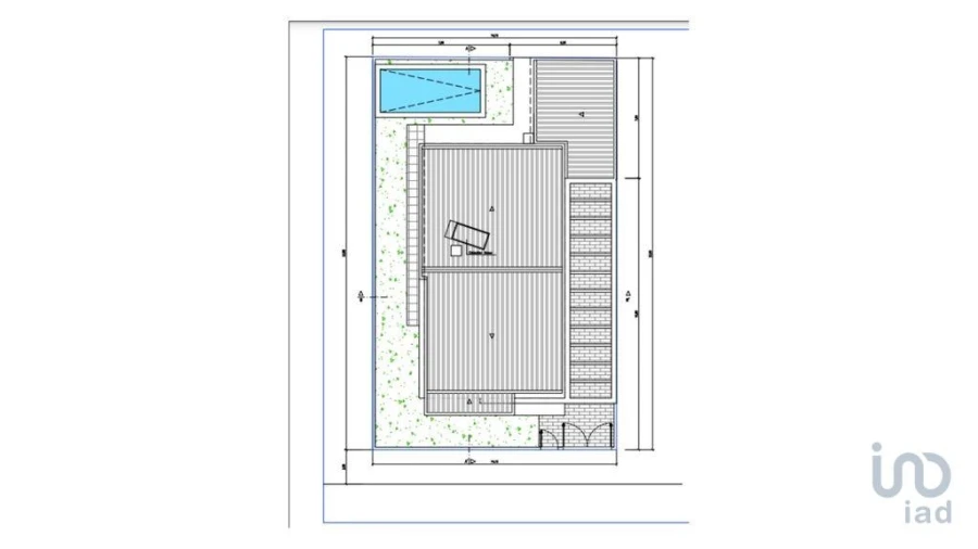
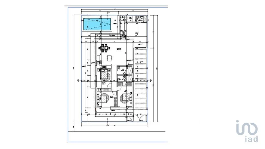
Terreno T4 em Fernão Ferro de 147,00 m²
Apresentamos este excelente terreno para construção, ideal para quem procura uma casa espaçosa e confortável, pensada para proporcionar uma experiência de vida tranquila e funcional. O projeto do imóvel contempla uma moradia com quatro quartos amplos e bem iluminados, perfeitos para acomodar toda a família com privacidade e conforto. A área social é composta por uma sala de estar acolhedora e bem dimensionada, perfeita para momentos de convívio. A cozinha será entregue equipada com eletrodomésticos de qualidade, facilitando a preparação de refeições diárias e celebrativas, num ambiente prático e moderno. O imóvel também conta com três casas de banho funcionais, distribuídas de forma a maximizar a conveniência e acessibilidade em toda a casa. Com uma agradável varanda e uma excelente exposição solar, poderá desfrutar de luz natural durante grande parte do dia, criando um ambiente acolhedor e arejado. Adicionalmente, o imóvel inclui uma garagem espaçosa e uma área de arrumos, proporcionando o espaço adicional necessário para arrumação e organização, tudo para uma vida prática e sem preocupações.
Envolvente e Localização:
Localizado numa zona calma e residencial, este terreno para construção oferece um ambiente tranquilo, ideal para quem valoriza qualidade de vida e proximidade a serviços essenciais. Nas imediações, encontra uma variedade de estabelecimentos, incluindo supermercados, escolas, farmácias e serviços de saúde, garantindo comodidade e bem-estar para o seu dia a dia. Para além disso, as fantásticas praias da região estão a poucos minutos de distância: a famosa praia da Arrábida encontra-se a apenas 28 minutos de viagem, enquanto a Costa da Caparica e a Fonte da Telha ficam a 26 e 28 minutos, respetivamente. Esta localização estratégica permite-lhe desfrutar da beleza natural da região, com a serra, o mar e extensas áreas verdes para atividades ao ar livre. Se desejar ir até Lisboa, encontrará uma ligação rápida e eficiente, a apenas 35 minutos de distância, enquanto o Aeroporto Humberto Delgado está a 38 minutos, facilitando as suas viagens e deslocações.
Sobre a iad Portugal:
A iad Portugal é uma rede imobiliária inovadora que se destaca pela sua proximidade e compromisso com o cliente. Com um modelo de negócio baseado no digital e um serviço personalizado, a iad facilita o processo de compra e venda de imóveis, garantindo um acompanhamento profissional e transparente em todas as etapas. Contando com uma vasta equipa de consultores imobiliários distribuídos por todo o país, a iad Portugal oferece-lhe a melhor solução para encontrar o seu novo lar ou investir num imóvel.
#ref: 129136