Terreno urbano para construção de edifício, em Venteira - Amadora
Terreno urbano com 225 m2 para construção de prédio na urbanização Villa Park em Venteira, Amadora.
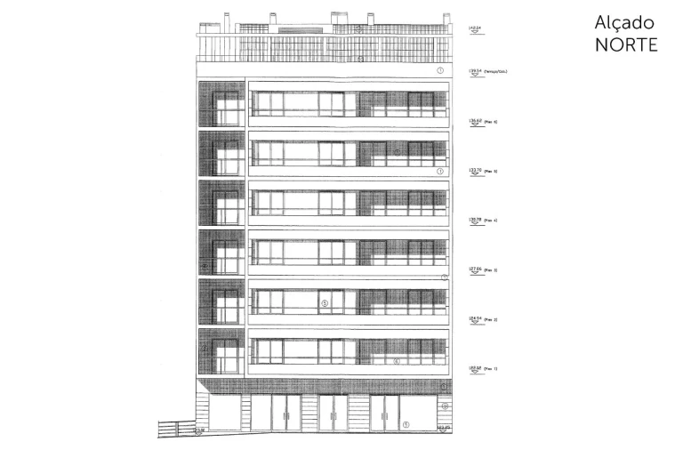
Com projeto de arquitetura aprovado em 2007, atualmente caducado, compreende a seguinte configuração:
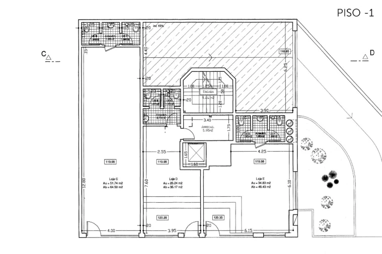
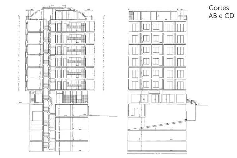
- Três pisos abaixo da cota soleira destinados a parqueamento, com acessos através de elevador monta-cargas;
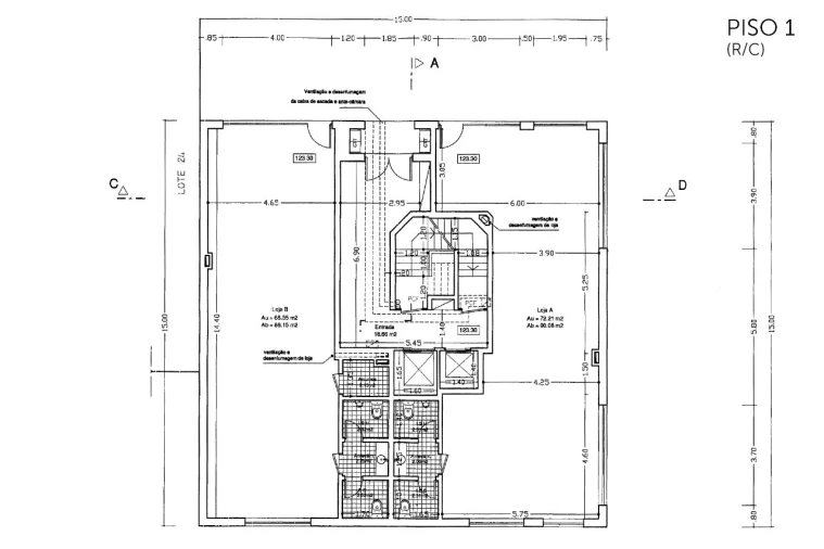
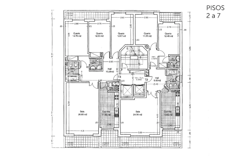
- Oito pisos acima da cota de soleira, dos quais dois destinados a lojas (5)*, seis a apartamentos (12)* e um à casa das máquinas, sala de condomínio e arrecadações.
Características do terreno e projeto
- Área do lote/implantação: 225 m2
- Área de construção acima do solo: 1.800 m2
- Área de construção abaixo do solo: 675 m2
- Cércea: 21,7 m
- Número de fogos de habitação: 12* (6xT2 + 6xT3). O piso 1 (r/c) é passível de ser convertido em habitação (1xT1 + 1xT2)
- Frações destinadas a comércio e serviços: 5*
- Volumetria: 4882,5 m3
- Cota de Soleira: 123.3
* De acordo Regulamento Geral das Edificações Urbanas (RGEU) bem como o publicado em Diário da República, a saber:
Plano de Pormenor da Rua Elias Garcia (à data, atualmente com outro nome)
Zona Poente - Alteração
Os artigos 12.º e 13.º do Regulamento do Plano de Pormenor da Rua Elias Garcia — Zona Poente passam a ter a seguinte redação:
Artigo 12.º
Por razões de procura e oferta de mercado poderá haver variações da tipologia dos fogos, do número de fogos e do número de unidades destinadas a comércio e serviços, desde que aqueles números não ultrapassem os definidos na Planta de Implantação/Planta Síntese para cada um dos usos e lotes.
Consequentemente, são admitidas variações, para menos, das áreas de construção fixadas na mesma planta para os diferentes usos e lotes.
Artigo 13.º
Os lotes definidos neste plano poderão ser subdivididos ou agrupados respeitando -se, porém, os limites máximos referidos no artigo anterior.»
(Fonte: Diário da República, 2.ª série - N.º 74 - 16 de Abril de 2009)
NOTA: Aterrados, já construídos os muros de contenção até ao piso -4.
***
A informação disponibilizada, ainda que precisa, não dispensa a sua confirmação, nem pode ser considerada vinculativa.
Este site utiliza cookies. Ao navegar no site estará a consentir a sua utilização. Para mais informações sobre os cookies pode consultar a
política de privacidade.