Voltar
Moradia T2 para Venda em Santa Catarina da Fonte do Bispo Foto 1
Moradia T2 para Venda em Santa Catarina da Fonte do Bispo Foto 2
Moradia T2 para Venda em Santa Catarina da Fonte do Bispo Foto 3
Moradia T2 para Venda em Santa Catarina da Fonte do Bispo Foto 4
Moradia T2 para Venda em Santa Catarina da Fonte do Bispo Foto 5

Moradia T2 para Venda em Santa Catarina da Fonte do Bispo

465.000 €

Tipo
Moradia
Negócio
Venda
Quartos
2
Casas de Banho
3
Área Bruta
117 m²
Condição
Usado
Certificado Energético
C
Área do Terreno
389 m²

ENCANTADORA VILA DE DOIS QUARTOS COM PISCINA DE IMERSAO E VISTAS FANTASTICAS DAS COLINAS E

ENCANTADORA VILA DE DOIS QUARTOS COM PISCINA DE IMERSAO E VISTAS FANTASTICAS DAS COLINAS E DO CAMPO NUM TERRENO DE 389,00 M²

LOCALIZAÇÃO
A propriedade está localizada a 11 minutos da vila de Santa Catarina. A cidade costeira de Tavira e as praias mais próximas ficam a 20 minutos de carro. O Aeroporto Internacional e a cidade de Faro encontram-se a aproximadamente 40 minutos. Existem campos de golfe a 20 minutos de distância e Espanha pode ser alcançada em 40 minutos.

TIPO DE IMÓVEL
Esta moradia foi construída em 2003 e é composta por dois pisos. O piso térreo dispõe de uma cozinha totalmente equipada, área de pequeno-almoço e de refeições, uma espaçosa sala de estar, um quarto com casa de banho privativa e uma casa de banho adicional. O piso superior dispõe de um segundo quarto com casa de banho privativa e varanda privativa. A dimensão total da construção é de 117,19 m².
O imóvel é oferecido para venda totalmente mobilado e equipado, sujeito a inventário. O imóvel dispõe ainda de uma piscina de imersão com deck. O abastecimento de água é feito a partir da rede de água principal.

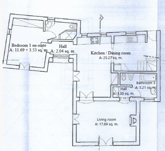
CÔMODOS
Térreo:
Cozinha / Sala de jantar - 25,27 m²
Sala de estar - 17,69 m²
Quarto 1 com suite - 11,69 + 3,53 m². m
Casa de banho 3 - 5,21 m²
Primeiro andar:
Quarto 2 com suite - 15,67 + 4,15 m²
Varanda - 8,70 m²

CARACTERÍSTICAS GERAIS
Portas e janelas de alumínio com vidro duplo
Estores de alumínio em algumas janelas e portas
Redes mosquiteiras em algumas janelas
Unidades de ar condicionado
Fogão a lenha na sala de estar
Cozinha totalmente equipada e mobilada
Guarda-roupa embutido
Garagem coberta
Classificação de desempenho energético 'C'

ACESSO
O acesso à propriedade é feito por uma estrada local asfaltada, não muito longe da estrada principal.

COMENTÁRIOS
Localizado na tranquila zona rural com vistas fantásticas para as colinas circundantes. O terreno tem 389,00 m². apoia variedades locais de árvores como a oliveira, a alfarrobeira, a amendoeira, o sobreiro e o carvalho. O jardim bem cuidado tem muitas plantas ornamentais, arbustos e flores. A propriedade tem muitas características interessantes, incluindo tetos de madeira muito altos e vigas de madeira na sala de estar e nos quartos, azulejos de terracota tradicionais em algumas partes da casa e paralelepípedos em redor da casa.
As lojas e bares locais ficam a 10 minutos de carro da propriedade.
Uma propriedade muito interessante de alta qualidade, adequada para uma casa permanente ou de férias, com grande potencial de arrendamento.

Localização

Santa Catarina da Fonte do Bispo, Tavira, Faro

Informação do anúncio

ID do anúncio 1050564
Referência Externa MV590
Atualizado em 20/11/2025 17:32:26
Aimcliff Properties AMI 427
Referência do imóvel: MV590
Phone
Chamada para a rede móvel nacional
Aimcliff Properties AMI 427
Referência do imóvel: MV590
Phone
Chamada para a rede móvel nacional
1 / 28
Moradia T2 para Venda em Santa Catarina da Fonte do Bispo Foto 1
Moradia T2 para Venda em Santa Catarina da Fonte do Bispo Foto 2
Moradia T2 para Venda em Santa Catarina da Fonte do Bispo Foto 3
Moradia T2 para Venda em Santa Catarina da Fonte do Bispo Foto 4
Moradia T2 para Venda em Santa Catarina da Fonte do Bispo Foto 5
Moradia T2 para Venda em Santa Catarina da Fonte do Bispo Foto 6
Moradia T2 para Venda em Santa Catarina da Fonte do Bispo Foto 7
Moradia T2 para Venda em Santa Catarina da Fonte do Bispo Foto 8
Moradia T2 para Venda em Santa Catarina da Fonte do Bispo Foto 9
Moradia T2 para Venda em Santa Catarina da Fonte do Bispo Foto 10
Moradia T2 para Venda em Santa Catarina da Fonte do Bispo Foto 11
Moradia T2 para Venda em Santa Catarina da Fonte do Bispo Foto 12
Moradia T2 para Venda em Santa Catarina da Fonte do Bispo Foto 13
Moradia T2 para Venda em Santa Catarina da Fonte do Bispo Foto 14
Moradia T2 para Venda em Santa Catarina da Fonte do Bispo Foto 15
Moradia T2 para Venda em Santa Catarina da Fonte do Bispo Foto 16
Moradia T2 para Venda em Santa Catarina da Fonte do Bispo Foto 17
Moradia T2 para Venda em Santa Catarina da Fonte do Bispo Foto 18
Moradia T2 para Venda em Santa Catarina da Fonte do Bispo Foto 19
Moradia T2 para Venda em Santa Catarina da Fonte do Bispo Foto 20
Moradia T2 para Venda em Santa Catarina da Fonte do Bispo Foto 21
Moradia T2 para Venda em Santa Catarina da Fonte do Bispo Foto 22
Moradia T2 para Venda em Santa Catarina da Fonte do Bispo Foto 23
Moradia T2 para Venda em Santa Catarina da Fonte do Bispo Foto 24
Moradia T2 para Venda em Santa Catarina da Fonte do Bispo Foto 25
Moradia T2 para Venda em Santa Catarina da Fonte do Bispo Foto 26
Moradia T2 para Venda em Santa Catarina da Fonte do Bispo Foto 27
Moradia T2 para Venda em Santa Catarina da Fonte do Bispo Foto 28
Clicky