Negócio para Arrendamento em Rebordosa
520 €
Tipo
Negócio
Negócio
Arrendamento
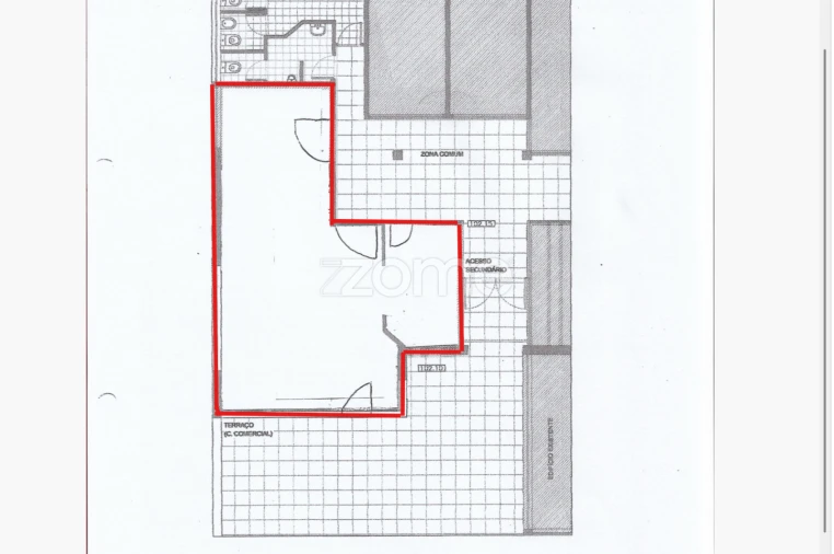
Área Bruta
56 m²
Área Útil
56 m²
Condição
Usado
Certificado Energético
C
Descrição
Identificação do imóvel: ZMPT571816
Espaço comercial inserido no “Edifício Centro Comercial de Rebordosa”. Loja com 56 m2, com muita luz natural, para qualquer tipo de uso para comércio inclusive restauração ou similar.
Inserido num prédio com várias lojas, de serviços e comércio. Excelente localização, junto da Junta de Freguesia de Rebordosa.
Localização: Avenida dos Bombeiros Voluntários, 143
Ano de construção: 1992
Condições essenciais para arrendamento:
• Declaração de rendimentos (IRS) e nota de liquidação do ano anterior
• Últimos 3 recibos de vencimento
• Comprovativo de vínculo laboral
• Apresentação de fiadores (preferencial)
• Pagamento de 4 rendas (2 meses - primeiro e último - e 2 meses de caução) no ato de assinatura do contrato de arrendamento
• Valor de condomínio incluído na renda
Pontos de interesse:
• a 50 m da Junta de Freguesia de Rebordosa
• a 800 m do Complexo Desportivo de Azevido – Campo de Futebol do Rebordosa Atlético Clube
• a 650 m da Escola EB23 de Rebordosa
• a 1,5 km do Pingo Doce de Lordelo
• a 2,8 km da Junta de Freguesia de Lordelo
• a 3,2 km do Intermarché de Lordelo
• a 8 km da CESPU – Cooperativa de Ensino Superior Politécnico e Universitario, Gandra
3 razões para comprar com a Zome
+ acompanhamento
Com uma preparação e experiência única no mercado imobiliário, os consultores Zome põem toda a sua dedicação em dar-lhe o melhor acompanhamento, orientando-o com a máxima confiança, na direção certa das suas necessidades e ambições.
Daqui para a frente, vamos criar uma relação próxima e escutar com atenção as suas expectativas, porque a nossa prioridade é a sua felicidade! Porque é importante que sinta que está acompanhado, e que estamos consigo sempre.
+ simples
Os consultores Zome têm uma formação única no mercado, ancorada na partilha de experiência prática entre profissionais e fortalecida pelo conhecimento de neurociência aplicada que lhes permite simplificar e tornar mais eficaz a sua experiência imobiliária.
Deixe para trás os pesadelos burocráticos porque na Zome encontra o apoio total de uma equipa experiente e multidisciplinar que lhe dá suporte prático em todos os aspetos fundamentais, para que a sua experiência imobiliária supere as expectativas.
+ feliz
O nosso maior valor é entregar-lhe felicidade!
Liberte-se de preocupações e ganhe o tempo de qualidade que necessita para se dedicar ao que lhe faz mais feliz.
Agimos diariamente para trazer mais valor à sua vida com o aconselhamento fiável de que precisa para, juntos, conseguirmos atingir os melhores resultados.
Com a Zome nunca vai estar perdido ou desacompanhado e encontrará algo que não tem preço: a sua máxima tranquilidade!
É assim que se vai sentir ao longo de toda a experiência: Tranquilo, seguro, confortável e... FELIZ!
Notas:
1. Caso seja um consultor imobiliário, este imóvel está disponível para partilha de negócio. Não hesite em apresentar aos seus clientes compradores e fale connosco para agendar a sua visita.
2. Para maior facilidade na identificação deste imóvel, por favor, refira o respetivo ID ZMPT ou o respetivo agente que lhe tenha enviado a sugestão.
Espaço comercial inserido no “Edifício Centro Comercial de Rebordosa”. Loja com 56 m2, com muita luz natural, para qualquer tipo de uso para comércio inclusive restauração ou similar.
Inserido num prédio com várias lojas, de serviços e comércio. Excelente localização, junto da Junta de Freguesia de Rebordosa.
Localização: Avenida dos Bombeiros Voluntários, 143
Ano de construção: 1992
Condições essenciais para arrendamento:
• Declaração de rendimentos (IRS) e nota de liquidação do ano anterior
• Últimos 3 recibos de vencimento
• Comprovativo de vínculo laboral
• Apresentação de fiadores (preferencial)
• Pagamento de 4 rendas (2 meses - primeiro e último - e 2 meses de caução) no ato de assinatura do contrato de arrendamento
• Valor de condomínio incluído na renda
Pontos de interesse:
• a 50 m da Junta de Freguesia de Rebordosa
• a 800 m do Complexo Desportivo de Azevido – Campo de Futebol do Rebordosa Atlético Clube
• a 650 m da Escola EB23 de Rebordosa
• a 1,5 km do Pingo Doce de Lordelo
• a 2,8 km da Junta de Freguesia de Lordelo
• a 3,2 km do Intermarché de Lordelo
• a 8 km da CESPU – Cooperativa de Ensino Superior Politécnico e Universitario, Gandra
3 razões para comprar com a Zome
+ acompanhamento
Com uma preparação e experiência única no mercado imobiliário, os consultores Zome põem toda a sua dedicação em dar-lhe o melhor acompanhamento, orientando-o com a máxima confiança, na direção certa das suas necessidades e ambições.
Daqui para a frente, vamos criar uma relação próxima e escutar com atenção as suas expectativas, porque a nossa prioridade é a sua felicidade! Porque é importante que sinta que está acompanhado, e que estamos consigo sempre.
+ simples
Os consultores Zome têm uma formação única no mercado, ancorada na partilha de experiência prática entre profissionais e fortalecida pelo conhecimento de neurociência aplicada que lhes permite simplificar e tornar mais eficaz a sua experiência imobiliária.
Deixe para trás os pesadelos burocráticos porque na Zome encontra o apoio total de uma equipa experiente e multidisciplinar que lhe dá suporte prático em todos os aspetos fundamentais, para que a sua experiência imobiliária supere as expectativas.
+ feliz
O nosso maior valor é entregar-lhe felicidade!
Liberte-se de preocupações e ganhe o tempo de qualidade que necessita para se dedicar ao que lhe faz mais feliz.
Agimos diariamente para trazer mais valor à sua vida com o aconselhamento fiável de que precisa para, juntos, conseguirmos atingir os melhores resultados.
Com a Zome nunca vai estar perdido ou desacompanhado e encontrará algo que não tem preço: a sua máxima tranquilidade!
É assim que se vai sentir ao longo de toda a experiência: Tranquilo, seguro, confortável e... FELIZ!
Notas:
1. Caso seja um consultor imobiliário, este imóvel está disponível para partilha de negócio. Não hesite em apresentar aos seus clientes compradores e fale connosco para agendar a sua visita.
2. Para maior facilidade na identificação deste imóvel, por favor, refira o respetivo ID ZMPT ou o respetivo agente que lhe tenha enviado a sugestão.
Localização
Av. Bombeiros Voluntários
Rebordosa, Paredes, Porto
A localização exacta do imóvel não está disponível. O mapa apresenta a zona aproximada.
Informação do anúncio
ID do anúncio
1057127
Referência Externa
ZMPT571816
Atualizado em
03/05/2026 06:01:30
Anunciante
Chamada para a rede fixa nacional
ZOME Porto - CEC
AMI 17432
Referência do imóvel:
ZMPT571816
Negócio para Arrendamento em Rebordosa