Terreno para Venda em Moita dos Ferreiros
75.000 €
Tipo
Terreno
Negócio
Venda
Área do Terreno
3900 m²
Descrição
PREÇO NEGOCIÁVEL
Área Total do Terreno: 3.900 m²
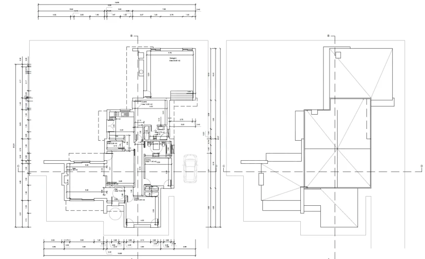
Área de Implantação da Moradia: 218,35 m²
Localização: Moita dos Ferreiros, Lourinhã
----------------------------------------------------
Detalhes do Projeto aprovado:
Tipologia: T3 (Três Quartos)
Área de Implantação: 218,35 m²
Distribuição dos Espaços:
Cozinha: 12,20 m²
Despensa: 2,30 m²
Sala de Estar: 21,30 m²
Sala de Jantar: 14,50 m²
Instalação Sanitária: 6,50 m²
Hall: 13,40 m²
Quarto Suite: 14,30 m² com WC Privativo de 3,75 m²
Quarto 2: 11,40 m²
Quarto 3: 14,00 m²
Garagem: 33,90 m²
----------------------------------------------------
Características do Terreno:
Localização Privilegiada: Situado em Moita dos Ferreiros, uma localidade tranquila e charmosa na Lourinhã, com fácil acesso às principais vias e a poucos minutos de diversas comodidades.
Projeto Aprovado: Permite o início imediato da construção, poupando tempo e recursos com burocracias e aprovação de projetos.
Ampla Área: O terreno de 3.900 m² oferece espaço abundante para jardim, área de lazer, ou outros projetos adicionais.
----------------------------------------------------
Vantagens do Projeto:
Conforto e Funcionalidade: Projeto T3 bem distribuído, com espaços amplos e bem iluminados.
Garagem Ampla: Espaço suficiente para estacionamento e arrumação.
Suite Principal: Quarto principal com WC privativo, garantindo maior privacidade e conforto.
Ambientes Integrados: Sala de estar e sala de jantar conectadas, promovendo convivência e funcionalidade.
----------------------------------------------------
Pontos de Interesse Próximos:
Proximidade ao centro de Lourinhã: Acesso fácil a supermercados, escolas, centros de saúde e outros serviços essenciais.
Beleza Natural: Região conhecida pelas suas paisagens naturais, vinícolas e praias próximas.
Acesso Rápido: Fácil acesso à autoestrada, conectado à Lourinhã, praias e outros pontos de interesse.
----------------------------------------------------
Aproveite esta excelente oportunidade de construir a casa dos seus sonhos com um projeto já aprovado!
Entre em contato para mais informações e agendamento de visitas.
Área Total do Terreno: 3.900 m²
Área de Implantação da Moradia: 218,35 m²
Localização: Moita dos Ferreiros, Lourinhã
----------------------------------------------------
Detalhes do Projeto aprovado:
Tipologia: T3 (Três Quartos)
Área de Implantação: 218,35 m²
Distribuição dos Espaços:
Cozinha: 12,20 m²
Despensa: 2,30 m²
Sala de Estar: 21,30 m²
Sala de Jantar: 14,50 m²
Instalação Sanitária: 6,50 m²
Hall: 13,40 m²
Quarto Suite: 14,30 m² com WC Privativo de 3,75 m²
Quarto 2: 11,40 m²
Quarto 3: 14,00 m²
Garagem: 33,90 m²
----------------------------------------------------
Características do Terreno:
Localização Privilegiada: Situado em Moita dos Ferreiros, uma localidade tranquila e charmosa na Lourinhã, com fácil acesso às principais vias e a poucos minutos de diversas comodidades.
Projeto Aprovado: Permite o início imediato da construção, poupando tempo e recursos com burocracias e aprovação de projetos.
Ampla Área: O terreno de 3.900 m² oferece espaço abundante para jardim, área de lazer, ou outros projetos adicionais.
----------------------------------------------------
Vantagens do Projeto:
Conforto e Funcionalidade: Projeto T3 bem distribuído, com espaços amplos e bem iluminados.
Garagem Ampla: Espaço suficiente para estacionamento e arrumação.
Suite Principal: Quarto principal com WC privativo, garantindo maior privacidade e conforto.
Ambientes Integrados: Sala de estar e sala de jantar conectadas, promovendo convivência e funcionalidade.
----------------------------------------------------
Pontos de Interesse Próximos:
Proximidade ao centro de Lourinhã: Acesso fácil a supermercados, escolas, centros de saúde e outros serviços essenciais.
Beleza Natural: Região conhecida pelas suas paisagens naturais, vinícolas e praias próximas.
Acesso Rápido: Fácil acesso à autoestrada, conectado à Lourinhã, praias e outros pontos de interesse.
----------------------------------------------------
Aproveite esta excelente oportunidade de construir a casa dos seus sonhos com um projeto já aprovado!
Entre em contato para mais informações e agendamento de visitas.
Localização
Moita dos Ferreiros, Lourinhã, Lisboa
Informação do anúncio
ID do anúncio
1149621
Referência Externa
64546-MCCP62656
Atualizado em
11/04/2025 14:00:02
Terreno para Venda em Moita dos Ferreiros