Terreno para Venda em Alvalade
33.000 €
Tipo
Terreno
Negócio
Venda
Condição
Não aplicável
Certificado Energético
Área do Terreno
280 m²
Terreno Urbano Venda em Alvalade,Santiago do Cacém
Excelente terreno urbano situado na vila alentejana de Alvalade, com 280m2 destinado à construção de moradia com uma área bruta de construção de 168m2. Situa-se numa zona calma, no centro da vila a uma curta distância de todos os serviços, comércio e espaços verdes.
A vila Alentejana de Alvalade, pertence ao concelho de Santiago do Cacém, fazendo parte da região do Alentejo Litoral. Situa-se aproximadamente a 150km de Lisboa (1h:20min) a poucos minutos do IC1 e A2. As fantásticas praias do litoral alentejano como Porto Covo, São Torpes e Vila Nova de Milfontes estão a cerca de 30 minutos. Possui todos os tipos de serviços como Centro de Saúde, Farmácia, CTT, Restaurantes, Supermercados, Banco, GNR, Escolas, Museu, etc.
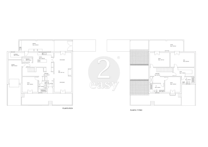
"As imagens apresentadas são referentes a um projeto de arquitetura para a construção de uma moradia T4 de 2 pisos com garagem e quintal.
Estas imagens dão-lhe uma ideia de como pode construir a sua casa de sonho, neste fantástico terreno.
Aproveite esta oportunidade!"
INVESTIR EM PORTUGAL PORQUE É O 3º melhor país do mundo e o 1º europeu para morar e trabalhar (“Expat Insider 2019” da Internations, isto é, trata-se de uma rede de 3 milhões de expatriados a trabalhar no estrangeiro);
- “Novo Eldorado para os reformados europeus” (jornal francês Le Monde);
- Um dos melhores destinos para reformados estrangeiros (revista e site norte-americano International Living);
- Um dos melhores sistemas de saúde do mundo (inglesa BBC);
- Um dos países mais seguros do mundo (Departamento de Estado dos EUA);
- Um dos lugares mais atraentes da Europa para estudar no estrangeiro (“Topuniversities” da inglesa Quacquarelli Symonds).
A vila Alentejana de Alvalade, pertence ao concelho de Santiago do Cacém, fazendo parte da região do Alentejo Litoral. Situa-se aproximadamente a 150km de Lisboa (1h:20min) a poucos minutos do IC1 e A2. As fantásticas praias do litoral alentejano como Porto Covo, São Torpes e Vila Nova de Milfontes estão a cerca de 30 minutos. Possui todos os tipos de serviços como Centro de Saúde, Farmácia, CTT, Restaurantes, Supermercados, Banco, GNR, Escolas, Museu, etc.
"As imagens apresentadas são referentes a um projeto de arquitetura para a construção de uma moradia T4 de 2 pisos com garagem e quintal.
Estas imagens dão-lhe uma ideia de como pode construir a sua casa de sonho, neste fantástico terreno.
Aproveite esta oportunidade!"
INVESTIR EM PORTUGAL PORQUE É O 3º melhor país do mundo e o 1º europeu para morar e trabalhar (“Expat Insider 2019” da Internations, isto é, trata-se de uma rede de 3 milhões de expatriados a trabalhar no estrangeiro);
- “Novo Eldorado para os reformados europeus” (jornal francês Le Monde);
- Um dos melhores destinos para reformados estrangeiros (revista e site norte-americano International Living);
- Um dos melhores sistemas de saúde do mundo (inglesa BBC);
- Um dos países mais seguros do mundo (Departamento de Estado dos EUA);
- Um dos lugares mais atraentes da Europa para estudar no estrangeiro (“Topuniversities” da inglesa Quacquarelli Symonds).
Localização
Alvalade, Santiago do Cacém, Setúbal
Informação do anúncio
ID do anúncio
1153803
Referência Externa
281601017
Atualizado em
15/11/2025 03:33:54
Anunciante
Chamada para a rede móvel nacional
Cifradinâmica - Med. Imob. Unip. Lda
AMI 9412
Referência do imóvel:
281601017
Terreno para Venda em Alvalade
Vídeo