Moradia T8 para Venda em Glória e Vera Cruz
1.300.000 €
Tipo
Moradia
Negócio
Venda
Quartos
8
Área Útil
475 m²
Condição
Usado
Certificado Energético
C
Área do Terreno
850 m²
Moradia T8 Venda em Glória e Vera Cruz,Aveiro
Moradia Vintage - Aveiro
Moradia de localização Premium, no Bairro das Cincos Bicas, onde a tradição e modernidade se encontram oferecendo o melhor da vida urbana e a tranquilidade de um refúgio privado.
Situada no coração de Aveiro, esta moradia vintage oferece um ambiente único que combina a elegância clássica com a autenticidade de uma história rica. Com traços arquitetónicos que datam de épocas passadas, possui tetos altos e detalhes originais preservados. É um verdadeiro refúgio para quem aprecia o charme de tempos antigos, sem abrir mão do conforto e da harmonia.
Outro dos grandes destaques desta propriedade é o seu charmoso jardim que complementa a atmosfera tranquila da moradia.
Com uma exposição solar a sul e nascente, esta residência aproveita ao máximo a luz natural, realçando a sua atmosfera acolhedora.
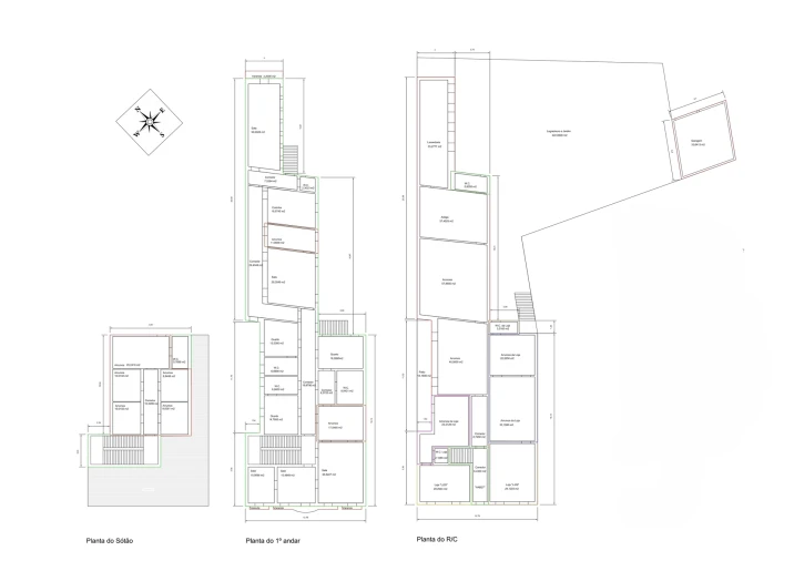
Inserida num generoso lote de 850m² e 475m² de área útil, esta distribui-se por três pisos com 3 dependências distintas. Duas delas destinadas a comércio situadas no r/c, uma dependência habitacional situada no 1º andar e no último piso do Imóvel encontra-se um sótão com uma área generosa, destinado a arrumos e com wc incluído.
A área destinada a habitação possui um total de 20 divisões que incluem salas, cozinha, quartos, wc´s, entre outras. As divisões são distribuídas ao longo de dois grandes corredores e dispõe de varandas para o exterior.
Ao Imóvel pertencem duas garagens fechadas e privadas.
Trata-se de um imóvel ideal para investimento ou desenvolvimento de negócios no coração da cidade, e com grande potencial para diversos usos, como exemplo um pequeno hotel de charme, a sede de uma empresa ou associação, um restaurante ou até mesmo para edificação de um empreendimento habitacional.
Newimo Realtors
Somos uma agência imobiliária que vai além de satisfazer as necessidades dos clientes - queremos superá-las!
Seja para comprar, vender ou arrendar, oferecemos um atendimento personalizado, trabalhando lado a lado consigo para encontrar a solução ideal.
Contamos com uma equipa experiente, qualificada e focada no sucesso de cada operação. Sabemos que uma boa carteira de imóveis, por si só, não basta. Por isso, estudamos o mercado a fundo para oferecer sempre a melhor recomendação.
Diga-nos o que procura. Estamos prontos para ajudar.
Moradia de localização Premium, no Bairro das Cincos Bicas, onde a tradição e modernidade se encontram oferecendo o melhor da vida urbana e a tranquilidade de um refúgio privado.
Situada no coração de Aveiro, esta moradia vintage oferece um ambiente único que combina a elegância clássica com a autenticidade de uma história rica. Com traços arquitetónicos que datam de épocas passadas, possui tetos altos e detalhes originais preservados. É um verdadeiro refúgio para quem aprecia o charme de tempos antigos, sem abrir mão do conforto e da harmonia.
Outro dos grandes destaques desta propriedade é o seu charmoso jardim que complementa a atmosfera tranquila da moradia.
Com uma exposição solar a sul e nascente, esta residência aproveita ao máximo a luz natural, realçando a sua atmosfera acolhedora.
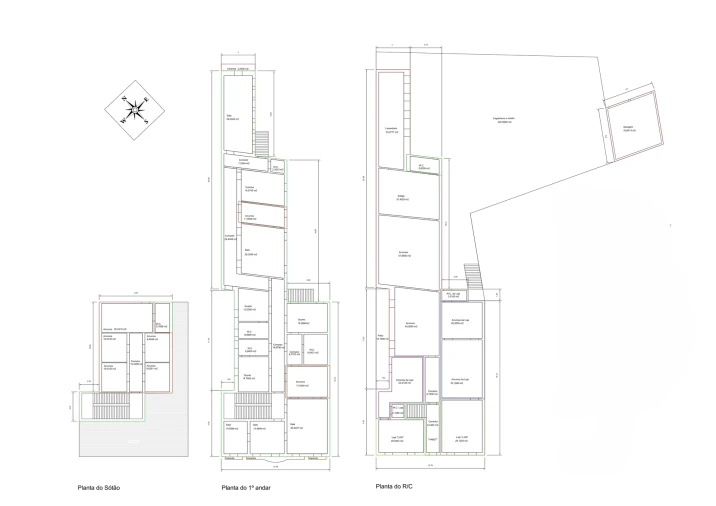
Inserida num generoso lote de 850m² e 475m² de área útil, esta distribui-se por três pisos com 3 dependências distintas. Duas delas destinadas a comércio situadas no r/c, uma dependência habitacional situada no 1º andar e no último piso do Imóvel encontra-se um sótão com uma área generosa, destinado a arrumos e com wc incluído.
A área destinada a habitação possui um total de 20 divisões que incluem salas, cozinha, quartos, wc´s, entre outras. As divisões são distribuídas ao longo de dois grandes corredores e dispõe de varandas para o exterior.
Ao Imóvel pertencem duas garagens fechadas e privadas.
Trata-se de um imóvel ideal para investimento ou desenvolvimento de negócios no coração da cidade, e com grande potencial para diversos usos, como exemplo um pequeno hotel de charme, a sede de uma empresa ou associação, um restaurante ou até mesmo para edificação de um empreendimento habitacional.
Newimo Realtors
Somos uma agência imobiliária que vai além de satisfazer as necessidades dos clientes - queremos superá-las!
Seja para comprar, vender ou arrendar, oferecemos um atendimento personalizado, trabalhando lado a lado consigo para encontrar a solução ideal.
Contamos com uma equipa experiente, qualificada e focada no sucesso de cada operação. Sabemos que uma boa carteira de imóveis, por si só, não basta. Por isso, estudamos o mercado a fundo para oferecer sempre a melhor recomendação.
Diga-nos o que procura. Estamos prontos para ajudar.
Localização
Glória e Vera Cruz, Aveiro, Aveiro
Informação do anúncio
ID do anúncio
1154484
Referência Externa
25015
Atualizado em
08/04/2026 02:03:58
Moradia T8 para Venda em Glória e Vera Cruz