Voltar
Terreno para Venda em Cartaxo e Vale da Pinta Foto 1
Terreno para Venda em Cartaxo e Vale da Pinta Foto 2
Terreno para Venda em Cartaxo e Vale da Pinta Foto 3
Terreno para Venda em Cartaxo e Vale da Pinta Foto 4
Terreno para Venda em Cartaxo e Vale da Pinta Foto 5

Terreno para Venda em Cartaxo e Vale da Pinta

150.000 €

Tipo
Terreno
Negócio
Venda
Condição
Não aplicável
Certificado Energético
Área do Terreno
624 m²

Terreno Urbano Venda em Cartaxo e Vale da Pinta,Cartaxo

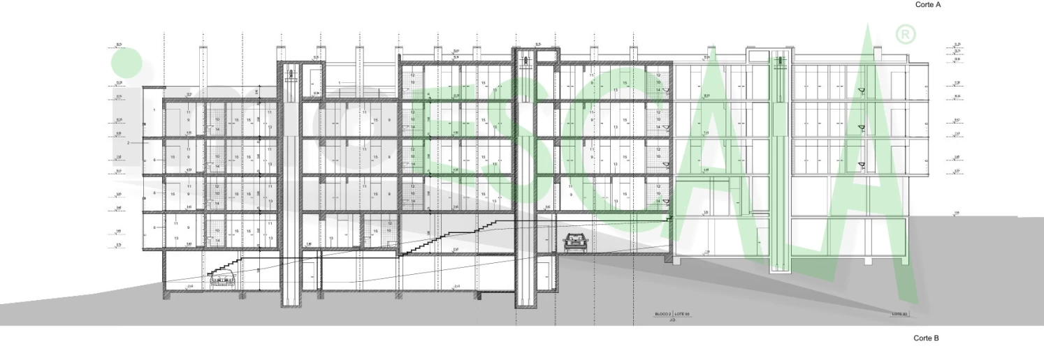
Lote Urbano situado na urbanização Quinta das Correias, com área total Implantação de 624 m2, para construção de Prédio com área bruta de construção de 1507.15 m2; distribuídos por 2 Blocos Com Cave para parqueamentos, Pisos Superiores para Habitação.
Permite a construção de 2 Blocos habitacionais; Totalizado o máximo de 14 fogos com tipologias de T1,T2, T3 e T4.

Bloco 1- Cave + 4 Pisos para Habitação;
Bloco 2 - Cave + 3 Pisos para Habitação;

Zona com boas acessibilidades, com proximidade às principais autoestradas, a 6 minutos do acesso da A1 e a 12 minutos da A13; A 40 min do Aeroporto de Lisboa e a 15 minutos da cidade de Santarém, a emblemática Capital do Gótico.
Imóvel localizado em Zona Nobre da cidade, próximo de comércio, serviços e Escolas e apenas a 2 quilómetros do Apeadeiro Ferroviário de Cartaxo-Santana.

Excelente oportunidade de investimento!

Localização

Cartaxo e Vale da Pinta, Cartaxo, Santarém

Informação do anúncio

ID do anúncio 1164682
Referência Externa IM204
Atualizado em 21/01/2026 03:17:43
IMOESCALA (IMOVEIS DISTINTOS, LDA) AMI 13691
Referência do imóvel: IM204
Phone
Chamada para a rede móvel nacional
Imoescala
Imoescala
Phone
Chamada para a rede móvel nacional
IMOESCALA (IMOVEIS DISTINTOS, LDA) AMI 13691
Referência do imóvel: IM204
Phone
Chamada para a rede móvel nacional
Imoescala
Imoescala
Phone
Chamada para a rede móvel nacional
1 / 33
Terreno para Venda em Cartaxo e Vale da Pinta Foto 1
Terreno para Venda em Cartaxo e Vale da Pinta Foto 2
Terreno para Venda em Cartaxo e Vale da Pinta Foto 3
Terreno para Venda em Cartaxo e Vale da Pinta Foto 4
Terreno para Venda em Cartaxo e Vale da Pinta Foto 5
Terreno para Venda em Cartaxo e Vale da Pinta Foto 6
Terreno para Venda em Cartaxo e Vale da Pinta Foto 7
Terreno para Venda em Cartaxo e Vale da Pinta Foto 8
Terreno para Venda em Cartaxo e Vale da Pinta Foto 9
Terreno para Venda em Cartaxo e Vale da Pinta Foto 10
Terreno para Venda em Cartaxo e Vale da Pinta Foto 11
Terreno para Venda em Cartaxo e Vale da Pinta Foto 12
Terreno para Venda em Cartaxo e Vale da Pinta Foto 13
Terreno para Venda em Cartaxo e Vale da Pinta Foto 14
Terreno para Venda em Cartaxo e Vale da Pinta Foto 15
Terreno para Venda em Cartaxo e Vale da Pinta Foto 16
Terreno para Venda em Cartaxo e Vale da Pinta Foto 17
Terreno para Venda em Cartaxo e Vale da Pinta Foto 18
Terreno para Venda em Cartaxo e Vale da Pinta Foto 19
Terreno para Venda em Cartaxo e Vale da Pinta Foto 20
Terreno para Venda em Cartaxo e Vale da Pinta Foto 21
Terreno para Venda em Cartaxo e Vale da Pinta Foto 22
Terreno para Venda em Cartaxo e Vale da Pinta Foto 23
Terreno para Venda em Cartaxo e Vale da Pinta Foto 24
Terreno para Venda em Cartaxo e Vale da Pinta Foto 25
Terreno para Venda em Cartaxo e Vale da Pinta Foto 26
Terreno para Venda em Cartaxo e Vale da Pinta Foto 27
Terreno para Venda em Cartaxo e Vale da Pinta Foto 28
Terreno para Venda em Cartaxo e Vale da Pinta Foto 29
Terreno para Venda em Cartaxo e Vale da Pinta Foto 30
Terreno para Venda em Cartaxo e Vale da Pinta Foto 31
Terreno para Venda em Cartaxo e Vale da Pinta Foto 32
Terreno para Venda em Cartaxo e Vale da Pinta Foto 33
Clicky