Terreno para Venda em Golpilheira
38.500 €
Tipo
Terreno
Negócio
Venda
Área Bruta
322 m²
Área Útil
215 m²
Condição
Novo
Certificado Energético
Não se aplica
Área do Terreno
262 m²
Terreno urbano para construção
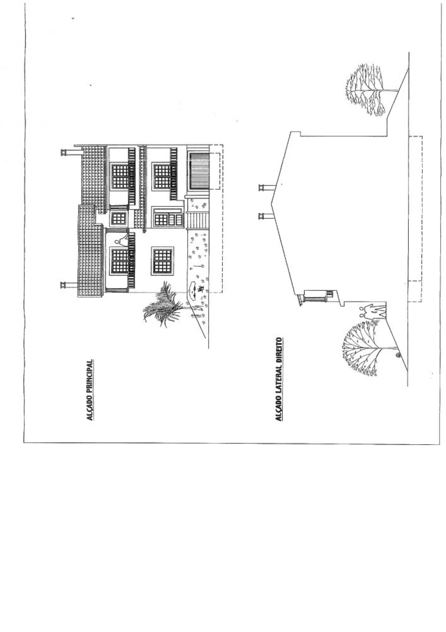
Terreno urbano de 262.87 m2 com, projeto aprovado para moradia T3 de 2 pisos com garagem e sótão, com áreas bruta de construção de 322m2.
Na vila da Golpilheira a 5 minutos da Batalha, 10 minutos de Leiria. Servido de bons acessos rodoviárias. Situado em zona tranquila e familiar.
Sobre Nós
A Preserve Prestige, Lda nasceu em 2018 da paixão e determinação de vencer no exigente mercado imobiliário. Desde o primeiro dia, comprometemo-nos a oferecer um serviço de excelência, baseado na transparência, confiança e dedicação a cada cliente.
Hoje, consolidamos essa visão através da nossa marca S-Prestige, focada na mediação imobiliária e na criação de soluções personalizadas para quem pretende comprar, vender ou investir em imóveis. Distinguimo-nos pelo acompanhamento especializado, conhecimento profundo do setor e compromisso com a satisfação total dos nossos clientes.
Na S-Prestige, acreditamos que cada imóvel tem uma história e cada cliente merece um serviço à medida. Seja para encontrar a casa dos seus sonhos ou para garantir o melhor retorno no seu investimento, estamos aqui para tornar cada passo mais simples, seguro e vantajoso.
S- Prestige
Elevamos o seu património
Criamos valor
Construímos confiança.
AMI: 20322
Na vila da Golpilheira a 5 minutos da Batalha, 10 minutos de Leiria. Servido de bons acessos rodoviárias. Situado em zona tranquila e familiar.
Sobre Nós
A Preserve Prestige, Lda nasceu em 2018 da paixão e determinação de vencer no exigente mercado imobiliário. Desde o primeiro dia, comprometemo-nos a oferecer um serviço de excelência, baseado na transparência, confiança e dedicação a cada cliente.
Hoje, consolidamos essa visão através da nossa marca S-Prestige, focada na mediação imobiliária e na criação de soluções personalizadas para quem pretende comprar, vender ou investir em imóveis. Distinguimo-nos pelo acompanhamento especializado, conhecimento profundo do setor e compromisso com a satisfação total dos nossos clientes.
Na S-Prestige, acreditamos que cada imóvel tem uma história e cada cliente merece um serviço à medida. Seja para encontrar a casa dos seus sonhos ou para garantir o melhor retorno no seu investimento, estamos aqui para tornar cada passo mais simples, seguro e vantajoso.
S- Prestige
Elevamos o seu património
Criamos valor
Construímos confiança.
AMI: 20322
Localização
Golpilheira, Batalha, Leiria
Informação do anúncio
ID do anúncio
1175867
Referência Externa
SPCA301
Atualizado em
07/01/2026 09:31:11
Terreno para Venda em Golpilheira