Terreno para Venda em Funchal
280.000 €
Tipo
Terreno
Negócio
Venda
Área Bruta
450 m²
Área do Terreno
1770 m²
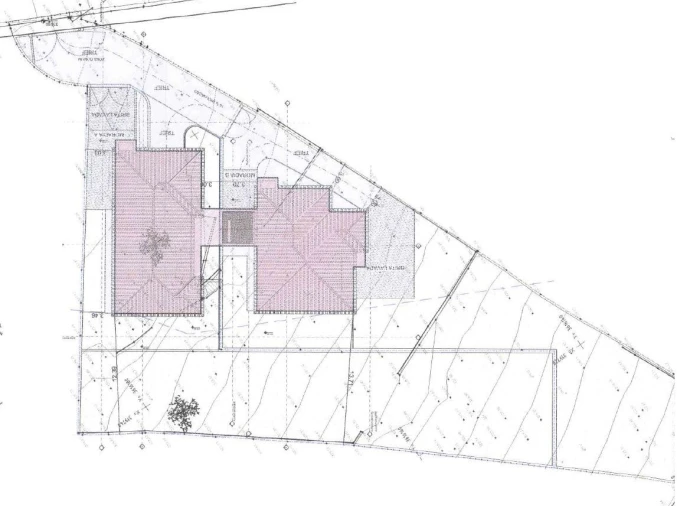
Terreno com Vista Panorâmica e Projeto Aprovado para Duas Moradias em São Roque, Funchal
Descubra esta oportunidade única de investimento no Funchal: um terreno com 1.770 m² localizado em São Roque, com vistas deslumbrantes sobre a cidade, a baía e o mar. Inserido numa zona tranquila e elevada, este lote destaca-se pelo seu potencial habitacional e valorização futura.
O terreno possui projeto aprovado para a construção de duas moradias unifamiliares — uma T2 e uma T3 — ambas com garagem, estacionamento privado e áreas exteriores generosas. O projeto, com uma área bruta total de 401,8 m², foi concebido para proporcionar conforto, funcionalidade e máxima exposição solar.
Cada moradia contempla:
- Sala de estar espaçosa com luz natural abundante
- Quartos bem distribuídos, incluindo uma suite com casa de banho privativa
- Cozinha moderna e funcional
- Varanda frontal com vista mar e serra
- Pátio exterior, garagem e áreas de arrumação
A localização é outro dos grandes trunfos: a poucos minutos de restaurantes, complexo desportivo, escolas e transportes públicos. O acesso rápido à zona baixa do Funchal, às praias e a centros comerciais garante total comodidade, sem abdicar da tranquilidade.
Se procura o local ideal para construir a sua casa de sonho, uma residência de férias ou mesmo um projeto de investimento com retorno garantido, este terreno reúne todas as condições.
Não perca esta oportunidade rara no mercado madeirense — contacte-nos hoje mesmo para mais informações ou agendar uma visita!
O terreno possui projeto aprovado para a construção de duas moradias unifamiliares — uma T2 e uma T3 — ambas com garagem, estacionamento privado e áreas exteriores generosas. O projeto, com uma área bruta total de 401,8 m², foi concebido para proporcionar conforto, funcionalidade e máxima exposição solar.
Cada moradia contempla:
- Sala de estar espaçosa com luz natural abundante
- Quartos bem distribuídos, incluindo uma suite com casa de banho privativa
- Cozinha moderna e funcional
- Varanda frontal com vista mar e serra
- Pátio exterior, garagem e áreas de arrumação
A localização é outro dos grandes trunfos: a poucos minutos de restaurantes, complexo desportivo, escolas e transportes públicos. O acesso rápido à zona baixa do Funchal, às praias e a centros comerciais garante total comodidade, sem abdicar da tranquilidade.
Se procura o local ideal para construir a sua casa de sonho, uma residência de férias ou mesmo um projeto de investimento com retorno garantido, este terreno reúne todas as condições.
Não perca esta oportunidade rara no mercado madeirense — contacte-nos hoje mesmo para mais informações ou agendar uma visita!
Localização
Caminho Água Mel
São Roque, Funchal, Ilha da Madeira
Informação do anúncio
ID do anúncio
1197431
Referência Externa
C0216-03140
Atualizado em
15/05/2025 08:50:24
Anunciante
Chamada para a rede fixa nacional
MJ Brokers - Mediação Imobiliária Lda
AMI 9318
Referência do imóvel:
C0216-03140
Terreno para Venda em Funchal