Terreno para Venda em Loule (São Clemente)
69.000 €
Tipo
Terreno
Negócio
Venda
Área Bruta
109 m²
Área Útil
109 m²
Condição
Para Obras
Certificado Energético
Não aplicável
Área do Terreno
48 m²
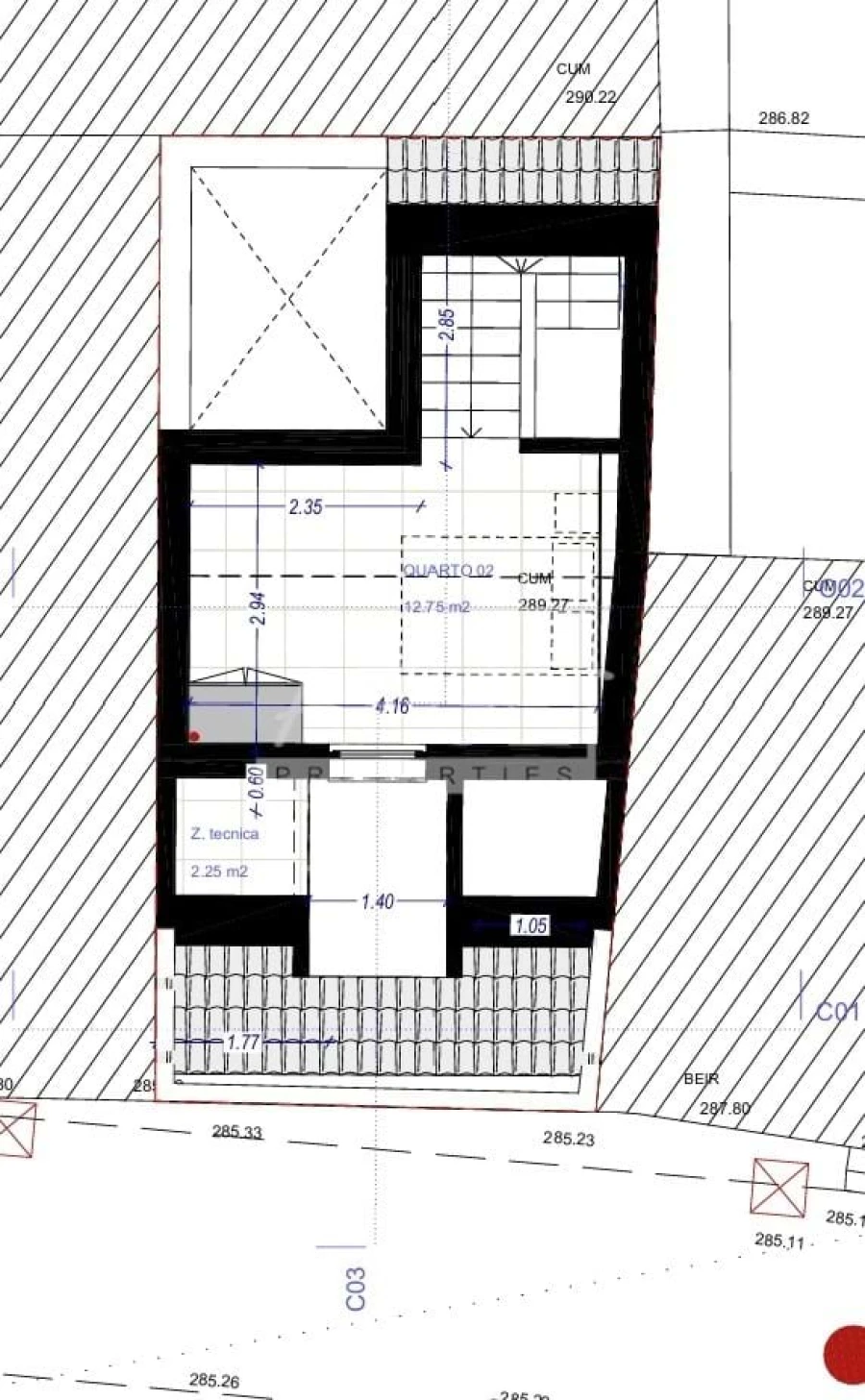
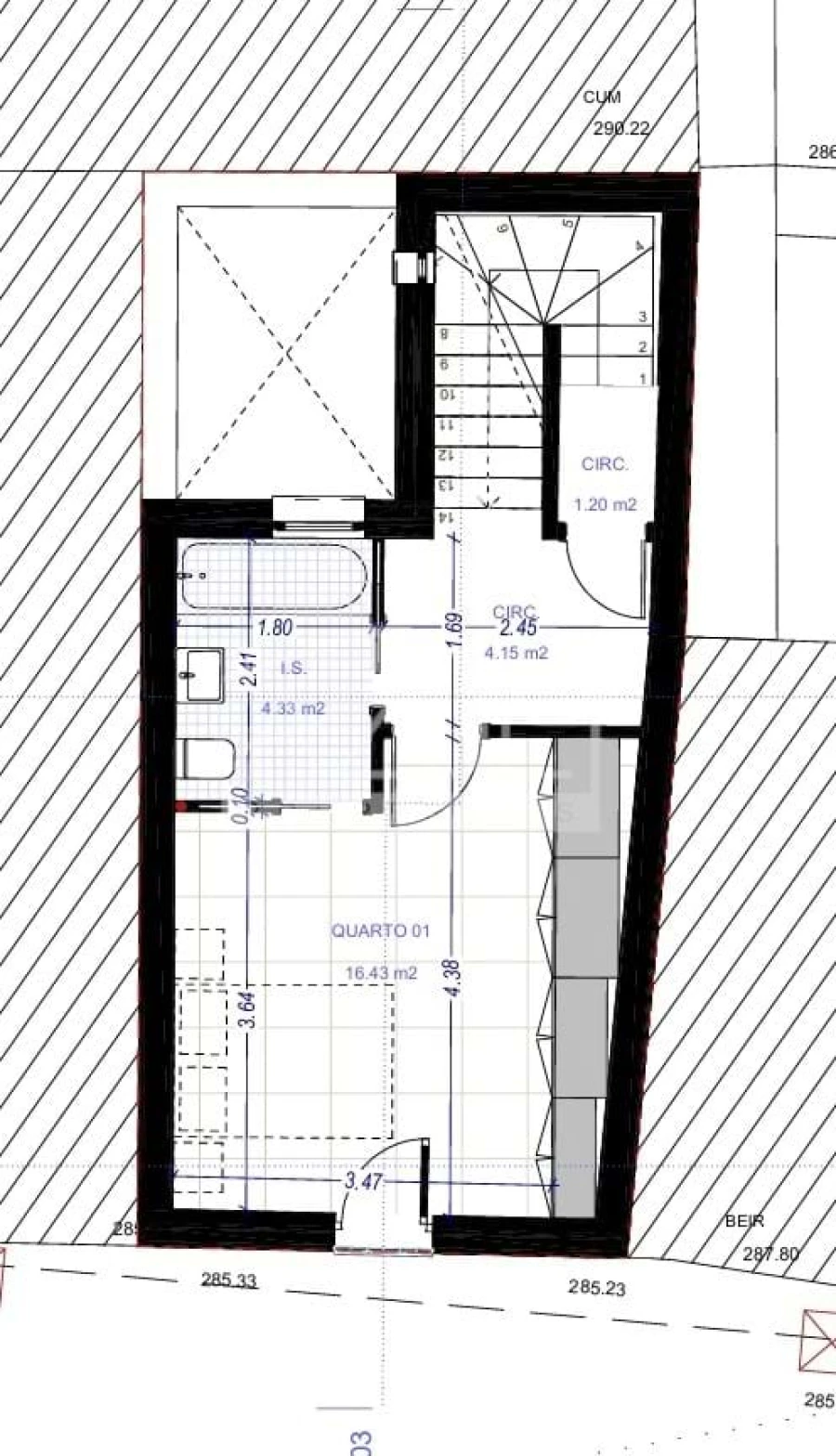
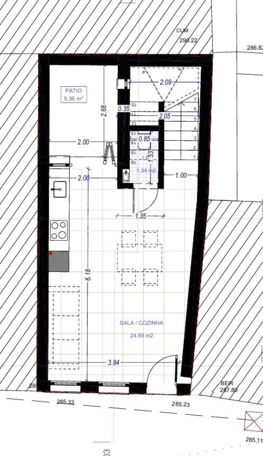
Projeto Aprovado para Moradia T2 Moderna em Benafim-Pronta a Construir
Uma oportunidade de criar uma casa deslumbrante e contemporânea no coração da autêntica vila algarvia de Benafim. Este projeto aprovado permite a construção de uma elegante casa de aldeia de três andares e dois quartos, completa com um pátio privado, substituindo uma ruína atual.
Com todos os planos arquitetônicos aprovados e prontos para o início da fase de construção, esta é a chance perfeita para construir a casa dos seus sonhos ou um imóvel de aluguel altamente desejável sem o longo e incerto processo de planejamento.
Este projeto cuidadosamente projetado combina a vida moderna com o charme de um ambiente tradicional de vila. Os planos maximizam o espaço e a luz em três andares, criando uma casa confortável e funcional. O piso térreo foi projetado para uma vida em plano aberto, fluindo para um pátio privado - perfeito para refeições ao ar livre e desfrutar do famoso clima do Algarve. Os andares superiores abrigarão dois quartos, oferecendo um retiro tranquilo.
Benafim é uma vila pitoresca e tranquila que oferece uma fuga da agitação das principais estâncias costeiras, sem deixar de estar convenientemente localizada. Aninhada nas colinas do centro do Algarve, é conhecida pela sua comunidade acolhedora, cafés locais e um ambiente natural deslumbrante.
Este projeto representa um investimento fantástico, quer esteja à procura de uma residência permanente, de uma escapadinha de férias ou de um imóvel rentável para arrendamento. Com as permissões de planejamento já garantidas, você pode contornar a burocracia e começar a construir seu futuro ao sol imediatamente.
Observe que este é um projeto aprovado e não inclui o custo de construção da propriedade.
Com todos os planos arquitetônicos aprovados e prontos para o início da fase de construção, esta é a chance perfeita para construir a casa dos seus sonhos ou um imóvel de aluguel altamente desejável sem o longo e incerto processo de planejamento.
Este projeto cuidadosamente projetado combina a vida moderna com o charme de um ambiente tradicional de vila. Os planos maximizam o espaço e a luz em três andares, criando uma casa confortável e funcional. O piso térreo foi projetado para uma vida em plano aberto, fluindo para um pátio privado - perfeito para refeições ao ar livre e desfrutar do famoso clima do Algarve. Os andares superiores abrigarão dois quartos, oferecendo um retiro tranquilo.
Benafim é uma vila pitoresca e tranquila que oferece uma fuga da agitação das principais estâncias costeiras, sem deixar de estar convenientemente localizada. Aninhada nas colinas do centro do Algarve, é conhecida pela sua comunidade acolhedora, cafés locais e um ambiente natural deslumbrante.
Este projeto representa um investimento fantástico, quer esteja à procura de uma residência permanente, de uma escapadinha de férias ou de um imóvel rentável para arrendamento. Com as permissões de planejamento já garantidas, você pode contornar a burocracia e começar a construir seu futuro ao sol imediatamente.
Observe que este é um projeto aprovado e não inclui o custo de construção da propriedade.
Localização
Loule (São Clemente), Loulé, Faro
Informação do anúncio
ID do anúncio
1286077
Referência Externa
1001-2381
Atualizado em
08/03/2026 02:00:37
Anunciante
Chamada para a rede fixa nacional
Azul Homes Lda
AMI 5604
Referência do imóvel:
1001-2381
Terreno para Venda em Loule (São Clemente)
Vídeo