Voltar
Terreno para Venda em Mina de Água Foto 1
Terreno para Venda em Mina de Água Foto 2
Terreno para Venda em Mina de Água Foto 3
Terreno para Venda em Mina de Água Foto 4
Terreno para Venda em Mina de Água Foto 5

Terreno para Venda em Mina de Água

460.000 €

Tipo
Terreno
Negócio
Venda
Ano de Construção
1997
Área Bruta
2523 m²
Área Útil
1555 m²
Condição
Novo
Certificado Energético
Não se aplica
Área do Terreno
658 m²

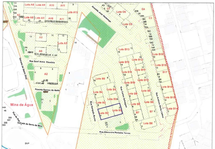
Lote de terreno para construção de um edifício para habitação - VENDA OU PERMUTA

Lote de terreno para a construção de um edifício habitacional para venda ou permuta na Amadora, Lisboa. Está previsto a construção de 15 apartamentos. Este lote de terreno está localizado numa zona habitacional na periferia da Amadora e junto aos principais acessos, distando apenas de alguns minutos para Lisboa.
O lote de terreno está adjacente a 2 ruas com diferentes cotas de elevação, onde se prevê a construção de 2 blocos de apartamento, com entradas independentes para cada rua. Os blocos ficam separados entre si por um logradouro privado com serventia para ambos os blocos. A entrada para a cave e estacionamento está prevista ser no bloco com a cota mais elevada. Está, também previsto, que um dos blocos tenha 3 pisos acima da cota soleira e 3 abaixo com 1 T3 e 1 T4 duplex e 4 T2. O outro bloco deverá ter 4 pisos, um abaixo da cota de soleira e 3 acima, com 2 T0, 2 T2 e 2 T3. Na cave deverá existir uma sala de condomínio e estacionamento para 26 lugares.

Localização

Mina de Água, Amadora, Lisboa

Informação do anúncio

ID do anúncio 1293624
Referência Externa 01-415
Atualizado em 06/08/2025 09:37:34
Imoamazonas AMI 15990
Referência do imóvel: 01-415
Phone
Chamada para a rede móvel nacional
Imoamazonas AMI 15990
Referência do imóvel: 01-415
Phone
Chamada para a rede móvel nacional
1 / 9
Terreno para Venda em Mina de Água Foto 1
Terreno para Venda em Mina de Água Foto 2
Terreno para Venda em Mina de Água Foto 3
Terreno para Venda em Mina de Água Foto 4
Terreno para Venda em Mina de Água Foto 5
Terreno para Venda em Mina de Água Foto 6
Terreno para Venda em Mina de Água Foto 7
Terreno para Venda em Mina de Água Foto 8
Terreno para Venda em Mina de Água Foto 9
Clicky