Voltar
Apartamento T2 para Venda em Grijó e Sermonde Foto 1
Apartamento T2 para Venda em Grijó e Sermonde Foto 2
Apartamento T2 para Venda em Grijó e Sermonde Foto 3
Apartamento T2 para Venda em Grijó e Sermonde Foto 4
Apartamento T2 para Venda em Grijó e Sermonde Foto 5

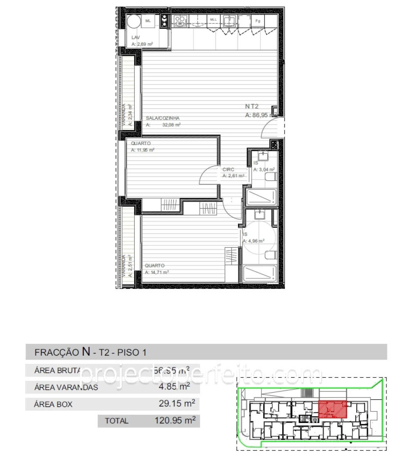
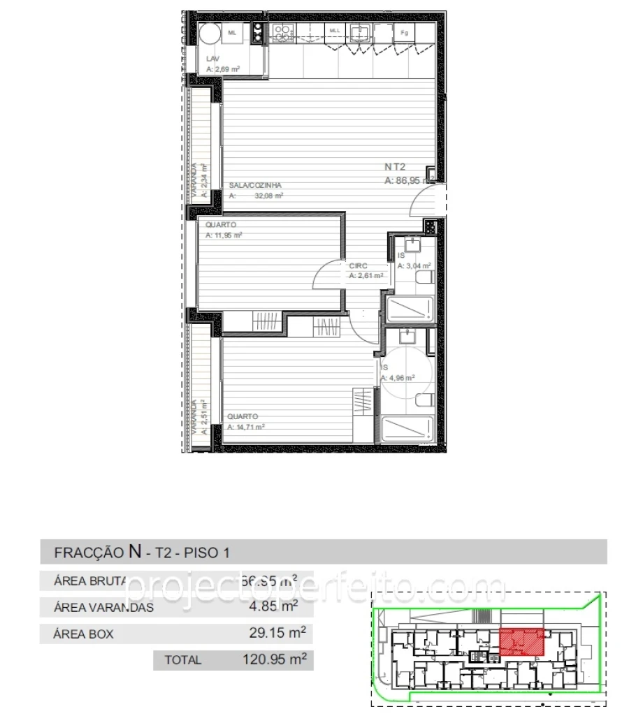
Apartamento T2 para Venda em Grijó e Sermonde

290.000 €

Tipo
Apartamento
Negócio
Venda
Quartos
2
Área Bruta
113 m²
Área Útil
79 m²
Condição
Novo
Certificado Energético
A

Apartamento T2 Venda em Grijó e Sermonde,Vila Nova de Gaia

Apartamento T2 novo, para venda na Feiteira, Grijó, Vila Nova de Gaia, com varanda de 4.27m2, garagem box para 2 carros, inserido num novo empreendimento composto por 39 apartamentos com tipologias T1, T2 e T3, todos eles com garagem fechada para no mínimo 2 carros.

Localizado próximo do Espaço Mais, junto dos acessos à A1, a cerca de 10 minutos do centro de Vila Nova de Gaia e do Porto, sendo uma excelente oportunidade tanto para habitação própria como para uma perspectiva de investimento.

Este será um empreendimento dotado de boas áreas e acabamentos tais como bomba de calor, cozinhas equipadas, piso flutuante, instalação de ar condicionado.

Entre em contacto para mais informações e venha conhecer o seu futuro lar.

Material de acabamentos.

Mapa de acabamentos.

Exteriores
Fachada ventilada com revestimentos a cerâmica de grandes dimensões com estrutura de alumínio.
Topos das varandas em cerâmica com estrutura em alumínio.
Tetos de varandas em cerâmica com estrutura de alumínio.
Varanda com cerâmica espessura de 2cm.
Iluminação das varandas embutida nos tetos com focos Lede.

Caixilharia de alumínio.
Caixilharia de alumínio com corte térmico lacado.
Vidro duplo Guardiansun 6mm + CX 18 PRT + Laminado 4 + 4.
Estores elétricos em alumínio á cor da caixilharia com isolamento térmico.
Varandas grades de ferro lacado.

Pavimentos interiores.
Pisos com manta acústica com dobra nas paredes meeiras.
Isolamento acústico de toda a tubagem.
Pavimentos de flutuante VINIL a cor do carvalho.

Paredes interiores.
Paredes interiores em pladur com dupla placa uma de O S B e outra de pladur com estrutura dos montantes reforçada.
Paredes da casas de banho com cerâmica na zona de duche.
Manta de vedação por traz da cerâmica para vedação das infiltrações.
Paredes pintadas com tinta cinacryl.
Chão do duche em cerâmica com grelha de recolha de agua.
Resguardo de correr ao fixo.
Louça suspensa.
Movel lavatório suspenso.
Espelho retro iluminado.
Sistema de ventilação com VMC. ( fluxos cruzados).

Tetos.
Tetos falsos em pladur.
Sancas de pladur.
Iluminação Led.

Madeiras de carpintaria.
Portas até ao teto lacadas a cor ralé 9010.
Moveis roupeiros com portas de abrir lacadas até ao teto iluminação interior.

Cozinha.
Móveis de cozinha com portas e gavetões termolaminado.
Tampo de cozinha em Sileston com roda-tampo.

Equipamento Bosch.
Frigorifico combinado.
Maquina de lavar louça.
Forno com grill.
Micro-ondas com grill.
Placa vitrocerâmica.
Chaminé de gaveta.
Bomba de calor Aríston ao equivalente.
Ar-condicionado Aríston ao equivalente.

Zona comuns.
Elevadores.
Chão da entrada principal em cerâmica.
Paredes dos halls com material ignifica.
Escadaria degraus e patamares em cerâmica.
Paredes da escadaria pintadas.
Tetos dos halls em pladur.
Pavimento das garagem com acabamento talocha do mecânico com endurecedor.
Paredes das garagem e tetos pintados a branco com lambrim ate 1,20cm cor a definir.
Pré-instalação para carregadores elétricos.
Sala de condomínio.
Rede de incêndio.

Entre em contacto para mais informações e venha conhecer o seu futuro lar.

Localização

Grijó e Sermonde, Vila Nova de Gaia, Porto

Informação do anúncio

ID do anúncio 1321760
Referência Externa 4212-O
Atualizado em 26/02/2026 03:03:04
Projecto Perfeito AMI 8481
Referência do imóvel: 4212-O
Phone
Chamada para a rede móvel nacional
Projecto Perfeito AMI 8481
Referência do imóvel: 4212-O
Phone
Chamada para a rede móvel nacional
1 / 10
Apartamento T2 para Venda em Grijó e Sermonde Foto 1
Apartamento T2 para Venda em Grijó e Sermonde Foto 2
Apartamento T2 para Venda em Grijó e Sermonde Foto 3
Apartamento T2 para Venda em Grijó e Sermonde Foto 4
Apartamento T2 para Venda em Grijó e Sermonde Foto 5
Apartamento T2 para Venda em Grijó e Sermonde Foto 6
Apartamento T2 para Venda em Grijó e Sermonde Foto 7
Apartamento T2 para Venda em Grijó e Sermonde Foto 8
Apartamento T2 para Venda em Grijó e Sermonde Foto 9
Apartamento T2 para Venda em Grijó e Sermonde Foto 10
Apartamento T2 para Venda em Grijó e Sermonde
Clicky