Terreno para Venda em Calheta
25.000 €
Tipo
Terreno
Negócio
Venda
Área Bruta
600 m²
Certificado Energético
N/A
Área do Terreno
2013 m²
Descrição
Bonito terreno com vista desafogada sobre o mar, usufrui de excelente exposição solar.
Este terreno tem 2,013m2, acesso direto à estrada e destina-se a construção de moradia.
Tem duas frentes com arruamento, podendo fazer o acesso à propriedade por qualquer uma delas.
Está situado junto à vila da Calheta, costa sul da ilha.
A eletricidade e água estão mesmo ao lado do terreno e o local tem boa rede de telefone e internet.
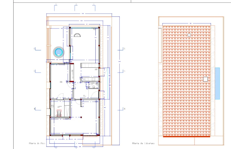
Já existe um projeto aprovado para construção de moradia, inclusive com licença de construção já emitida pela Camara Municipal. Toda a documentação está pronta a iniciar a obra.
A vila da Calheta tem todo o tipo de serviços como escolas, supermercados, restauração, bancos, companhias de seguros, correios, entre outros... Tem ainda porto de navegação.
Este terreno tem 2,013m2, acesso direto à estrada e destina-se a construção de moradia.
Tem duas frentes com arruamento, podendo fazer o acesso à propriedade por qualquer uma delas.
Está situado junto à vila da Calheta, costa sul da ilha.
A eletricidade e água estão mesmo ao lado do terreno e o local tem boa rede de telefone e internet.
Já existe um projeto aprovado para construção de moradia, inclusive com licença de construção já emitida pela Camara Municipal. Toda a documentação está pronta a iniciar a obra.
A vila da Calheta tem todo o tipo de serviços como escolas, supermercados, restauração, bancos, companhias de seguros, correios, entre outros... Tem ainda porto de navegação.
Localização
Calheta, Calheta (São Jorge), Ilha de São Jorge
Informação do anúncio
ID do anúncio
1326676
Referência Externa
T1025
Atualizado em
20/05/2026 23:27:18
Anunciante
Chamada para a rede fixa nacional
Arlindo Teles II, lda
AMI 9666
Referência do imóvel:
T1025
Terreno para Venda em Calheta
Vídeo