Voltar
Terreno para Venda em Nossa Senhora do Pópulo, Coto e São Gregório Foto 1
Terreno para Venda em Nossa Senhora do Pópulo, Coto e São Gregório Foto 2
Terreno para Venda em Nossa Senhora do Pópulo, Coto e São Gregório Foto 3
Terreno para Venda em Nossa Senhora do Pópulo, Coto e São Gregório Foto 4
Terreno para Venda em Nossa Senhora do Pópulo, Coto e São Gregório Foto 5

Terreno para Venda em Nossa Senhora do Pópulo, Coto e São Gregório

480.000 €

Tipo
Terreno
Negócio
Venda
Condição
Não aplicável
Certificado Energético
Área do Terreno
423 m²

Terreno Para Construção Venda em Caldas da Rainha - Nossa Senhora do Pópulo, Coto e São G

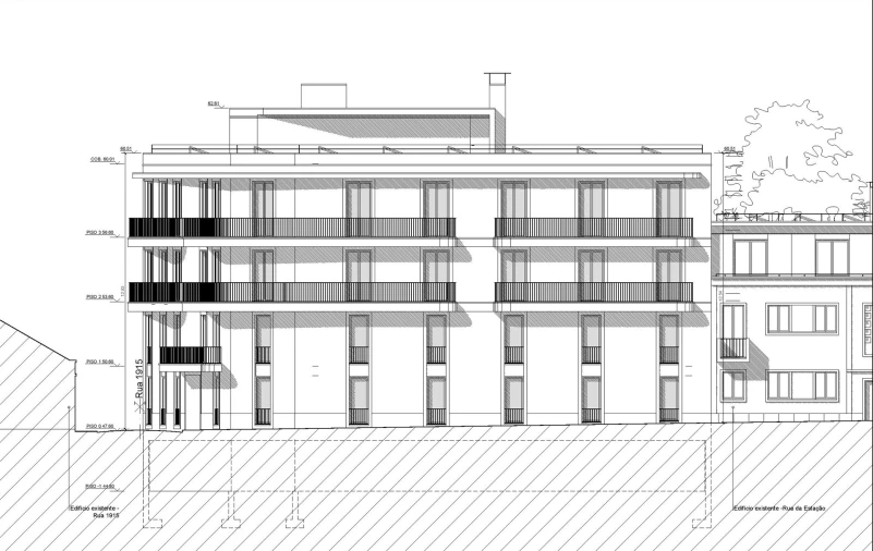
Excelente oportunidade de investimento num lote urbano com projeto aprovado para a construção de um edifício residencial de 4 pisos, com garagem em cave. O projeto contempla 10 apartamentos com tipologias variadas, ideais para diferentes perfis de famílias e investidores. Área total do lote: 422 m² Área bruta de construção: 1.820 m² (inclui habitação e garagem) Tipologias previstas: 1 x T1 3 x T2 3 x T3 1 x T4 2 x T7 Garagem em cave: 413 m²Os dois apartamentos T7 podem ser convertidos em 2 T2 e 2 T3, aumentando a diversidade da oferta e a liquidez dos imóveis.

Se está à procura de um investimento sólido e com retorno garantido no setor imobiliário, este projeto é a escolha certa. O projeto aprovado e pronto a iniciar, a versatilidade das tipologias e a localização urbana conferem a este imóvel um forte potencial de valorização e de rentabilidade.

Localização

Nossa Senhora do Pópulo, Coto e São Gregório, Caldas da Rainha, Leiria

Informação do anúncio

ID do anúncio 1336012
Referência Externa OSB0433
Atualizado em 05/12/2025 03:42:37
O Seu Bairro AMI 11243
Referência do imóvel: OSB0433
Phone
Chamada para a rede móvel nacional
O Seu Bairro AMI 11243
Referência do imóvel: OSB0433
Phone
Chamada para a rede móvel nacional
1 / 10
Terreno para Venda em Nossa Senhora do Pópulo, Coto e São Gregório Foto 1
Terreno para Venda em Nossa Senhora do Pópulo, Coto e São Gregório Foto 2
Terreno para Venda em Nossa Senhora do Pópulo, Coto e São Gregório Foto 3
Terreno para Venda em Nossa Senhora do Pópulo, Coto e São Gregório Foto 4
Terreno para Venda em Nossa Senhora do Pópulo, Coto e São Gregório Foto 5
Terreno para Venda em Nossa Senhora do Pópulo, Coto e São Gregório Foto 6
Terreno para Venda em Nossa Senhora do Pópulo, Coto e São Gregório Foto 7
Terreno para Venda em Nossa Senhora do Pópulo, Coto e São Gregório Foto 8
Terreno para Venda em Nossa Senhora do Pópulo, Coto e São Gregório Foto 9
Terreno para Venda em Nossa Senhora do Pópulo, Coto e São Gregório Foto 10
Clicky