Terreno para Venda em Viseu
87.500 €
Tipo
Terreno
Negócio
Venda
Condição
Novo
Certificado Energético
Isento
Área do Terreno
1 m²
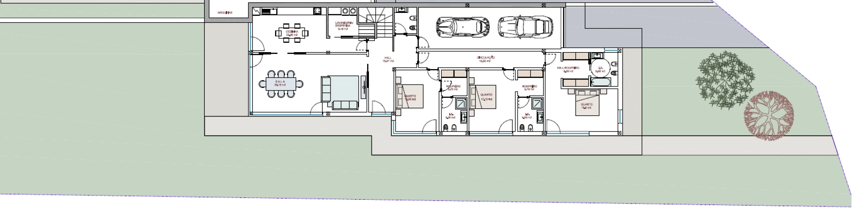
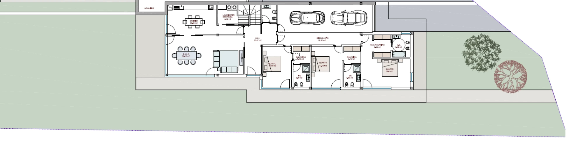
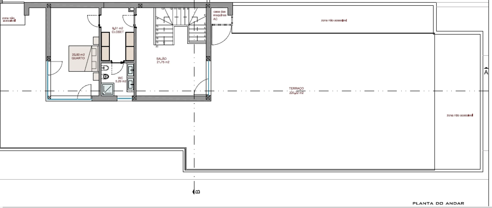
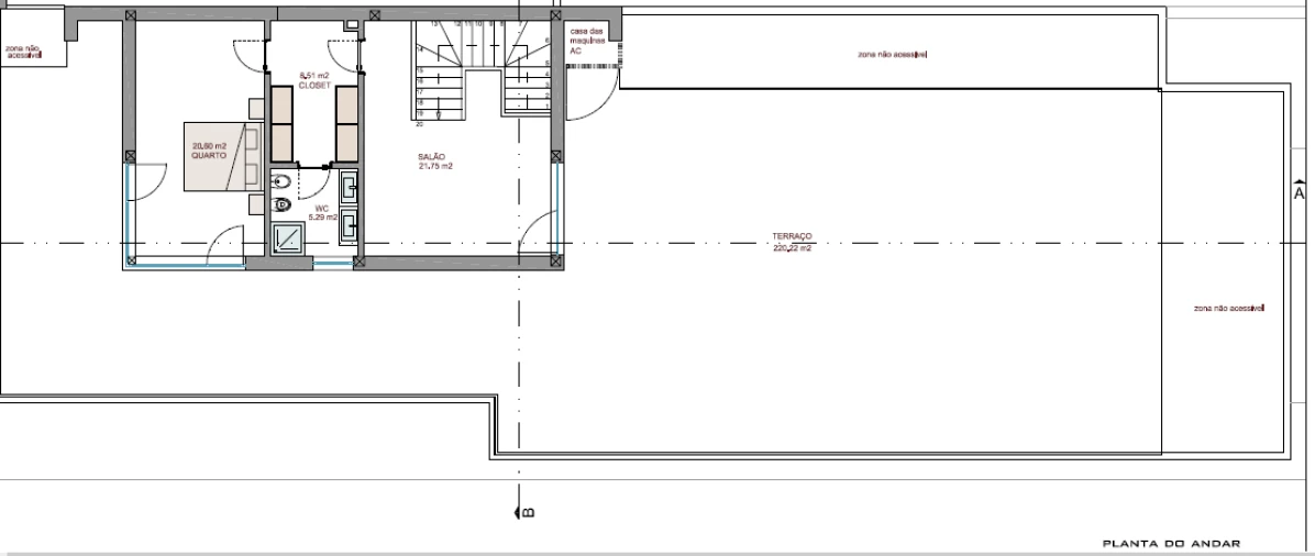
Lote para Construção de Moradia Bi-Familiar com Projeto Aprovado
Oportunidade Única em Viseu – Lote para Construção de Moradia Bi-Familiar com Projeto Aprovado ?
Vende-se lote de terreno com projeto aprovado para moradia bi-familiar, incluindo as taxas urbanísticas pagas – pronto a construir!
? Localizado em Monte Salvado, uma das zonas mais privilegiadas e em crescente valorização da cidade de Viseu, este terreno destaca-se pelas suas vistas deslumbrantes sobre a cidade e pela proximidade a serviços, comércio, escolas e acessos principais.
✅ Projeto aprovado
✅ Taxas urbanísticas incluídas
✅ Zona calma e residencial
✅ Excelente exposição solar
Ideal para quem procura investimento seguro ou construção própria, num local de qualidade e com forte procura habitacional.
Vende-se lote de terreno com projeto aprovado para moradia bi-familiar, incluindo as taxas urbanísticas pagas – pronto a construir!
? Localizado em Monte Salvado, uma das zonas mais privilegiadas e em crescente valorização da cidade de Viseu, este terreno destaca-se pelas suas vistas deslumbrantes sobre a cidade e pela proximidade a serviços, comércio, escolas e acessos principais.
✅ Projeto aprovado
✅ Taxas urbanísticas incluídas
✅ Zona calma e residencial
✅ Excelente exposição solar
Ideal para quem procura investimento seguro ou construção própria, num local de qualidade e com forte procura habitacional.
Localização
Viseu, Viseu, Viseu
Informação do anúncio
ID do anúncio
1338181
Referência Externa
Lote T
Atualizado em
27/08/2025 08:42:14
Anunciante
Chamada para a rede móvel nacional
CasaTem Imobiliária
AMI 11381
Referência do imóvel:
Lote T
Terreno para Venda em Viseu