Voltar
Terreno para Venda em Ramalde Foto 1
Terreno para Venda em Ramalde Foto 2
Terreno para Venda em Ramalde Foto 3
Terreno para Venda em Ramalde Foto 4
Terreno para Venda em Ramalde Foto 5

Terreno para Venda em Ramalde

4.000.000 €

Tipo
Terreno
Negócio
Venda
Área Bruta
7486 m²
Área Útil
6344 m²
Condição
Como novo
Certificado Energético
Não se aplica
Área do Terreno
6344 m²

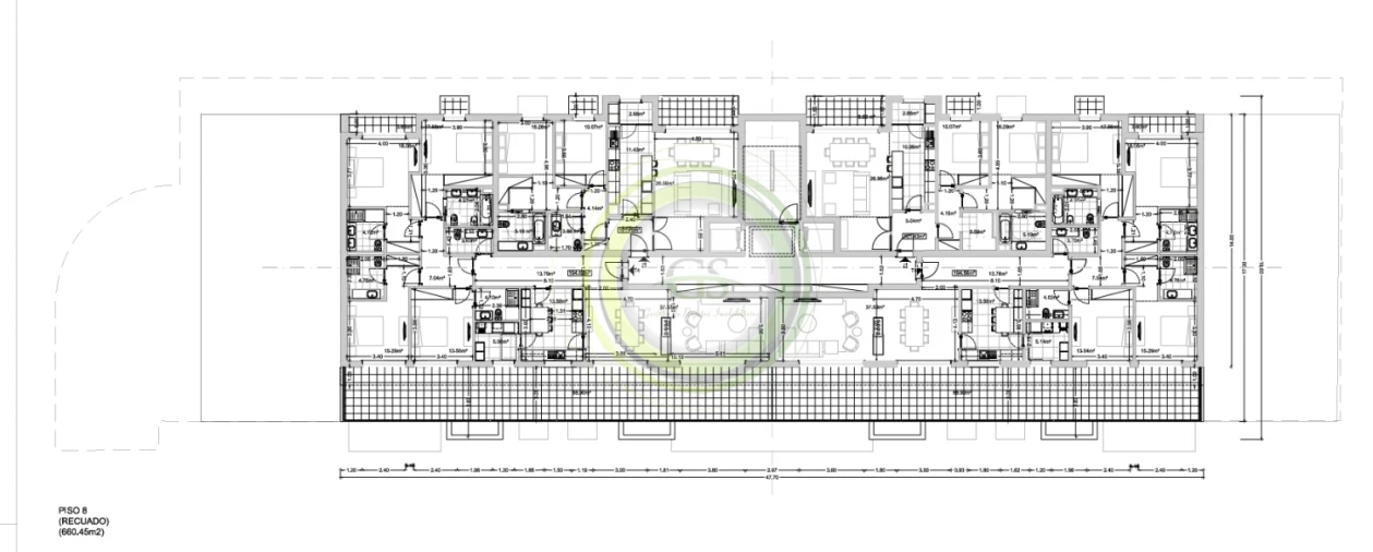
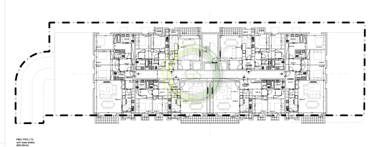
Lote de Terreno para Construção em Altura – Prelada, Porto | Próximo ao Hospital de São Jo

Lote de Terreno para Construção em Altura – Prelada, Porto | Próximo ao Hospital de São João

Localização: Prelada – Porto
Área do Lote: 1.309,00 m²
Área de Construção Acima do Solo: 6.344,00 m² (destinada a habitação)
Área de Construção Abaixo do Solo: 2.142,00 m² (destinada a garagens)
Tipologia Aprovada:
•8 pisos acima do solo
•3 pisos abaixo do solo
•46 fogos habitacionais:
•30 T2
•14 T3
•2 T4

Este lote representa uma excelente oportunidade de investimento para promotores e construtores que pretendem atuar numa zona com forte procura habitacional. Inserido numa área consolidada da cidade do Porto, a poucos minutos do Hospital de São João, universidades, transportes públicos (metro e autocarros), e com acesso rápido à VCI, este projeto combina centralidade, conveniência e elevado potencial de valorização.

Projeto vocacionado para habitação multifamiliar
Infraestruturas consolidadas
Zona com alta procura residencial e estudantil

Entre em contacto para mais informações sobre o projeto e documentação associada.

Localização

Ramalde, Porto, Porto

Informação do anúncio

ID do anúncio 1341944
Referência Externa GS1/2882221
Atualizado em 02/02/2026 09:35:59
GS Imobiliária Real Estate AMI 20665
Referência do imóvel: GS1/2882221
Phone
Chamada para a rede móvel nacional
GS Imobiliária Real Estate AMI 20665
Referência do imóvel: GS1/2882221
Phone
Chamada para a rede móvel nacional
1 / 7
Terreno para Venda em Ramalde Foto 1
Terreno para Venda em Ramalde Foto 2
Terreno para Venda em Ramalde Foto 3
Terreno para Venda em Ramalde Foto 4
Terreno para Venda em Ramalde Foto 5
Terreno para Venda em Ramalde Foto 6
Terreno para Venda em Ramalde Foto 7
Clicky