Voltar
Apartamento T2 para Venda em Bonfim Foto 1
Apartamento T2 para Venda em Bonfim Foto 2
Apartamento T2 para Venda em Bonfim Foto 3
Apartamento T2 para Venda em Bonfim Foto 4
Apartamento T2 para Venda em Bonfim Foto 5

Apartamento T2 para Venda em Bonfim

420.000 €

Tipo
Apartamento
Negócio
Venda
Quartos
2
Área Bruta
95 m²
Área Útil
95 m²
Condição
Novo
Certificado Energético
A+

Apartamento T2 Venda em Bonfim,Porto

T2 + Sótão no Bonfim 680 Oporto Apartments

Elegante apartamento T2+Sótão, inserido numa das zonas mais emblemáticas da cidade do Porto.
Um imóvel moderno, funcional e com um espaço exterior raro no centro da cidade.

Principais características:
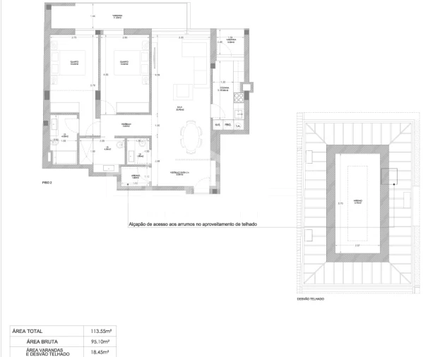
Área total: 113,55m²
Área bruta privativa: 95,10m²
Sala em open space ampla e luminosa
1 suíte com todo o conforto
2 casas de banho adicionais, totalizando 3
Duas frentes, proporcionando excelente exposição solar e ventilação natural

Este projeto destaca-se pelo rigor na escolha dos materiais, pela valorização da luz natural e pela forte integração com os espaços exteriores, tornando-se um marco elegante e discreto na paisagem urbana do Porto, enraizado no espírito da cidade.
Layout desenhado para amplitude, funcionalidade e luminosidade
Distinção clara entre zonas sociais e privadas
1 lugar de estacionamento incluído

Localização Privilegiada
A poucos passos de alguns dos principais pontos de interesse da cidade:
Estádio do Dragão;
Parque de São Roque;
Praça das Flores;
Estação de Campanhã;

Mapa de Acabamentos – Destaques

Estrutura: Betão armado com lajes aligeiradas, segurança ao vento e sismos

Fachadas: Isolamento térmico ETICS + caixilharia alumínio corte térmico, vidro duplo (Cortizo ou similar)

AQS: Bomba de calor e/ou painel solar

Conforto: Elevador elétrico (Classe A, Orona ou similar), pré-instalação de blackout elétrico, carregamento elétrico na garagem

Segurança: Porta blindada com fechadura de 3 pontos, vídeoporteiro a cores

Climatização: Pré-instalação de ar condicionado (multisplit)

Pavimentos: Flutuante AC5 (salas e quartos) + grés porcelânico (WCs)

Cozinhas: Móveis em MDF lacado, bancada em mármore Estremoz, eletrodomésticos Bosch ou similar

Sanitários: Sanita suspensa Valadares, autoclismo OLI, base de duche em resina, coluna de duche Teka

Previsão de Conclusão

2º semestre de 2027

O Bonfim 680 Oporto Apartments representa mais do que um edifício: é uma proposta de vida que alia qualidade construtiva, design contemporâneo e uma localização estratégica no Porto.

Porquê comprar com a ELEVE?

A ELEVE REAL ESTATE é uma empresa de mediação imobiliária, criada com o objetivo de prestar serviços de qualidade e excelência, no aconselhamento das melhores soluções imobiliárias para os nossos clientes, que consiste numa análise seletiva dos imóveis que comercializamos.

A ELEVE REAL ESTATE é uma marca de confiança focada na simplificação do processo de transação imobiliária, traduzindo-se numa experiência simples, transparente e eficiente.

Conta com uma equipa experiente, cujo objetivo principal é a satisfação e a fidelização dos nossos clientes.

Como para nós o importante são as pessoas, a ELEVE REAL ESTATE eleva os teus sonhos.

Localização

Bonfim, Porto, Porto

Informação do anúncio

ID do anúncio 1355389
Referência Externa ELV516
Atualizado em 09/09/2025 03:40:27
Eleven Real Estate AMI 21921
Referência do imóvel: ELV516
Phone
Chamada para a rede móvel nacional
Eleven Real Estate AMI 21921
Referência do imóvel: ELV516
Phone
Chamada para a rede móvel nacional
1 / 21
Apartamento T2 para Venda em Bonfim Foto 1
Apartamento T2 para Venda em Bonfim Foto 2
Apartamento T2 para Venda em Bonfim Foto 3
Apartamento T2 para Venda em Bonfim Foto 4
Apartamento T2 para Venda em Bonfim Foto 5
Apartamento T2 para Venda em Bonfim Foto 6
Apartamento T2 para Venda em Bonfim Foto 7
Apartamento T2 para Venda em Bonfim Foto 8
Apartamento T2 para Venda em Bonfim Foto 9
Apartamento T2 para Venda em Bonfim Foto 10
Apartamento T2 para Venda em Bonfim Foto 11
Apartamento T2 para Venda em Bonfim Foto 12
Apartamento T2 para Venda em Bonfim Foto 13
Apartamento T2 para Venda em Bonfim Foto 14
Apartamento T2 para Venda em Bonfim Foto 15
Apartamento T2 para Venda em Bonfim Foto 16
Apartamento T2 para Venda em Bonfim Foto 17
Apartamento T2 para Venda em Bonfim Foto 18
Apartamento T2 para Venda em Bonfim Foto 19
Apartamento T2 para Venda em Bonfim Foto 20
Apartamento T2 para Venda em Bonfim Foto 21
Clicky