Terreno para Venda em Palhais e Coina
159.900 €
Tipo
Terreno
Negócio
Venda
Área Bruta
300 m²
Área do Terreno
300 m²
Terreno em Palhais e Coina de 300,00 m²
Terreno com projeto aprovado – pronta a iniciar construção situado em Palhais, Barreiro
Projeto de arquitetura e especialidades aprovado pela CM-Barreiro em 12/2024, para moradia V4 isolada, com três frentes, localizada numa zona residencial consolidada de Palhais, predominantemente composta por moradias até 2 pisos. Área tranquila e com elevada qualidade ambiental e paisagística, com boas condições de exposição solar e temperatura, ventos moderados.
Projeto aprovado com as seguintes características:
Área Total do Lote: 300 m²
Área Bruta de Construção da Moradia: 187,22 m²
Piso 1 – Área Bruta Total: 103,72 m²
1.Hall – 4,05 m²
2.Sala – 41,59 m²
3.Cozinha – 17,33 m²
4.Quarto – 10,73 m²
5.WC – 3,58 m²
6.Despensa – 4,32 m²
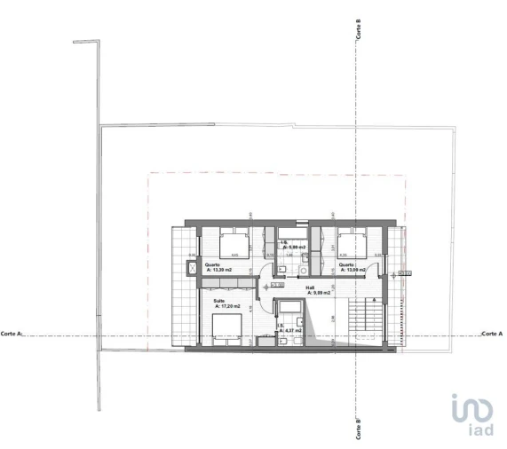
Piso 2 – Área Bruta Total: 83,50 m²
7. Hall – 5,10 m²
8. WC – 4,08 m²
9. Quarto – 14,83 m²
10. Quarto – 15,40 m²
11. Quarto – 18,39 m²
12. WC – 6,99 m²
Parâmetros Urbanísticos
•Número de lugares de estacionamento: 2
•Cércea máxima do edifício: 6,20 m
•Área de construção bruta total (habitação): 187,22 m²
•Área de implantação: 103,72 m²
•Área permeável: 128,03 m²
•Área impermeável: 170,11 m²
Características construtivas e acabamentos
A moradia com estrutura convencional em betão armado (lajes e pilares), com paredes de alvenaria de tijolo, e isolamento térmico/acústico conforme cálculo térmico. Pelo interior, as paredes rebocadas, estucadas e pintadas com tinta plástica branca, exceto na cozinha e instalações sanitárias, que serão revestidas com azulejo decorativo a toda a altura.
#ref: 149217
Projeto de arquitetura e especialidades aprovado pela CM-Barreiro em 12/2024, para moradia V4 isolada, com três frentes, localizada numa zona residencial consolidada de Palhais, predominantemente composta por moradias até 2 pisos. Área tranquila e com elevada qualidade ambiental e paisagística, com boas condições de exposição solar e temperatura, ventos moderados.
Projeto aprovado com as seguintes características:
Área Total do Lote: 300 m²
Área Bruta de Construção da Moradia: 187,22 m²
Piso 1 – Área Bruta Total: 103,72 m²
1.Hall – 4,05 m²
2.Sala – 41,59 m²
3.Cozinha – 17,33 m²
4.Quarto – 10,73 m²
5.WC – 3,58 m²
6.Despensa – 4,32 m²
Piso 2 – Área Bruta Total: 83,50 m²
7. Hall – 5,10 m²
8. WC – 4,08 m²
9. Quarto – 14,83 m²
10. Quarto – 15,40 m²
11. Quarto – 18,39 m²
12. WC – 6,99 m²
Parâmetros Urbanísticos
•Número de lugares de estacionamento: 2
•Cércea máxima do edifício: 6,20 m
•Área de construção bruta total (habitação): 187,22 m²
•Área de implantação: 103,72 m²
•Área permeável: 128,03 m²
•Área impermeável: 170,11 m²
Características construtivas e acabamentos
A moradia com estrutura convencional em betão armado (lajes e pilares), com paredes de alvenaria de tijolo, e isolamento térmico/acústico conforme cálculo térmico. Pelo interior, as paredes rebocadas, estucadas e pintadas com tinta plástica branca, exceto na cozinha e instalações sanitárias, que serão revestidas com azulejo decorativo a toda a altura.
#ref: 149217
Localização
Palhais e Coina, Barreiro, Setúbal
Informação do anúncio
ID do anúncio
1368352
Referência Externa
149217
Atualizado em
04/05/2026 23:44:56
Terreno para Venda em Palhais e Coina
Vídeo