Voltar
Moradia T3 para Venda em Medelo Foto 1
Moradia T3 para Venda em Medelo Foto 2
Moradia T3 para Venda em Medelo Foto 3
Moradia T3 para Venda em Medelo Foto 4
Moradia T3 para Venda em Medelo Foto 5

Moradia T3 para Venda em Medelo

322.500 €

Tipo
Moradia
Negócio
Venda
Ano de Construção
2025
Quartos
3
Casas de Banho
3
Área Útil
155 m²
Condição
Novo
Certificado Energético
Em validação

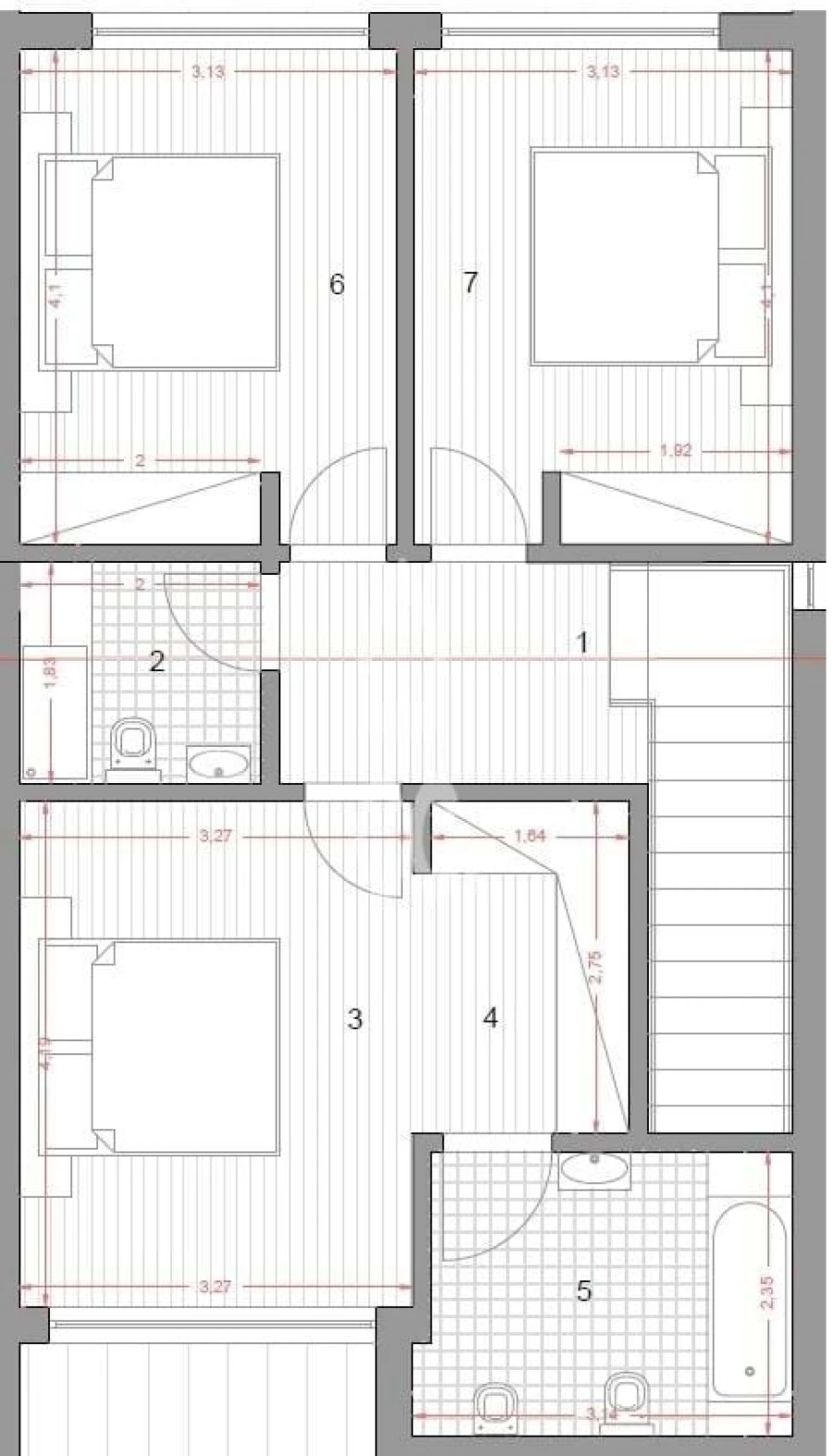
Moradia V3 em Medelo - Fafe

Moradia de gaveto em construção, em zona privilegiada, a 2km do centro da cidade de Fafe!
Vistas fantásticas e desafogadas!
Moradia em zona habitacional de excelência, ótimos acesos e rodeada de todos os serviços necessários ao conforto da sua família!
Ampla garagem e lavandaria na cave.
No rés do chão, a moradia conta com amplas áreas, distribuídas por cozinha e sala em Open Space e wc de serviço. No exterior, um generoso espaço para jardim ou zona de lazer.
No 1.º andar, encontramos um wc completo e 3 quartos, um deles uma espaçosa suite, todos com roupeiro.

Como principais características destacam-se, entre outras: Ar Condicionado Inverter classe A; Bomba de Calor para aquecimento das águas sanitárias e cozinha; tetos em pladur e focos embutidos em todas as divisões; wcs mobilados (móvel, base de duche e resguardo, loiças sanitárias e misturadoras); estores elétricos;
gradeamento das varandas em vidro; gradeamento das escadas interiores em vidro; portão seccionado com motor na garagem.

Dispomos de Caderno de Encargos detalhado! Fale connosco!
Presenteie a sua família com conforto e elegância! Esperamos por si!

Comprarcasa Guimarães
Concretizamos os seus sonhos!
Rede Imobiliária da APEMIP | Famagui - Mediação Imobiliária, Lda | APEMIP: 5130 AMI: 10736

Com o firme objetivo de satisfação do cliente a Comprarcasa Guimarães dispõe de 2 lojas para o atender: Pevidém e Guimarães.

Tem ao seu dispor Consultores Imobiliários e um Departamento Processual especializados, com formação contínua, para lhe prestar o melhor atendimento e serviço, acompanhando-o em todo o processo da Mediação Imobiliária.

Formamos uma Equipa que trabalha em prol do cliente e das suas necessidades.
Este é um momento importante da sua vida, seja na compra, venda, trespasse ou arrendamento de qualquer imóvel e nós temos as pessoas, os meios e o conhecimento para o acompanhar!
A Comprarcasa Guimarães está autorizada pelo Banco de Portugal para exercer funções de Intermediária de Crédito Vinculado.
Assim dispomos de pessoas e meios para o ajudar na contratação segura do seu crédito à habitação.
INTERMEDIÁRIO DE CRÉDITO REGISTADO NO BANCO DE PORTUGAL Nº 0000858.

Defendendo o superior interesse dos seus clientes, levamos ao expoente máximo a frase que melhor nos caracteriza - A Imobiliária que cuida de Si!

Localização

Medelo, Fafe, Braga

Informação do anúncio

ID do anúncio 1375348
Referência Externa 336/M/01912
Atualizado em 20/03/2026 01:38:18
ComprarCasa Guimarães AMI 10736
Referência do imóvel: 336/M/01912
Phone
Chamada para a rede fixa nacional
ComprarCasa Guimarães AMI 10736
Referência do imóvel: 336/M/01912
Phone
Chamada para a rede fixa nacional
1 / 10
Moradia T3 para Venda em Medelo Foto 1
Moradia T3 para Venda em Medelo Foto 2
Moradia T3 para Venda em Medelo Foto 3
Moradia T3 para Venda em Medelo Foto 4
Moradia T3 para Venda em Medelo Foto 5
Moradia T3 para Venda em Medelo Foto 6
Moradia T3 para Venda em Medelo Foto 7
Moradia T3 para Venda em Medelo Foto 8
Moradia T3 para Venda em Medelo Foto 9
Moradia T3 para Venda em Medelo Foto 10
Clicky