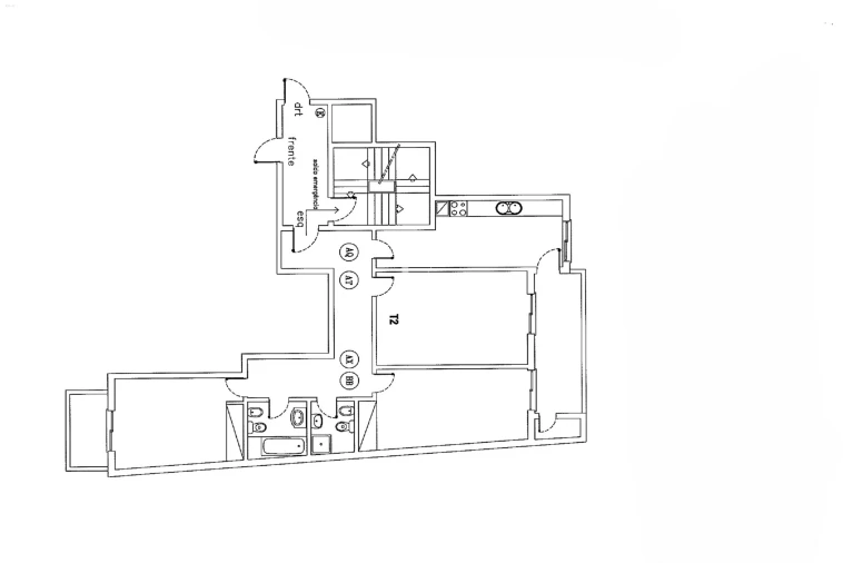
Apartamento T2 situado no centro de Olhão, próximo de todas as comodidades e serviços. O hall de entrada distribui o acesso a todas as divisões. A cozinha equipada dispõe de varanda com despensa, partilhada com a sala de estar e jantar e um dos quartos. O imóvel conta ainda com duas casas de banho completas e um segundo quarto com varanda privativa. Os quartos incluem roupeiros embutidos e todas as divisões têm ar condicionado. Inclui também lugar de garagem. Excelente oportunidade para habitação própria ou investimento. Agenda já a tua visita com a Live In Holidays.
Este site utiliza cookies. Ao navegar no site estará a consentir a sua utilização. Para mais informações sobre os cookies pode consultar a
política de privacidade.